În acest moment, nu se primesc cereri pentru această proprietate. Vă sugerăm să verificați alte oferte similare disponibile.
Vezi anunțuri
2 luni în urmă
Teren Bucovat-toate utilitatile-COMISION 0%
25.000 €
50 €
/ mp
Bucovăţ (Remetea Mare), Judeţul Timiş
Descriere teren
Sesizează o problemă
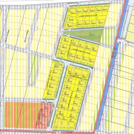
REX Imobiliare, va ofera acum oportunitatea achizitionarii de terenuri, parte a unei noi parcelari, amplasamente excelent, cu acces usor la artera principala catre Remetea, Bucovat si padurea Bistra, parte a comunei Bucovat. Terenurile partea unei noi parcelari aerisite si bine-gandite, in vecinitatea cartierului Maria Parc, cu suprafete cuprinse intre 500mp si 803mp cu fronturi generoase de minim 17.5ml, cu o pozitionare deosebita intr-o zona in continua dezvoltare si la mare cautare a Bucovatului, marginite de Padurea Bistra. Datorita amplasamentului unic, langa padure ?i la doar 3 minute de viitorul centru comercial din Bucova?, aceste terenuri ofera lini?te, aer curat ?i acces rapid la toate facilita?ile, find ideale atat pentru dezolvate imobiliara cat si pentru construirea viitoarei tale case de care sa te bucurii in liniste si aer curat. Utilitati asigurate de catre dezvoltator: retea apa, gaz, curent, drumuri de acces, iluminat stradal, extra se va asigurta si atfalt si canalizare Pret solicitat: 40-45e+TVA Daca proprietatea este pe placul tau, suna acum pentru a programa o vizionare, disponibilitate inclusiv in zilele de weekend! O zi frumoasa!
-Bogdan ID anun? : 1768969757
Citește mai mult
Citește mai puțin
Detalii teren
ID anunț: 3243095
Actualizat în: 21 Aprilie 2026
Suprafață teren:
500 mp
Istoric preț
Abonează-te la newsletter să fii primul care primește cele mai noi recomandări de proprietăți și sfaturi de la experți.
Căutări similare
- Terenuri de vânzare în Bucovăț (Remetea Mare)
- Terenuri de vânzare în Timișoara
- Terenuri de vânzare în Moșnița Nouă
- Terenuri de vânzare în Dumbrăvița
- Terenuri de vânzare în Giroc
- Terenuri de vânzare în Săcălaz
- Terenuri de vânzare în Ghiroda
- Terenuri de vânzare în Sânandrei
- Terenuri de vânzare în Giarmata
- Terenuri de vânzare în Lugoj
- Terenuri de vânzare în Șag
- Terenuri de vânzare în Remetea Mare