
3 luni în urmă
3
- Agenție
Teren intravilan, 16.800 mp, PUZ aprobat, Valcele - Ideal investitie
1.344.000 €
Vâlcele, Județul Cluj
Descriere
Raportează anunț
Sesizează o problemă
Teren intravilan, 16.800 mp, PUZ aprobat, Valcele - Ideal investitie
Teren intravilan, 16.800 mp, PUZ aprobat, Valcele - Ideal investitie
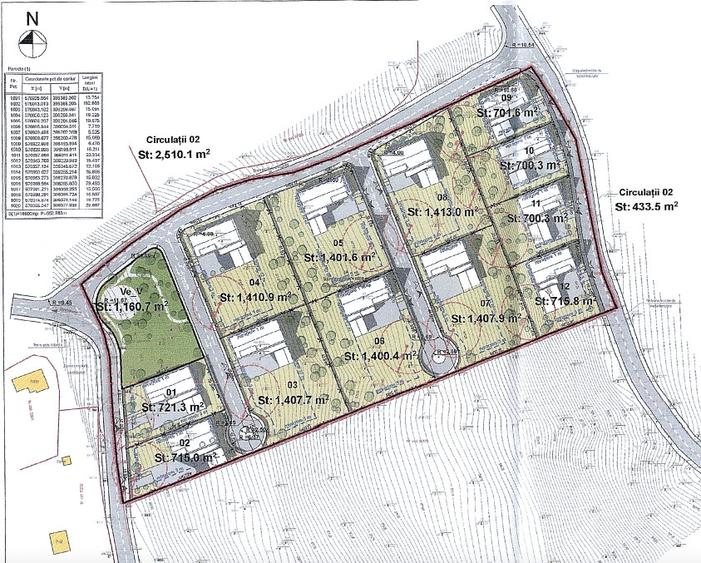
Teren intravilan de 16.800 mp cu PUZ aprobat, Valcele - Ideal pentru dezvoltatori imobiliari, la 14 km de Cluj-Napoca
Oportunitate de investitie deosebita in localitatea Valcele, situata la doar 14 km de Cluj-Napoca! Acest teren intravilan, cu o suprafata generoasa de 16.800 mp si PUZ aprobat, reprezinta o optiune ideala pentru dezvoltatorii imobiliari care doresc sa creeze un proiect rezidential modern.
Caracteristici cheie:
Suprafata utila: 16.800 mp - ideal pentru proiecte rezidentiale de anvergura.
PUZ aprobat: Permite constructia a 18 unitati locative, cu optiunea de a construi atat case individuale, cat si case cuplate (duplexuri).
Localizare: Valcele, judetul Cluj, la doar 14 km de Cluj-Napoca - o zona in plina dezvoltare, cu acces rapid la facilitatile orasului.
Utilitati: Apropierea utilitatilor esentiale (apa, gaz, electricitate) faciliteaza conectarea rapida la retelele necesare.
Potential ridicat: Terenul este perfect pentru dezvoltatori care cauta sa construiasca un nou cartier rezidential intr-o locatie strategica.
Aceasta oferta se adreseaza in special investitorilor si dezvoltatorilor imobiliari, oferind oportunitatea de a profita de cresterea pietei imobiliare din zona metropolitana a municipiului Cluj-Napoca.
Cu un PUZ aprobat si posibilitatea de a dezvolta un ansamblu de 18 locuinte, acest teren poate reprezenta o investitie sigura si profitabila.
Pentru mai multe detalii, sau pentru a programa o vizionare, nu ezitati sa ne contactati!
Citește mai mult
Citește mai puțin
ID anunț: 1819185
Actualizat în: 11 Septembrie 2025
Suprafață teren:
16.800 mp
Clasificare teren:
Intravilan
Istoric preț
Proprietăți similare
Abonează-te la newsletter să fii primul care primește cele mai noi recomandări de proprietăți și sfaturi de la experți.
Căutări similare
- Terenuri construcții de vânzare în Vâlcele
- Terenuri construcții de vânzare în Cluj-Napoca
- Terenuri construcții de vânzare în Chinteni
- Terenuri construcții de vânzare în Florești
- Terenuri construcții de vânzare în Feleacu
- Terenuri construcții de vânzare în Dezmir
- Terenuri construcții de vânzare în Sălicea
- Terenuri construcții de vânzare în Popești
- Terenuri construcții de vânzare în Gilău
- Terenuri construcții de vânzare în Apahida
- Terenuri construcții de vânzare în Baciu
- Terenuri construcții de vânzare în Gheorghieni