Teren cu autorizatie de constructie Colentina - Fundeni 75.000 euro

75.046 €
478 € / mp

Colentina, Bucureşti

Suprafață teren:
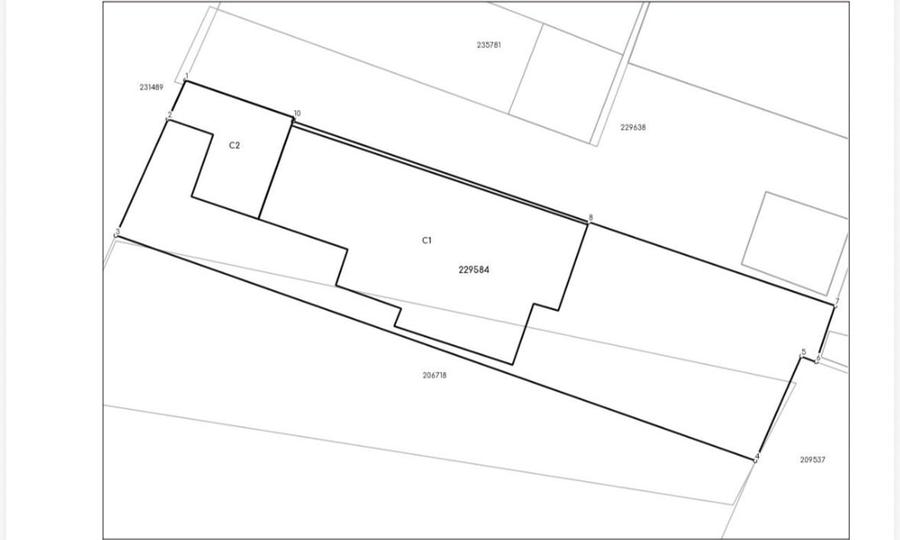
157 mp
Tip teren:
Construcții

Descriere teren

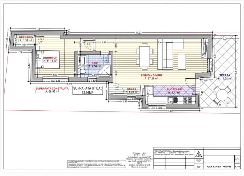
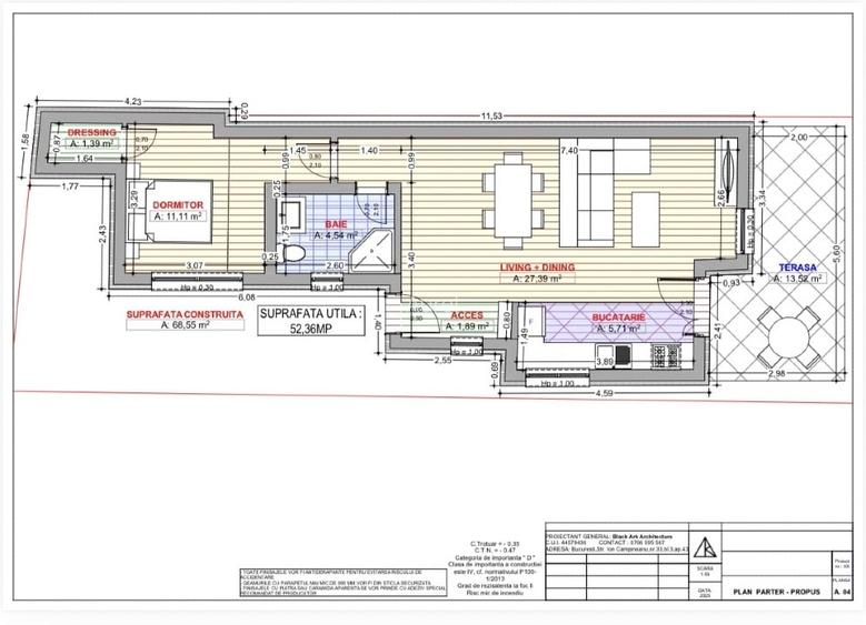
Teren in suprafata de 157 mp cu autorizatie de constructie cu regim Parter in suprafata construită de 68,5 mp. Imobilul este conectat la toate utilitatile ( apa, canalizare, gaze si electricitate. La cerere se poate construi congorm autorizatiei. La pretul afisat se adauga TVA .
Citește mai mult Citește mai puțin
Apă Gaz Canalizare

Detalii teren

ID anunț: 3971271 Actualizat în: 26 Martie 2026
Suprafață teren: 157 mp
Tip teren: Construcții
Clasificare teren: Intravilan
Front stradal: 6 m

Istoric preț

Facilități

Utilități
Apă Canalizare Gaze

Puncte de interes

Mijloace transport
transport
Statia Itcani linia 182, 253
Mijloace transport aprox. 291 m
transport
Statia Spitalul Fundeni linia 182, 253
Mijloace transport aprox. 308 m
transport
Statia Radovanu linia 182, 253
Mijloace transport aprox. 428 m
transport
Statia FC Juventus linia 182, 253
Mijloace transport aprox. 524 m
Școală
education
Universitatea Lumina
Învățământ aprox. 690 m
education
Facultatea de Constructii
Învățământ aprox. 716 m
education
Scoala
Învățământ aprox. 783 m
education
"Victor Babes" Highschool (en)
Învățământ aprox. 806 m
Recreere
shopping
Aedemia CO
Supermarket/Mall aprox. 194 m
restaurants
Margineni
Restaurante aprox. 215 m
parks
Parc
Recreere aprox. 347 m
shopping
Alege
Supermarket/Mall aprox. 930 m

Proprietăți similare

Teren Construcții intravilan de 249 mp, în Colentina
78.000 €
București, Colentina
249 mp teren
Construcții
Teren Construcții intravilan de 308 mp, în Pantelimon
80.500 €
București, Pantelimon
308 mp teren
Construcții
Teren Construcții intravilan de 311 mp, în Giurgiului
81.000 €
București, Giurgiului
311 mp teren
Construcții
Teren Construcții intravilan de 300 mp, în Berceni
79.000 €
București, Berceni
300 mp teren
Construcții
Teren Construcții intravilan de 500 mp, în Central
75.000 €
București, Central
500 mp teren
Construcții
Teren Construcții intravilan de 393 mp, în Theodor Pallady
78.600 €
București, Theodor Pallady
393 mp teren
Construcții
Teren Construcții intravilan de 826 mp, în Măgurele
79.990 €
București, Măgurele
826 mp teren
Construcții
Teren Construcții intravilan de 3100 mp, în Giulești
79.000 €
București, Giulești
3.100 mp teren
Construcții
Teren Construcții intravilan de 400 mp, în Prelungirea Ghencea
79.000 €
București, Prelungirea Ghencea
400 mp teren
Construcții

Abonează-te la newsletter să fii primul care primește cele mai noi recomandări de proprietăți și sfaturi de la experți.