
2 luni în urmă
10
- Proprietar
- Comision 0%
Nicolaos
247.000 €
Actualizat pe: 14 Jun 2025
Teren Intravilan Lac 24,700 mp
247.000 €
Sărulești, Județul Călărași
Descriere
Raportează anunț
Sesizează o problemă
Teren Intravilan Lac 24,700 mp
Teren Intravilan Lac 24,700 mp
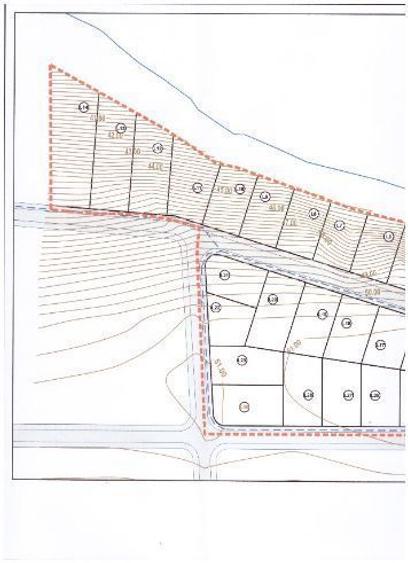
DE VANZARE: Parcele Rezidentiale direct pe Lacul Monstistea-Sarulesti, caracterizate prin frumusetea lor naturala si peisajele sale uluitoare. Transportul de la capitala Bucuresti (Romania) dureaza aproximativ 40 de minute cu masina si ofera locatia perfecta pentru o vacanta rapida in weekend. Suprafata totala este de 24.700 de metri patrati si este impartita in 30 de parcele, fiecare avand acces direct la drum. Datorita usoarei sale inclinari spre apa, fiecare parcela are o vedere panoramica neobisnuita a lacului. Aceasta proprietate de pe apa este de vanzare ca un intreg proiect. Suprafata terenului este 24,700 mp. Transportul de la capitala Bucuresti (Romania) dureaza aproximativ 40 de minute cu masina si ofera locatia perfecta pentru o vacanta rapida in weekend. P.O.T.: 35% C.U.T.: 1.0 Regim de inatime maxim: P+1+M Datorita usoarei sale inclinari spre apa, parcela are o vedere panoramica neobisnuita a lacului. Pretul: 247,000 Euro Suprafata: 24700 mp Comision zero. Direct de la proprietar tel.
07243****phone_0
Vezi tot numărul
P.S.: Aceasta proprietate de pe apa este de vanzare ca un intreg proiect. Puteți contacta direct proprietarul la telefon!
Citește mai mult
Citește mai puțin
ID anunț: 3691352
Actualizat în: 22 Septembrie 2025
Suprafață teren:
24.700 mp
Clasificare teren:
Intravilan
Istoric preț
Abonează-te la newsletter să fii primul care primește cele mai noi recomandări de proprietăți și sfaturi de la experți.
Căutări similare
- Terenuri de vânzare în Sărulești
- Terenuri de vânzare în Frumușani
- Terenuri de vânzare în Fundulea
- Terenuri de vânzare în Călărași
- Terenuri de vânzare în Lehliu
- Terenuri de vânzare în Vlad Țepeș
- Terenuri de vânzare în Budești
- Terenuri de vânzare în Ceacu
- Terenuri de vânzare în Florica
- Terenuri de vânzare în Lehliu-Gară
- Terenuri de vânzare în Oltenița
- Terenuri de vânzare în Săndulița