Teren intravilan, 11.330 mp, in Falticeni

736.450 €
57.40 € / mp

Fălticeni, Judeţul Suceava

Suprafață teren:
12.830 mp

Descriere teren

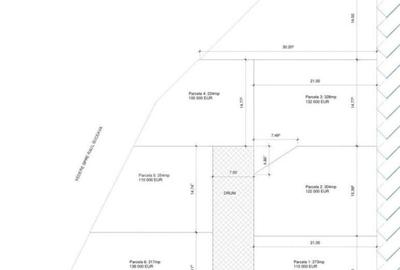
BLITZ Imobiliare - Oportunitate Teren Intravilan in Falticeni Detalii Principale: - Suprafata Teren Intravilan Principal: 12.280 mp - Suprafata Acces Suplimentar: 550 mp (drum catre terenul principal) - Utilitati Disponibile: Gaz, Apa, Canalizare, Curent (posibilitate de racordare) - Localizare: Falticeni Caracteristici Teren: - Amplasat intr-o zona foarte linistita pentru o atmosfera relaxanta - Posibilitate de racordare la utilitati pentru facilitati optime Detalii Acces Suplimentar: - 550 mp pentru un drum catre terenul principal pentru acces usor Oportunitate pentru Dezvoltare Imobiliara: - Potential de constructie diversificata in conformitate cu reglementarile locale - Ideal pentru dezvoltatori imobiliari si investitori Pretul este de 55Eur/mp, usor negociabil. La strada principala se inchiriaza 1600 m.p.teren, din care 320 m.p. hala. Exista posibilitatea ca, chiriasul sa isi construiasca si sa-si amenajeze dupa necesitati. Imobilul este racordat la toate utilitatile. Pentru mai multe detalii, programati astazi o vizionare! Cod oferta / ID BLITZ: P101094 Id intern: P101094 Publicat prin , vezi anuntul complet aici.
Citește mai mult Citește mai puțin

Detalii teren

ID anunț: 10688 Actualizat în: 01 Februarie 2026
Suprafață teren: 12.830 mp

Istoric preț

Puncte de interes

Mijloace transport
transport
Autogara
Mijloace transport aprox. 1588 m
transport
Falticeni
Mijloace transport aprox. 1851 m
Școală
education
Colegiul Mihai Bacescu
Învățământ aprox. 991 m
education
Colegiul National Nicu Gane
Învățământ aprox. 1280 m
Recreere
restaurants
Galeria Oamenilor de afaceri
Restaurante aprox. 1008 m
parks
Dumbrava Minunata
Recreere aprox. 1144 m
parks
Stadion
Recreere aprox. 1423 m
restaurants
Parc
Restaurante aprox. 1538 m

Proprietăți similare

Teren de 6800 mp, în Sfântu Ilie
680.000 €
Județul Suceava, Sfântu Ilie
6.800 mp teren
Teren de 7500 mp, în Ițcani
700.000 €
Suceava, Ițcani
7.500 mp teren
Teren de 1900 mp, în Central
760.000 €
Suceava, Central
1.900 mp teren
Teren de 7500 mp, în Central
700.000 €
Suceava, Central
7.500 mp teren

Abonează-te la newsletter să fii primul care primește cele mai noi recomandări de proprietăți și sfaturi de la experți.