Teren Duplex/Casa individuala cu autorizatie, in Popesti

65.000 € + TVA
183.10 € + TVA / mp

Popeşti, Judeţul Cluj

Suprafață teren:
355 mp
Tip teren:
Construcții

Descriere teren

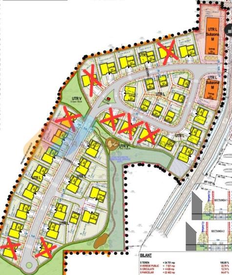
Vă propunem spre vânzare terenuri destinate construcției de unități duplex și case individuale, situate la intrarea în Popești, într-un viitor ansamblu rezidențial. Detalii teren: Suprafață totală: 34.700 mp PUZ aprobat și parcelare realizată Parcelele disponibile: De la 281 mp utili pentru case individuale Minimum 500 mp pentru duplexuri Ansamblul rezidențial va cuprinde: 68 de unități locative, dintre care: 60 de duplexuri 8 case individuale Avantaje: Asistență pentru autorizarea parcelelor Zonă în plină dezvoltare, cu potențial ridicat de investiție Acces facil și infrastructură în curs de amenajare Pentru detalii suplimentare și vizionări, vă stăm la dispoziție! Id extern: P780
Citește mai mult Citește mai puțin
Electricitate Apă Gaz Canalizare

Detalii teren

ID anunț: 4027893 Actualizat în: 02 Aprilie 2026
Suprafață teren: 355 mp
Tip teren: Construcții
Clasificare teren: Intravilan

Istoric preț

Facilități

Utilități
Curent Apă Canalizare Gaze
Amenajare străzi
Pietruite
Alte caracteristici
Acces auto

Puncte de interes

Școală
education
Scoala cu Clasele I-VIII Baciu
Învățământ aprox. 1964 m

Proprietăți similare

Teren Construcții intravilan de 1045 mp, în Popești
67.900 €
Județul Cluj, Popești
1.045 mp teren
Construcții
Teren Construcții intravilan de 600 mp, în Popești
70.000 €
Județul Cluj, Popești
600 mp teren
Construcții
Teren Construcții intravilan de 1100 mp, în Popești
67.000 €
Județul Cluj, Popești
1.100 mp teren
Construcții
Teren Construcții intravilan de 756 mp, în Chinteni
71.500 €
Județul Cluj, Chinteni
756 mp teren
Construcții
Teren Construcții intravilan de 6956 mp, în Brăișoru
62.000 €
Județul Cluj, Brăișoru
6.956 mp teren
Construcții
Teren Construcții intravilan de 6500 mp, în Frata
65.000 €
Județul Cluj, Frata
6.500 mp teren
Construcții
Teren Construcții intravilan de 600 mp, în Corușu
68.000 €
Județul Cluj, Corușu
600 mp teren
Construcții
Teren Construcții intravilan de 756 mp, în Chinteni
59.000 €
Județul Cluj, Chinteni
756 mp teren
Construcții
Teren Construcții intravilan de 425 mp, în Iris
59.500 €
Cluj-Napoca, Iris
425 mp teren
Construcții

Abonează-te la newsletter să fii primul care primește cele mai noi recomandări de proprietăți și sfaturi de la experți.