
3 săptămâni în urmă
8
- Agenție
- Comision 0%
Teren autorizat pentru casa individuala, 9 Min de Auchan, COMISION 0%
59.500 €
Iris, Cluj-Napoca
Descriere
Raportează anunț
Sesizează o problemă
Teren autorizat pentru casa individuala, 9 Min de Auchan, COMISION 0%
Teren autorizat pentru casa individuala, 9 Min de Auchan, COMISION 0%
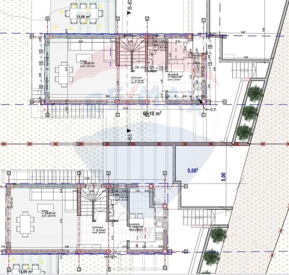
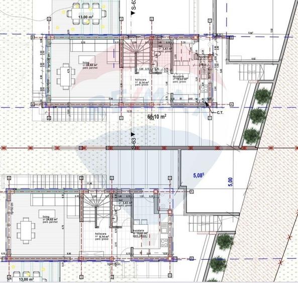
De vanzare teren intravilan 425 mp cu autorizatie de constructie pentru casa unifamiliala
O oportunitate excelenta pentru cei care isi doresc o locuinta moderna, bine compartimentata, intr-o zona linistita si verde!
Detalii teren:
Suprafata: 425 mp
Intravilan
Doua locuri de parcare pe teren
Vecinatatea terenului este extravilan, ceea ce garanteaza liniste, intimitate si o priveliste deschisa, plina de verdeata
Expunere sudica - casa luminoasa si eficienta energetic
Detalii constructie (autorizata):
Regim de inaltime: Demisol + Parter + Etaj
Suprafata desfasurata: 169 mp
Amprenta la sol: 65 mp
Compartimentare propusa:
Demisol: spatiu tehnic + terasa
Parter: hol, living spatios, bucatarie separata, baie
Etaj: 2 dormitoare matrimoniale (dintre care unul cu baie proprie si dressing), birou, baie secundara
Autorizatia de constructie este deja obtinuta, ceea ce permite inceperea lucrarilor imediat!
Drumul se afla momentan in curs de asfaltare iar in ceea ce priveste utilitatile, apa este de la retea iar pentru electricitate s-a obtinut ATR de la aprox 150m.
Va rugam sa ne contactati pentru vizionari.
Citește mai mult
Citește mai puțin
ID anunț: 8238453
Actualizat în: 24 Septembrie 2025
Suprafață teren:
425 mp
Tip teren:
Construcții
Clasificare teren:
Intravilan
Front stradal:
12 m
Istoric preț
Proprietăți similare
Abonează-te la newsletter să fii primul care primește cele mai noi recomandări de proprietăți și sfaturi de la experți.
Căutări similare
- Terenuri construcții de vânzare în Iris
- Terenuri construcții de vânzare în Cluj-Napoca
- Terenuri construcții de vânzare în Borhanci
- Terenuri construcții de vânzare în Făget
- Terenuri construcții de vânzare în Dâmbul Rotund
- Terenuri construcții de vânzare în Mănăștur
- Terenuri construcții de vânzare în Grigorescu
- Terenuri construcții de vânzare în Bună Ziua
- Terenuri construcții de vânzare în Someșeni
- Terenuri construcții de vânzare în Gruia
- Terenuri construcții de vânzare în Sopor
- Terenuri construcții de vânzare în Gheorgheni