Hala pentru depozitare sau productie, 435 mp, Calea Sagului

€ 2.175 / lună

Şagului, Timişoara

Descriere

Raportează anunț

Hala pentru depozitare sau productie, 435 mp, Calea Sagului

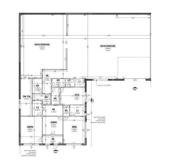
APOSTU ESTATE va propune spre inchiriere hala de 280 mp ideala pentru depozitare sau productie, la acare se adauga o suprafata de 155 mp de birouri, in Timisoara, zona Sagului. Hala este compusa din doua incaperi, una principala de 185 mp, cu acces 4x4 m din curte si o incapere de 93 mp cu acces din zona de birouri si din cealalta incapere, si doua grupuri sanitare. Suprafata de birouri este comparimentata astfel: - 5 incaperi birou; - 5 holuri; - 2 grupuri sanitare; - camera tehnica; - 3 dependinte. Contorizare proprie pentru toate utilitatile, curent trifazic. Accesul in hala se face pe o usa cu dimensiunile de 4x4 m. Locatia dispune de 6-7 locuri de parcare in fata cladirii . Confortul termic este asiguarat de centrala pe gaz . Va asteptam la o vizionare! CP2641328 Suprafata construita: 500 mp Nr incaperi: 12 Pret negociabil Alte detalii zona - Amenajare strazi (Asfaltate); Mijloace de transport; Iluminat stradal Utilitati - Utilitati generale (Curent,Curent trifazic,Apa,Canalizare,Gaz) Alte caracteristici - Acces (TIR) pretinchiriere: 2175 monedainchiriere: EUR pretinchiriereunitar: 5 monedainchiriereunitar: EUR Disponibilitate proprietate: Imediat
Citește mai mult Citește mai puțin
ID anunț: 987491 Actualizat în: 19 Septembrie 2025
Suprafață utilă: 435 mp
Suprafață utilă totală: 435 mp
An construcție: 2000

Istoric preț

Proprietăți similare

Spațiu comercial, de 500 mp, în Șagului
€ 2.000 / lună
Timișoara, Șagului
500 mp utili
2E
Proprietate specială, de 270 mp, în Fabric
€ 2.160 / lună
Timișoara, Fabric
270 mp utili
5E
Spațiu comercial, de 260 mp, în Calea Urseni
€ 2.000 / lună
Timișoara, Calea Urseni
260 mp utili
516 mp teren
2E
Spațiu comercial, de 302 mp, în Fabric
€ 2.114 / lună
Timișoara, Fabric
302 mp utili
2000
Spațiu comercial, de 200 mp, în P-ța Victoriei
€ 2.300 / lună
Timișoara, P-ța Victoriei
200 mp utili
Spațiu comercial, de 382 mp, în Spitalul Județean
€ 2.200 / lună
Timișoara, Spitalul Județean
382 mp utili
Spațiu industrial, de 363 mp, în Freidorf
€ 1.999 / lună
Timișoara, Freidorf
363 mp utili
1985
Spațiu comercial, de 111.26999664307 mp, în Central
€ 2.086 / lună
Timișoara, Central
111,27 mp utili
4E
2005
Spațiu comercial, de 117 mp, în Circumvalațiunii
€ 1.989 / lună
Timișoara, Circumvalațiunii
117 mp utili

Abonează-te la newsletter să fii primul care primește cele mai noi recomandări de proprietăți și sfaturi de la experți.