Spatiu Comercial in zona comerciala sector 4

450.000 €
2,586.21 € / mp

Berceni, Bucureşti

Suprafață utilă totală:
174 mp
Nr. niveluri:
10
An construcție:
1980

Descriere spațiu comercial

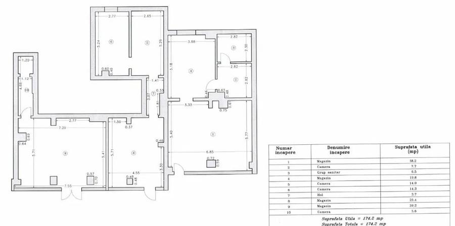
GNM ESTATE propune oportunitatea perfectă pentru a investi în viitorul dumneavoastră în inima Berceniului - Complex Huedin! Acest spațiu comercial generos, cu o suprafață utilă de 174 mp și un front de 18 m, vă așteaptă să-i dați viață. Situat într-o zonă dinamică a Bucureștiului, cu acces facil la principalele artere de circulație, această proprietate este ideală pentru afaceri care doresc să se bucure de vizibilitate și trafic constant. Proprietatea compusa din doua spatii care se pot vinde si independent unul de 70 mp iar cel de al doilea de 104 mp , adaptabile nevoilor dumneavoastră, utilitati prezente apa si curent , . Cu o structură solidă din beton, clădirea oferă nu doar siguranță, ci și posibilitatea de a personaliza spațiul conform viziunii dumneavoastră. Proprietatea este pe persoana fizica , nu se percepe TVA. Nu ratați ocazia de a deveni proprietar al acestui spațiu comercial valoros, perfect pentru tineri profesioniști sau investitori care caută o oportunitate de afaceri în expansiune. Contactați-ne acum pentru a programa o vizionare și descoperiți personal potențialul acestui loc care poate deveni baza succesului dumneavoastră! Informatiile tehnice au caracter orientativ, acestea fiind preluate de la proprietari. Pentru mai multe detalii si vizionari, ne puteti contacta telefonic, specificand codul de identificare P256799
Citește mai mult Citește mai puțin

Detalii spațiu comercial

ID anunț: 4097026 Actualizat în: 07 Aprilie 2026
Suprafață utilă: 174 mp
Suprafață utilă totală: 174 mp
Regim înălțime: P+10E
An construcție: 1980

Istoric preț

Facilități

Utilități
Curent Apă Canalizare

Puncte de interes

Mijloace transport
transport
Statia Straja, linia 381, N112,77
Mijloace transport aprox. 220 m
transport
RATB Statie 76/381
Mijloace transport aprox. 261 m
transport
Capat Piata Resita linii : 76,77,216,381.
Mijloace transport aprox. 437 m
transport
Statia Piata Resita,linia 381, 216, N112,77
Mijloace transport aprox. 441 m
Școală
education
Scoala nr. 36 Ionel Teodoreanu
Învățământ aprox. 232 m
education
Scoala Nr. 36 "Ionel Teodoreanu"
Învățământ aprox. 253 m
education
Gradinita nr. 4
Învățământ aprox. 276 m
education
Scoala nr. 99
Învățământ aprox. 300 m
Recreere
shopping
Carrefour Market
Supermarket/Mall aprox. 61 m
restaurants
Pepa
Restaurante aprox. 91 m
parks
Parc
Recreere aprox. 96 m
shopping
Mega Image Huedin
Supermarket/Mall aprox. 100 m

Proprietăți similare

Spațiu comercial, de 134.80000305176 mp, în Berceni
450.000 €
București, Berceni
134,8 mp utili
5E
2016
Spațiu comercial, de 150 mp, în Berceni
490.000 €
București, Berceni
150 mp utili
11E
2023
Spațiu comercial, de 65 mp, în Berceni
435.000 €
București, Berceni
65 mp utili
Spațiu comercial, de 187 mp, în Berceni
452.540 €
București, Berceni
187 mp utili
2025
Spațiu comercial, de 65 mp, în Berceni
420.000 €
București, Berceni
65 mp utili
Spațiu comercial, de 65 mp, în Berceni
420.000 €
București, Berceni
65 mp utili
Spațiu comercial, de 124.83999633789 mp, în Berceni
425.000 €
București, Berceni
124,84 mp utili
8E
2019
Spațiu comercial, de 100 mp, în Berceni
475.000 €
București, Berceni
100 mp utili
Spațiu comercial, de 129 mp, în Văcăresti
450.000 €
București, Văcăresti
129 mp utili

Abonează-te la newsletter să fii primul care primește cele mai noi recomandări de proprietăți și sfaturi de la experți.