Inchiriere spatiu comercial Fundeni Dobroiesti

1.200 € / lună
11.43 € / mp / lună

Voluntari, Judeţul Ilfov

Suprafață utilă totală:
105 mp
Nr. niveluri:
4

Descriere spațiu comercial

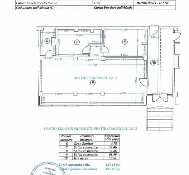
Dobroiesti Inchiriere spatiu comercial situat la parterul unui bloc de 4 etaje, cu o suprafata totala de 105 mp si o vitrina stradala de 11 m. La momentul actual spatiul este compartimentat in 3 camere plus grup sanitar, insa poate fi reamenajat dupa necesitati. Se inchiriaza pentru orice activitate comerciala: magazin, salon infrumusetare, cabinet veterinar, cabinet medical, farmacie, fast food etc.
Citește mai mult Citește mai puțin

Detalii spațiu comercial

ID anunț: 3729170 Actualizat în: 06 Martie 2026
Suprafață utilă: 105 mp
Suprafață utilă totală: 105 mp
Regim înălțime: P+4E

Istoric preț

Puncte de interes

Mijloace transport
transport
Complex Comercial Niro statie 254
Mijloace transport aprox. 1008 m
transport
Capat Pasaj Colentina linii : N108, 254, N101
Mijloace transport aprox. 1071 m
transport
Capat Pasaj Colentina linia:21
Mijloace transport aprox. 1077 m
transport
Statia Nicolae Canea linia N108, 254, N101
Mijloace transport aprox. 1136 m
Școală
education
Scoala Nr. 41
Învățământ aprox. 933 m
education
Colegiul national Victor Babes
Învățământ aprox. 1118 m
education
Scoala
Învățământ aprox. 1123 m
education
"Victor Babes" Highschool (en)
Învățământ aprox. 1152 m
Recreere
parks
Parc
Recreere aprox. 132 m
shopping
Alege
Supermarket/Mall aprox. 408 m
shopping
Carrefour
Supermarket/Mall aprox. 911 m
restaurants
Carnaciori cu bere
Restaurante aprox. 941 m

Proprietăți similare

Spațiu comercial, de 112 mp, în Central
1.100 € / lună
Județul Ilfov, Voluntari
112 mp utili
2024
Spațiu industrial, de 400 mp, în Nord-Est
1.200 € / lună
Județul Ilfov, Voluntari
400 mp utili
1975
Spațiu comercial, de 230 mp, în Voluntari
1.265 € / lună
Județul Ilfov, Voluntari
230 mp utili
Spațiu industrial, de 175 mp, în Nord-Est
1.200 € / lună
Județul Ilfov, Bragadiru
175 mp utili
100 mp teren
2015
Spațiu industrial, de 300 mp, în Est
1.200 € / lună
Județul Ilfov, Pantelimon
300 mp utili
2020
Spațiu industrial, de 160 mp, în Afumați
1.280 € / lună
Județul Ilfov, Afumați
160 mp utili
1E
2020
Spațiu comercial, de 113 mp, în Fundeni
1.243 € / lună
Județul Ilfov, Fundeni
113 mp utili
Spațiu comercial, de 90 mp, în Central
1.099 € / lună
Județul Ilfov, Bragadiru
90 mp utili
4E
2020
Proprietate specială, de 300 mp, în Sud-Est
1.200 € / lună
Județul Ilfov, Bragadiru
300 mp utili

Abonează-te la newsletter să fii primul care primește cele mai noi recomandări de proprietăți și sfaturi de la experți.