IMI Residence - Comision 0 - Spatiu comercial la parter - 125 mp - cu vitrina

1.250 € / lună
10 € / mp / lună

Sânandrei, Judeţul Timiş

Suprafață utilă totală:
125 mp
Nr. niveluri:
2

Descriere spațiu comercial

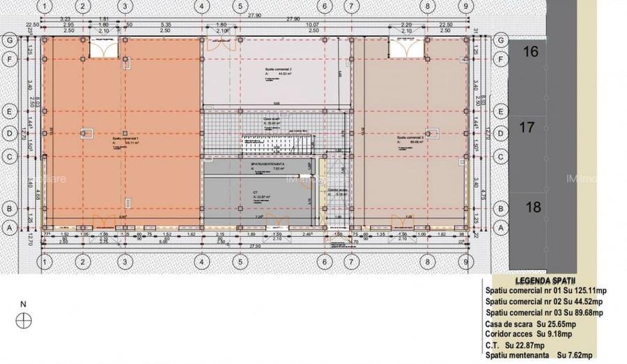
La pretul afisat se adauga TVA 21% IMI Residence, dezvoltator cu peste 10 ani de experienta in domeniul imobiliar, ofera spre inchiriere spatiu comercial amplasat intr-un cartier nou rezidential al comunei Sanandrei, localitate care isi propune sa valorifice potentialul si oportunitatile de dezvoltare, inclusiv crearea unui mediu de afaceri competitiv, destinat sa atraga investitii importante din tara si strainatate si care ofera serviciile necesare pentru a trai in armonie alaturi de cei dragi: gradinita cu program prelungit, scoala generala cu clase I-VIII, bazine de inot cu cursuri pentru copii, policlinica medicala, terenuri de sport, restaurante, spalatorii, mijloace de transport catre si dinspre Timisoara. Linia M41 de autobuz (Timișoara - Sanandrei - Carani) are 13 de opriri, prima stație la Vasile Pârvan și ultima stație la Darson: - Orarul autobuzului M41 de luni pana vineri: începe programul la 5:00 și se termină la 22:35. Frecventa: 1h:10, 15 curse pe zi - Orarul autobuzului M41 sambata si duminica: începe programul la 6:25 și se termină la 15:00. Frecventa: 8h:35, 2 curse pe zi Asa cum am obisnuit clientii, toate materialele folosite fac parte din clasa superioara, la fel dotarile: centralele termice Romstal, decorativa siliconata Kober, izolatia Austroterm de 10 cm, incalzirea in pardoseala, instalatiile sanitare Ideal Standard de la Romstal, geamurile tripane Rehau cu dubla deschidere si 6 camere de izolatie pe tamplarie reprezinta cateva notiuni care intaresc angajamentul nostru de a oferi imobile bine construite, bine finisate, de care sa va bucurati. Spatiul comercial propus spre inchiriere este localizat la parterul unei cladiri de aprtamente in regim P+2E, unde parterul are destinatie exclusiv comerciala si este format din 3 spatii comerciale distincte, de marimi diferite si apartine zonei rezidentiale IMI Residence
Citește mai mult Citește mai puțin

Detalii spațiu comercial

ID anunț: 155733 Actualizat în: 13 Martie 2026
Suprafață utilă: 125 mp
Suprafață utilă totală: 125 mp
Regim înălțime: P+2E

Istoric preț

Facilități

Utilități
Curent Apă Canalizare

Proprietăți similare

Spațiu comercial, în Neptun
1.200 € / lună
Timișoara, Neptun
Spațiu comercial, de 84.400001525879 mp, în Complex Studențesc
1.182 € / lună
Timișoara, Complex Studențesc
84,4 mp utili
8E
2022
Spațiu comercial, de 85 mp, în Cetății
1.201 € / lună
Timișoara, Cetății
85 mp utili
10E
Spațiu comercial, de 144.5 mp, în Torontalului
1.156 € / lună
Timișoara, Torontalului
144,5 mp utili
3E
2025
Spațiu comercial, de 110 mp, în Aradului
1.201 € / lună
Timișoara, Aradului
110 mp utili
8E
1980
Spațiu comercial, de 461.76 mp, în Iosefin
1.155 € / lună
Timișoara, Iosefin
461,76 mp utili
Spațiu comercial, de 151 mp, în Dumbrăvița
1.208 € / lună
Județul Timiș, Dumbrăvița
151 mp utili
3E
2023
Spațiu comercial, de 123 mp, în Iosefin
1.351 € / lună
Timișoara, Iosefin
123 mp utili
1980
Spațiu comercial, de 65 mp, în Torontalului
1.199 € / lună
Timișoara, Torontalului
65 mp utili
4E
1990

Abonează-te la newsletter să fii primul care primește cele mai noi recomandări de proprietăți și sfaturi de la experți.