Dacia - bd. Tomis, SPATIU COMERCIAL, 80 mp.

900 € / lună
11.25 € / mp / lună

Dacia, Constanţa

Suprafață utilă totală:
80 mp

Descriere spațiu comercial

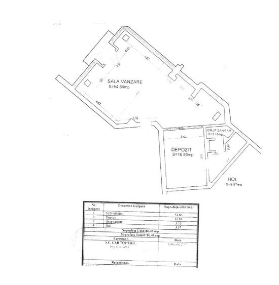
Agenția imobiliară Zig-Zag vă propune spre închiriere un spațiu comercial amplasat excelent în zona Dacia, pe Bulevardul Tomis – una dintre cele mai dinamice și circulate zone ale orașului, cu vad comercial format și flux constant de pietoni, recunoscută pentru densitatea rezidențială ridicată și activitatea comercială susținută, ceea ce face din acest spațiu o alegere excelentă pentru dezvoltarea unei afaceri stabile și vizibile. Spațiul dispune de o suprafață utilă totală de 80 mp și beneficiază de o compartimentare practică, adaptabilă mai multor tipuri de activități: - open space generos de aproximativ 54 mp, ideal pentru zonă de vânzare, recepție sau showroom ; - birou separat, potrivit pentru activități administrative ; - grup sanitar propriu. Caracteristici și avantaje: - poziționare stradală, cu vizibilitate excelentă ; - vitrină generoasă (fațadă vitrată), ideală pentru promovare și expunere; - acces direct din bulevard ; - spațiu luminos, cu potențial ridicat de personalizare ; - toate utilitățile contorizate separat, centrală termică proprie pe gaze. Destinații recomandate: activități comerciale (retail), showroom, sediu firmă / birouri, servicii profesionale, salon de înfrumusețare sau alte activități similare etc. Proprietar persoană juridică (chirie nepurtătoare de TVA) Pentru mai multe informații sau programarea unei vizionări, vă invităm să contactați agenția Zig-Zag !
Citește mai mult Citește mai puțin

Detalii spațiu comercial

ID anunț: 3996242 Actualizat în: 31 Martie 2026
Suprafață utilă: 80 mp
Suprafață utilă totală: 80 mp

Istoric preț

Facilități

Utilități
Curent Apă Canalizare

Puncte de interes

Mijloace transport
transport
Dacia [100
Mijloace transport aprox. 143 m
transport
Statia Dacia; Linia 42
Mijloace transport aprox. 368 m
transport
Dacia [100
Mijloace transport aprox. 402 m
transport
Statia Trocadero; Linia 100, 100C
Mijloace transport aprox. 482 m
Școală
education
Gradinita nr. 58 romano-turca Constanta
Învățământ aprox. 76 m
education
Gradinita Nr.58
Învățământ aprox. 121 m
education
Scoala Nr.12
Învățământ aprox. 126 m
education
Şcoala cu Clasele I-VIII "B.P. Haşdeu" Nr. 12
Învățământ aprox. 140 m
Recreere
shopping
Carrefour Market
Supermarket/Mall aprox. 171 m
restaurants
La Tavola
Restaurante aprox. 185 m
parks
Dacia Fountain (en)
Recreere aprox. 347 m
shopping
Mega Image
Supermarket/Mall aprox. 547 m

Proprietăți similare

Teren construcție, în Zona Industrială
900 € / lună
Constanța, Zona Industrială
900 mp teren
Construcții
Spațiu comercial, de 293 mp, în Brătianu
879 € / lună
Constanța, Brătianu
293 mp utili
Spațiu comercial, de 71 mp, în Tomis III
900 € / lună
Constanța, Tomis III
71 mp utili
Spațiu comercial, de 80 mp, în Ultracentral
900 € / lună
Constanța, Ultracentral
80 mp utili
Spațiu comercial, de 50 mp, în Casa de Cultură
850 € / lună
Constanța, Casa de Cultură
50 mp utili
4E
Spațiu comercial, de 70 mp, în Tomis III
899 € / lună
Constanța, Tomis III
70 mp utili
Spațiu comercial, de 130 mp, în Central
850 € / lună
Constanța, Central
130 mp utili
Spațiu industrial, de 130 mp, în Zona Industrială
875 € / lună
Constanța, Zona Industrială
130 mp utili
2024
Spațiu comercial, de 85 mp, în Central
935 € / lună
Constanța, Central
85 mp utili
1E
1992

Abonează-te la newsletter să fii primul care primește cele mai noi recomandări de proprietăți și sfaturi de la experți.