Vila Istorica, inchiriata, Dorobanti Capitale

1.250.000 €

Dorobanţi, Bucureşti

Nr. camere:
9
Suprafață utilă:
277 mp
Suprafață teren:
197 mp
Nr. niveluri:
1

Descriere casă

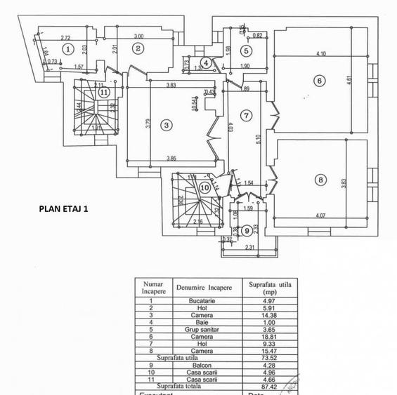
Va prezentam spre vanzare o vila situata in inima exclusivistului cartier Dorobanti Capitale din Bucuresti - o vila istorica ce dateaza din anii 1940 si care a fost meticulos renovata in anul 2005. Aceasta proprietate impresionanta, cu functiune mixta de birouri si rezidenta, este o adevarata reprezentanta a elegantei clasice si a rafinamentului modern. Cu o suprafata utila de 277 metri patrati, vila este dispusa pe patru niveluri: subsol, parter, etajul 1 si mansarda. Imobilul este compartimenat in 9 camere, 4 grupuri sanitare, 2 bucatarii, 2 scari de acces, 3 intrari, balcoane si numeroase spatii de depozitare la subsol. Datorita conceptului sau , etajele pot fi utilizate in mod separat, oferind oportunitati variate de utilizare, fie pentru a crea un spatiu de birouri si intalniri, fie pentru a crea o locuinta confortabila si relaxanta. Un avantaj considerabil il reprezinta posibilitatea de parcare pentru doua masini in curtea proprietatii, oferindu-va confort si accesibilitate intr-o zona unde spatiul de parcare este adesea o comoara rara. Cu o locatie privilegiata in cartierul Dorobanti Capitale, aveti acces la cele mai exclusiviste magazine, restaurante rafinate si facilitati de inalta calitate, intretinand un stil de viata pe masura. In momentul de fata imobilul este inchiriat si incaseaza o chirie lunara de 5000 euro/luna. Proprietar persoana fizica, nu se percepe TVA.
Citește mai mult Citește mai puțin
Aer condiționat Centrală proprie

Detalii casă

ID anunț: 83286 Actualizat în: 24 Martie 2026
Nr. camere: 9
Suprafață utilă: 277 mp
Suprafață utilă totală: 277 mp
Nr. băi: 3
Suprafață teren: 197 mp
Front stradal: 15 m
An construcție: 1940
Regim înălțime: P+1E

Istoric preț

Facilități

Pereți
Vopsea lavabilă
Podele
Parchet Marmură
Ușă intrare
Parchet Metal Lemn
Uși interior
Lemn
Ferestre cu geam termopan
Lemn
Contorizare
Apometre Contor gaz
Bucătărie
Mobilată Utilată
Diverse
Telecomandă poartă garaj
Alte spații utile
Spațiu depozitare Dressing WC Serviciu Anexe Dependințe
Facilități imobil
Videointerfon
Utilități
Curent Apă Canalizare Gaze
Sistem încălzire
Centrală proprie
Climatizare
Aer condiționat
Amenajare străzi
Asfaltate Betonate Iluminat stradal

Puncte de interes

Mijloace transport
transport
Statia RATB linia 300,381,783
Mijloace transport aprox. 171 m
transport
Pasaj Victoria
Mijloace transport aprox. 180 m
transport
Metrorex. Piata Victoriei 1/2 (M1) , (M2)
Mijloace transport aprox. 202 m
transport
Orlando
Mijloace transport aprox. 213 m
Școală
education
Liceu - Scoala Europeana Bucuresti
Învățământ aprox. 49 m
education
Liceul Nicolae Tonitza
Învățământ aprox. 286 m
education
SNSPA
Învățământ aprox. 314 m
education
Scoala Nationala de Studii Politice si Administrative (SNSPA)
Învățământ aprox. 349 m
Recreere
restaurants
Restaurant "Casa Frumoasa"
Restaurante aprox. 111 m
parks
Parc
Recreere aprox. 239 m
shopping
"METROPLIS CENTER"
Supermarket/Mall aprox. 585 m
shopping
Mega Image - IANCU DE HUNEDOARA
Supermarket/Mall aprox. 619 m

Proprietăți similare

Casă individuală cu 15 camere cu Canalizare în Dorobanți
1.250.000 €
București, Dorobanți
15 camere
660 mp
200 mp teren
Casă individuală cu 12 camere cu Garaj în Dorobanți
1.300.000 €
București, Dorobanți
12 camere
440 mp
196 mp teren
Casă individuală cu 12 camere cu Canalizare în Dorobanți
1.350.000 €
București, Dorobanți
12 camere
640,52 mp
191 mp teren
Casă individuală cu 7 camere cu Teren 190 Mp în Dorobanți
1.299.936 €
București, Dorobanți
7 camere
326 mp
190 mp teren
Casă individuală cu 8 camere cu Canalizare în Dorobanți
1.350.000 €
București, Dorobanți
8 camere
484,53 mp
179,08 mp teren
Casă individuală cu 10 camere cu Canalizare în Pipera
1.299.000 € + TVA
București, Pipera
10 camere
478 mp
513 mp teren
Casă individuală cu 11 camere cu Garaj în Kiseleff
1.350.000 €
București, Kiseleff
11 camere
483 mp
229 mp teren
Casă individuală cu 15 camere cu Teren 809 Mp în Iancu Nicolae
1.350.000 €
București, Iancu Nicolae
15 camere
691 mp
809 mp teren
Casă individuală cu 6 camere cu Canalizare în Pipera
1.200.000 €
București, Pipera
6 camere
370 mp
700 mp teren

Abonează-te la newsletter să fii primul care primește cele mai noi recomandări de proprietăți și sfaturi de la experți.