Spatiu de birouri de vanzare – 360 mp, Central - Sibiu

390.000 €
1,083.33 € / mp

Ultracentral, Sibiu

Suprafață utilă totală:
360 mp
Nr. niveluri:
2
An construcție:
1980

Descriere spațiu comercial

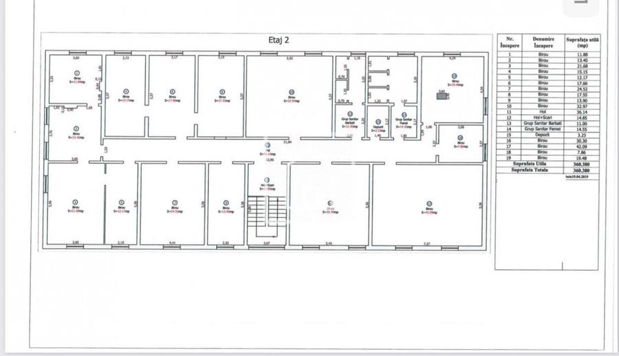
Agentia Vision Home ofera spre vanzare un spatiu de birouri complet renovat, situat intr-o zona de top din Sibiu, ideal pentru investitie sau utilizare proprie. Caracteristici: • Suprafata utila: 360 mp • Compartimentare eficienta: 12 birouri, 2 grupuri sanitare, oficiu • Facilitati: contorizare separata, acces privat • Dotari: 2 centrale termice, aer conditionat, finisaje moderne Investitie sigura Imobilul este complet inchiriat, generand un venit anual de 30.000 euro, cu posibilitate de preluare a contractelor existente. Pret: 390.000 euro Pentru mai multe detalii si programari vizionari, contactati-ne. Pentru aceasta proprietate se percepe un comision de 2% din pretul de vanzare. Vision Home Real Estate offers for sale a fully renovated office space, located in a prime area of Sibiu – ideal for investment or personal use. Key Features: • Usable area: 360 sqm • Efficient layout: 12 offices, 2 restrooms, kitchenette • Facilities: separate metering, private access • Equipment: 2 heating systems, air conditioning, modern finishes Secure Investment The property is fully leased, generating an annual income of €30,000, with the option to take over existing rental contracts. Price: €390.000 A brokerage fee of 2% of the sale price applies. For more details and to schedule a viewing, please contact us. Nr grupuri sanitare: 2 Suprafata construita: 432 mp Nr incaperi: 15 Utilitati - Sistem incalzire (Centrala proprie,Calorifere); Utilitati generale (Curent,Apa,Canalizare,Gaz,CATV,Telefon) Finisaje - Izolatii termice (Exterior); Podele (Gresie,Parchet); Stare interior (Renovat); Iluminat (Lumina naturala); Ferestre cu geam termopan (PVC) Dotari - Contorizare (Apometre,Contor gaz); Dotari imobil (Interfon) pret vanzare: 390000 moneda vanzare: EUR Disponibilitate proprietate: imediat
Citește mai mult Citește mai puțin
Calorifere Centrală proprie Renovat

Detalii spațiu comercial

ID anunț: 414541 Actualizat în: 23 Martie 2026
Suprafață utilă: 360 mp
Suprafață utilă totală: 360 mp
Etaj: Etaj 2 / 2
Regim înălțime: P+2E
An construcție: 1980

Istoric preț

Facilități

Contorizare
Apometre Contor gaz
Facilități imobil
Interfon
Utilități
Curent Apă Canalizare Gaze
Sistem încălzire
Centrală proprie Calorifere
Podele
Parchet Gresie
Stare interior
Renovat
Izolații termice
Exterior
Ferestre cu geam termopan
PVC

Puncte de interes

Mijloace transport
transport
Nufarul
Mijloace transport aprox. 183 m
transport
Teatru
Mijloace transport aprox. 231 m
transport
A. Saguna
Mijloace transport aprox. 259 m
transport
Casa Armatei
Mijloace transport aprox. 329 m
Școală
education
Scoala speciala
Învățământ aprox. 236 m
education
Scoala Generala Nr. 15
Învățământ aprox. 337 m
education
Liceul de Arte
Învățământ aprox. 399 m
education
Laboratoare ULBS
Învățământ aprox. 405 m
Recreere
restaurants
Unicum
Restaurante aprox. 41 m
shopping
Galeriile Pacea
Supermarket/Mall aprox. 98 m
shopping
BILLA Balcescu
Supermarket/Mall aprox. 130 m
parks
Parc
Recreere aprox. 142 m

Proprietăți similare

Spațiu comercial, de 181 mp, în Ultracentral
400.000 €
Sibiu, Ultracentral
181 mp utili
1E
1900
Spațiu comercial, de 136 mp, în Ultracentral
375.000 €
Sibiu, Ultracentral
136 mp utili
2E
1953
Spațiu comercial, de 285 mp, în Turnișor
390.000 €
Sibiu, Turnișor
285 mp utili
1E
1980
Spațiu comercial, de 164 mp, în Mihai Viteazul
415.000 €
Sibiu, Mihai Viteazul
164 mp utili
10E
Spațiu comercial, de 258.89999389648 mp, în Vest
391.737 €
Sibiu, Vest
258,9 mp utili
4E
2024
Spațiu comercial, de 136 mp, în Central
380.000 €
Sibiu, Central
136 mp utili
1E
Spațiu comercial, de 120 mp, în Central
363.000 €
Sibiu, Central
120 mp utili
2E
Spațiu comercial, de 219 mp, în Central
390.000 €
Sibiu, Central
219 mp utili
6E
Hotel/Pensiune, de 241 mp, în Periferie
410.000 €
Sibiu, Periferie
241 mp utili
1E

Abonează-te la newsletter să fii primul care primește cele mai noi recomandări de proprietăți și sfaturi de la experți.