Cladire multifuntionala si terasa pentru evenimente corporate in Sibiu

1.501 € / lună
10.65 € / mp / lună

Calea Poplăcii, Sibiu

Suprafață utilă totală:
141 mp
An construcție:
2022

Descriere spațiu comercial

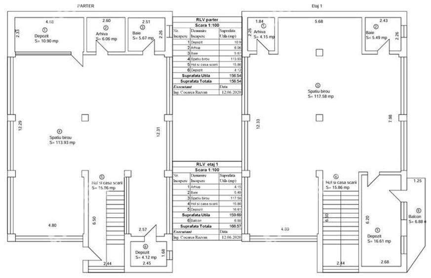
Se inchiriaza spatiu birouri intr-o cladire moderna, cu o suprafata utila de aproximativ 141 mp, cladirea este distribuita pe 4 niveluri conectate printr-o casa a scarii comuna, potrivita pentru business-uri diverse precum birouri IT, centre educationale sau servicii comerciale. Compartimentare detaliata: Spatiul oferit spre inchiriere are o suprafata utila de 141 mp impartiti in doua camere principale, o chicineta, o baie si o camera de depozitare, spatiul este asemanator cu celelalte etaje ale imobilului. Cladirea este structurata pe 4 niveluri, cu spatii flexibile ce pot fi adaptate pentru birouri open-space, sali de clasa, zone de receptie sau depozitare – fiecare etaj putand functiona independent. Include holuri spatioase, etaje bine iluminate si facilitati moderne, cu finisaje practice: ferestre termopan pentru izolare termica si fonica, usi securizate si podele rezistente la trafic intens. Orientarea sudica asigura lumina naturala abundenta, iar cladirea are echipare cu sisteme fotovoltaice, aliniindu-se trendurilor ecologice din Sibiu. Toate utilitatile sunt conectate: apa, canalizare, curent trifazic, gaz metan, internet fibra optica si cablu TV, cu contorizare individuala per etaj pentru eficienta. Fiecare etaj are locuri de parcare in parcarea amenajata a imobilului: minim 20 de locuri interioare securizate, plus 5-8 locuri la strada, facilitand accesul pentru echipe mari sau evenimente. Terasa mare exterioara este ideala pentru pauze sau intalniri, iar zona separata inchisa, amenajata cu gratar si spatii pentru relaxare, este perfecta pentru team building, evenimente corporate sau petreceri de firma – un atu rar pentru spatii business in Sibiu. Aceasta cladire ofera un randament excelent pentru chiriasi, combinand locatia strategica cu facilitati premium, atragand clienti din IT, educatie sau servicii prin costuri operationale reduse si potential de crestere. Facilitati si extra Interior: 4 niveluri cu casa a scarii comuna; spatii flexibile pentru birouri IT educatie; finisaje moderne (termopan, izolatie); utilitati complete (gaz, fibra optica); fotovoltaice pentru energie verde (Prosumator - Consumul de curent fiind 0 in anumite cazuri); stare excelenta, adaptabila. Exterior: Parcare 20+ locuri interioare + 5-8 strada; terasa spatioasa; zona inchisa cu gratar pentru team building evenimente; acces vad comercial. Utilitati si securitate: Curent trifazic, gaz, apa; contorizare individuala; supraveghere posibila; acces transport public excelent. Alte avantaje: Flexibilitate inchiriere per etaj sau integral; ideal pentru business sustenabil; cerere mare in zona; proximitate servicii (magazine, scoli, stadion); costuri reduse prin eficienta energetica; oportunitati de extindere. Valoarea unui etaj separat la 1.500 € luna + o luna garantie, oferind flexibilitate maxima pentru chiriasi mici sau mari, cu potential ridicat pentru reconversie si beneficii de scalabilitate. ID intern: 3094
Citește mai mult Citește mai puțin

Detalii spațiu comercial

ID anunț: 2740187 Actualizat în: 13 Februarie 2026
Suprafață utilă: 141 mp
Suprafață utilă totală: 141 mp
An construcție: 2022

Istoric preț

Facilități

Utilități
Apă Curent Gaze Canalizare

Puncte de interes

Mijloace transport
transport
Cimitir 2
Mijloace transport aprox. 249 m
transport
Cimitir 1
Mijloace transport aprox. 265 m
transport
Siretului
Mijloace transport aprox. 400 m
transport
Siretului 2
Mijloace transport aprox. 408 m
Școală
education
FasTracKids
Învățământ aprox. 450 m
education
Gradinita Nr. 5
Învățământ aprox. 503 m
education
Scoala Genenerala Nr. 25
Învățământ aprox. 638 m
education
Scoala Gimnaziala nr. 16
Învățământ aprox. 772 m
Recreere
restaurants
Restaurant Cesar
Restaurante aprox. 184 m
parks
Piata Crisan
Recreere aprox. 199 m
shopping
Transagape
Supermarket/Mall aprox. 584 m
shopping
Magazin cu produse nemtesti
Supermarket/Mall aprox. 744 m

Proprietăți similare

Birou, de 150 mp, în Calea Poplăcii
1.500 € / lună
Sibiu, Calea Poplăcii
150 mp utili
2E
2010
Birou, de 150 mp, în Calea Poplăcii
1.500 € / lună
Sibiu, Calea Poplăcii
150 mp utili
2E
2010
Birou, de 200 mp, în Tineretului
1.500 € / lună
Sibiu, Tineretului
200 mp utili
1E
2020
Birou, de 100 mp, în Central
1.473 € / lună
Sibiu, Central
100 mp utili
Birou, de 240 mp, în Industrial Vest
1.600 € / lună
Sibiu, Industrial Vest
240 mp utili
1E
2010
Birou, de 152 mp, în Calea Dumbrăvii
1.520 € / lună
Sibiu, Calea Dumbrăvii
152 mp utili
2011
Birou, de 85 mp, în Central
1.500 € / lună
Sibiu, Central
85 mp utili
3E
Birou, de 300 mp, în Central
1.460 € / lună
Sibiu, Central
300 mp utili
2E
1980
Birou, de 200 mp, în Gușterița
1.500 € / lună
Sibiu, Gușterița
200 mp utili
2000

Abonează-te la newsletter să fii primul care primește cele mai noi recomandări de proprietăți și sfaturi de la experți.