Spatiu de birouri de inchiriat utili zona Valea Aurie

1.500 € / lună
10 € / mp / lună

Calea Poplăcii, Sibiu

Suprafață utilă totală:
150 mp
Nr. niveluri:
2
An construcție:
2010

Descriere spațiu comercial

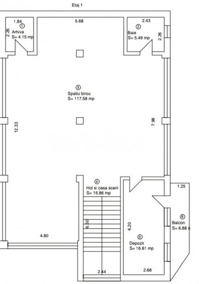
Va propunem spre inchiriere acest spatiu de birou in Sibiu cu 5 incaperi situat in zona Calea Poplacii, Valea Aurie.  Aceasta cladire unica imbina functionalitatea unui spatiu de birouri modern cu confortul si relaxarea unui mediu de lucru prietenos si inspirational. Este perfecta pentru companii care pun accent pe productivitate, imagine si bunastarea echipei. Imobilul este superfinisat la cheie, cu materiale de calitate si compartimentare eficienta, fiind pregatit pentru mutare imediata. Se preteaza excelent pentru firme din IT, consultanta, marketing, arhitectura, call center sau chiar sediu pentru afaceri cu activitate hibrida. Spatiul se afla la etajul 1 al unei cladiri si beneficiaza de 150 mp utili. Intreaga cladire este destinata activitatilor de birou si este compartimentata astfel:  Parter – zona dedicata relaxarii si activitatilor de echipa: • Spatiu deschis, foarte generos de 113 mp care poate fi amenajat sau compartimentat dupa necesitati cat si alte 3 incaperi deja delimitate: doua spatii de depozitare, arhiva si o baie. • Acces direct catre curtea interioara si gradina  Etaj 1 si 2 – birouri open-space: • Spatii largi, bine iluminate, ideale pentru organizare flexibila a echipelor • Fiecare etaj este dotat cu baie proprie si chicineta pentru confortul zilnic • Finisaje moderne, pardoseli calde, lumina naturala din abundenta  Mansarda – spatiu versatil si elegant: • Ideal pentru birou executiv, zona de management, sala de sedinte sau activitati speciale • Include baie, logie cu priveliste si camera mare (peste 87 mp) • Atmosfera intima, ideala pentru concentrare si discutii de strategie Curte si Gradina– un adevarat avantaj: • 15 locuri de parcare in curtea privata • Gradina amenajata cu zona verde, foisor acoperit, gratar si crama rustica – loc perfect pentru relaxare, team-building-uri sau mici evenimente corporate • Posibilitate de amenajare suplimentara outdoor (zona fumat, biciclete, lounge exterior etc.) Eficienta energetica si dotari: • Panouri fotovoltaice pentru apa calda si eficienta energetica crescuta • Incalzire centralizata pe gaz si sistem de climatizare • Retea electrica, internet (fibra optica), prize si infrastructura IT pregatita • Cladire bine izolata, cu cheltuieli minime de intretinere • Acces securizat, finisaje premium, iluminat natural excelent Spatiul se inchiriaza de pe persoana fizica si astfel nu se percepe taxa TVA! Pret: 1.500€ Cod oferta / ID: P25478 Suna-ne acum la numarul din anunt si afla detalii despre aceasta proprietate de inchiriat din Sibiu, dar si despre alte proprietati potrivite pentru tine. Nr grupuri sanitare: 1 Suprafata construita: 180 mp Nr incaperi: 5 Utilitati - Sistem incalzire (Centrala proprie,Calorifere); Climatizare (Aer conditionat); Utilitati generale (Curent,Curent trifazic,Apa,Canalizare,Gaz,CATV,Telefon) Finisaje - Izolatii termice (Exterior,Bloc izolat termic); Podele (Gresie,Parchet); Stare interior (Renovat); Iluminat (Lampi,Spoturi,Exterior cladire,Lumina naturala); Ferestre cu geam termopan (PVC) Dotari - Contorizare (Apometre,Contor gaz); Dotari imobil (Curte) Alte caracteristici - Alte spatii utile (Crama,Spatiu depozitare,Anexe,Parcare proprie,Spatiu verde amenajat) pret inchiriere: 1500 moneda inchiriere: EUR Disponibilitate proprietate: imediat
Citește mai mult Citește mai puțin
Nemobilat Curte Aer condiționat Calorifere Centrală proprie Renovat

Detalii spațiu comercial

ID anunț: 2717324 Actualizat în: 28 Ianuarie 2026
Suprafață utilă: 150 mp
Suprafață utilă totală: 150 mp
Etaj: Etaj 1 / 2
Regim înălțime: P+2E
An construcție: 2010

Istoric preț

Facilități

Contorizare
Apometre Contor gaz
Mobilat
Nemobilat
Alte spații utile
Cramă Spațiu depozitare Anexe
Dotări imobil
Curte
Utilități
Curent Apă Canalizare Gaze
Sistem încălzire
Centrală proprie Calorifere
Climatizare
Aer condiționat
Podele
Parchet Gresie
Stare interior
Renovat
Izolații termice
Exterior Bloc izolat termic
Ferestre cu geam termopan
PVC

Puncte de interes

Mijloace transport
transport
Th. Mihaly 2
Mijloace transport aprox. 200 m
transport
Th. Mihaly 1
Mijloace transport aprox. 208 m
transport
Valea Aurie 2
Mijloace transport aprox. 217 m
transport
Piata Sadu 1
Mijloace transport aprox. 462 m
Școală
education
Scoala Genenerala Nr. 25
Învățământ aprox. 352 m
education
FasTracKids
Învățământ aprox. 926 m
education
Gradinita Nr. 5
Învățământ aprox. 1447 m
education
Scoala Gimnaziala nr. 16
Învățământ aprox. 1614 m
Recreere
shopping
Magazin cu produse nemtesti
Supermarket/Mall aprox. 213 m
shopping
Alcomsib
Supermarket/Mall aprox. 318 m
parks
Parc
Recreere aprox. 511 m
restaurants
Varsailles
Restaurante aprox. 1078 m

Proprietăți similare

Birou, de 150 mp, în Calea Poplăcii
1.500 € / lună
Sibiu, Calea Poplăcii
150 mp utili
2E
2010
Birou, de 141 mp, în Calea Poplăcii
1.501 € / lună
Sibiu, Calea Poplăcii
141 mp utili
2022
Birou, de 200 mp, în Gușterița
1.500 € / lună
Sibiu, Gușterița
200 mp utili
2000
Birou, de 100 mp, în Central
1.473 € / lună
Sibiu, Central
100 mp utili
Birou, de 85 mp, în Central
1.500 € / lună
Sibiu, Central
85 mp utili
3E
Birou, de 240 mp, în Industrial Vest
1.600 € / lună
Sibiu, Industrial Vest
240 mp utili
1E
2010
Birou, de 206 mp, în Central
1.500 € / lună
Sibiu, Central
206 mp utili
1950
Birou, de 152 mp, în Calea Dumbrăvii
1.520 € / lună
Sibiu, Calea Dumbrăvii
152 mp utili
2011
Birou, de 195 mp, în Central
1.601 € / lună
Sibiu, Central
195 mp utili
1990

Abonează-te la newsletter să fii primul care primește cele mai noi recomandări de proprietăți și sfaturi de la experți.