Spatiu de birouri complet renovat cu 3 camere si 2 bai zona centrala

1.400 € / lună
12.17 € / mp / lună

Central, Sibiu

Suprafață utilă totală:
115 mp
An construcție:
1960

Descriere spațiu comercial

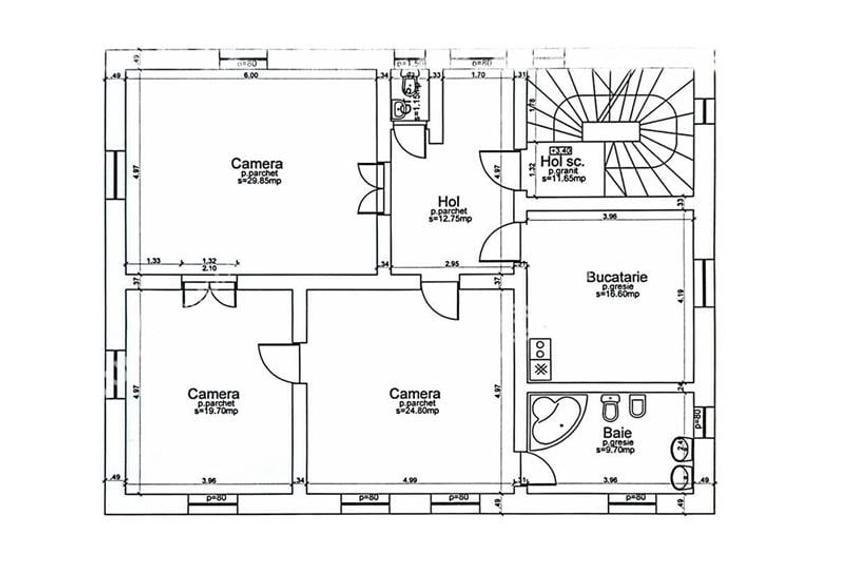
De inchiriat spatiu birouri comercial complet renovat, compus din 3 camere cu 2 bai, in suprafata totala de 138 mp, situat in zona centrala a Sibiului in apropiere de Facultatea de Stiinte ULBS. Spatiul masoara 114,55 mp fiind compus din 3 camere de 29,85 mp, 24,80 mp si respectiv 19,70 mp, 2 bai dintre cu suprafete de 9,70 mp si respectiv 1,15 mp ambele dotate cu geam de aerisire si cabina de dus, un hol spatios de 12,75 mp unde poate fi amenajata o receptie sau sala de asteptare si o bucatarie separata de 16,60 mp. Imobilul in care se afla spatiul este compus din Demisol+Parter+Etaj+Mansarda, cu acces separat la fiecare etaj. De asemenea si contorizarea utilitatilor se face separat, in functie de etaj. Renovarea facuta in 2025 s-a axat pe modernizarea spatiului, intr-un spatiu de birouri modern si dotat ce poate raspunde oricarei necesitati in desfasurarea activitatilor de birou. Printre modificari si imbunatatirile aduse spatiului mentionam: raschetarea si lacuirea parchetului din lemn masiv de stejar, usi interioare din lemn masiv, instalatie electrica si termica noua din cupru, centrala termica cu calorifere din otel termostatate, tamplarie PVC cu geam termopan, usa de acces din lemn masiv, corpuri de iluminat moderne. Zona in care este situat imobilul, se afla intr-un centru vital al orasului, cu acces usor la institutii cheie: Primaria Sibiu - corpul central si cel secundar, Directia Fiscala Locala, majoritatea birourilor notariale, de avocatura sau alte institutii si birouri conexe dar si spre cel mai mare parc din oras. Valoarea de inchiriere este de 1400 euro negociabil + TVA. ID intern: 3216
Citește mai mult Citește mai puțin

Detalii spațiu comercial

ID anunț: 3224309 Actualizat în: 17 Martie 2026
Suprafață utilă: 115 mp
Suprafață utilă totală: 115 mp
An construcție: 1960

Istoric preț

Facilități

Utilități
Apă Curent Gaze Canalizare

Puncte de interes

Mijloace transport
transport
Billa
Mijloace transport aprox. 98 m
transport
Moldovei 1
Mijloace transport aprox. 321 m
transport
Moldovei 2
Mijloace transport aprox. 329 m
transport
Autogar Q7
Mijloace transport aprox. 340 m
Școală
education
Facultatea de Stiinte Agricole
Învățământ aprox. 507 m
education
Facultatea de Litere si Arte
Învățământ aprox. 581 m
education
Universitatea Romano-Germana Sibiu
Învățământ aprox. 586 m
education
Scoala Nr. 1
Învățământ aprox. 622 m
Recreere
parks
Teren sportiv
Recreere aprox. 58 m
restaurants
Mai Coffe Lounge
Restaurante aprox. 107 m
shopping
Profi Strand
Supermarket/Mall aprox. 554 m
shopping
Magazinul Dumbrava
Supermarket/Mall aprox. 764 m

Proprietăți similare

Birou, de 206 mp, în Central
1.500 € / lună
Sibiu, Central
206 mp utili
1950
Birou, de 300 mp, în Central
1.460 € / lună
Sibiu, Central
300 mp utili
3E
1980
Birou, de 180 mp, în Central
1.260 € / lună
Sibiu, Central
180 mp utili
2E
Birou, de 150 mp, în Central
1.303 € / lună
Sibiu, Central
150 mp utili
1980
Birou, de 200 mp, în Tineretului
1.500 € / lună
Sibiu, Tineretului
200 mp utili
1E
2020
Birou, de 300 mp, în Ultracentral
1.500 € / lună
Sibiu, Ultracentral
300 mp utili
1E
1935
Birou, de 152 mp, în Calea Dumbrăvii
1.520 € / lună
Sibiu, Calea Dumbrăvii
152 mp utili
2011
Birou, de 150 mp, în Calea Poplăcii
1.500 € / lună
Sibiu, Calea Poplăcii
150 mp utili
3E
2010
Birou, de 130 mp, în Calea Dumbrăvii
1.349 € / lună
Sibiu, Calea Dumbrăvii
130 mp utili
2E
2013

Abonează-te la newsletter să fii primul care primește cele mai noi recomandări de proprietăți și sfaturi de la experți.