Spatii birou/ Soseaua Pantelimon/ parcare/ centrala

2.904 € / lună
9.68 € / mp / lună

Moşilor, Bucureşti

Suprafață utilă totală:
300 mp

Descriere spațiu comercial

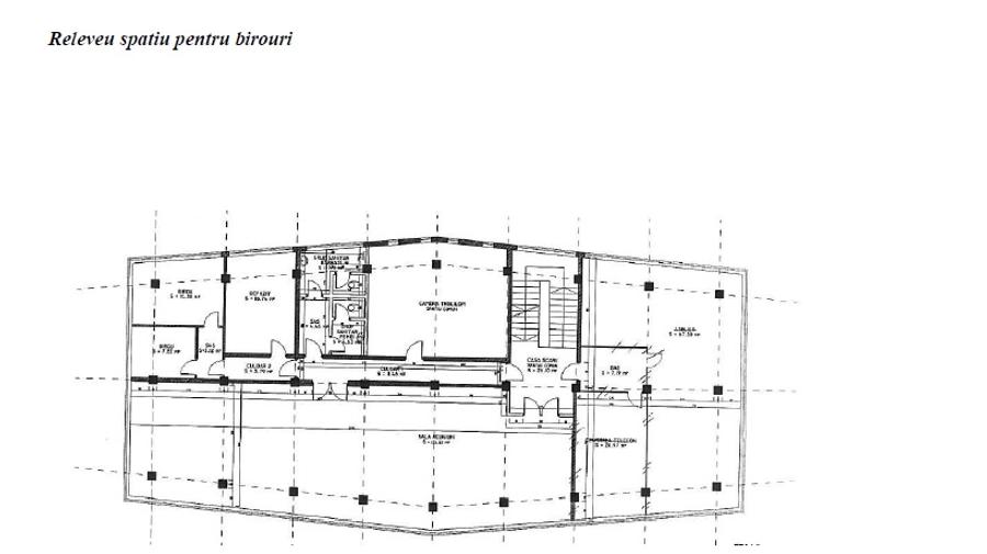
Proprietate - P15215 Spatiile pentru birouri se afla in zona centrala, in apropiere de statia de metrou OBOR (10 minute) si alte mijloace de transport in comun. Acesta dispune de o parcare privata, cu o capacitate de 50 locuri de parcare. Spatiile sunt dispuse astfel: Etajele 3,6,8 si 9 - fiecare etaj avand cate 300mp Etajul 4 - 100 mp Etajul 2 - 150 mp Etajul 1 - 28 mp Spatiile situate la etajele 3, 6 si 9 se afla in curs de amenajare, in regim open-space, si pot fi predate in termen de 30 de zile de la semnarea contractului. Pretul de inchiriere: 7,5 euro/mp/luna + TVA Taxa de mentenanta: 0,5 euro/mp/luna + TVA Suprafata totala spatiu: 1478 mp. Localizare: Soseaua Pantelimon nr. 10-12, Sector 2, Bucuresti Mijloace de transport principale: tramvai: 1; 14; 21; 36 troleibuz: 66; 69; 85 autobuz: 101; 335; 682 trasee de noapte: N101; N108 metrou: linia M1 - statia Obor OFERTĂ DEDICATĂ CHIRIAȘILOR Beneficiezi de: Consultanta dedicata din partea agentiei CLC Asistenta completa in intocmirea contractului si inregistrarea ANAF Posibilitate de vizionare rapida si flexibila Pentru programarea unei vizionari sau informatii suplimentare, nu ezita sa ne contactezi! Nr incaperi: 1 Utilitati - Sistem incalzire (Centrala proprie,Calorifere) Finisaje - Podele (Gresie); Ferestre cu geam termopan (PVC) pret inchiriere: 2904 moneda inchiriere: EUR Disponibilitate proprietate: imediat
Citește mai mult Citește mai puțin
Nemobilat Calorifere Centrală proprie

Detalii spațiu comercial

ID anunț: 57416 Actualizat în: 27 Ianuarie 2026
Suprafață utilă: 300 mp
Suprafață utilă totală: 300 mp
Etaj: Etaj 9

Istoric preț

Facilități

Sistem încălzire
Centrală proprie Calorifere
Podele
Gresie
Ferestre cu geam termopan
PVC
Mobilat
Nemobilat

Puncte de interes

Mijloace transport
transport
Statie Bd. Carol I / Calea Mosilor linii : 21
Mijloace transport aprox. 113 m
transport
Bulevardul Carol I
Mijloace transport aprox. 117 m
transport
Bulevardul Carol I
Mijloace transport aprox. 132 m
transport
Statia Bd. Pache Protopopescu / Traian linia 311, N102,90, 70, 92
Mijloace transport aprox. 317 m
Școală
education
Universitatea din Bucuresti - Facultatea de Stiinte Politice
Învățământ aprox. 133 m
education
Facultatea de Stiinte Politice
Învățământ aprox. 142 m
education
Colegiul Economic Hermes
Învățământ aprox. 249 m
education
Colegiul National Bilingv "George Cosbuc"
Învățământ aprox. 258 m
Recreere
parks
Parcul Izvorul Rece
Recreere aprox. 32 m
restaurants
Restaurantul Izvorul Rece
Restaurante aprox. 59 m
shopping
Mega Image Paleologu
Supermarket/Mall aprox. 447 m
shopping
Mega Image
Supermarket/Mall aprox. 616 m

Proprietăți similare

Birou, de 250 mp, în Doamna Ghica
3.000 € / lună
București, Doamna Ghica
250 mp utili
3E
Birou, de 9,500 mp, în Muncii
2.955 € / lună
București, Muncii
9.500 mp utili
12E
2010
Birou, de 60 mp, în Barbu Văcărescu
2.679 € / lună
București, Barbu Văcărescu
60 mp utili
1E
Birou, de 205 mp, în Eminescu
2.870 € / lună
București, Eminescu
205 mp utili
2019
Birou, de 205 mp, în Eminescu
2.870 € / lună
București, Eminescu
205 mp utili
7E
2019
Birou, de 140 mp, în Barbu Văcărescu
2.940 € / lună
București, Barbu Văcărescu
140 mp utili
3E
2025
Birou, de 205 mp, în Eminescu
2.870 € / lună
București, Eminescu
205 mp utili
7E
2019
Birou, de 200 mp, în P-ța Muncii
3.000 € / lună
București, P-ța Muncii
200 mp utili
11E
Birou, de 210 mp, în Barbu Văcărescu
2.940 € / lună
București, Barbu Văcărescu
210 mp utili
2008

Abonează-te la newsletter să fii primul care primește cele mai noi recomandări de proprietăți și sfaturi de la experți.