Teren 451 mp cu aut de construc?ie pentru vila D+P+E 210 mp.

135.000 €
299.33 € / mp

Semicentral, Iaşi

Suprafață teren:
451 mp

Descriere teren

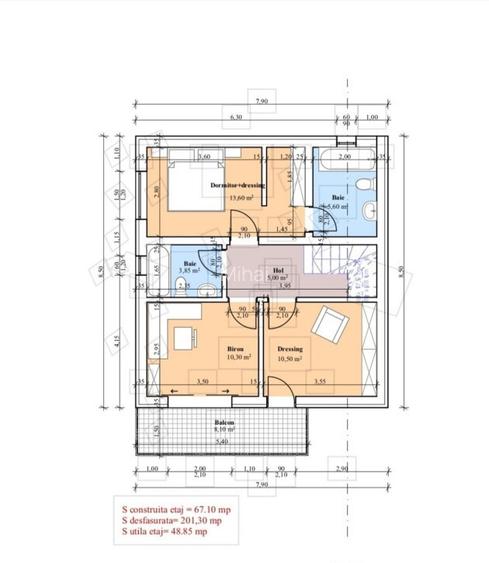
Ocazie rara !!Central Iasi. Teren 451 mp de teren intravilan, str Miron Costin Nr 23 Iasi, aproape de policlinica Acadia de pe strada Sarariei. Utilitati pe teren : apa, gaz, curent , canalizare. Deschidere la strada asfaltata 23 ml. Proiect constructie aprobat pentru Vila 210 mp construiti D+P +E. Construirea casei se poate incepe imediat. Autorizatia de constructie este valabila 2 ani de la inceperea lucrarilor. Pret teren 300 euro/mp. Se accepta si schimb cu apartament +diferenta.
Citește mai mult Citește mai puțin

Detalii teren

ID anunț: 3433676 Actualizat în: 09 Februarie 2026
Suprafață teren: 451 mp

Istoric preț

Puncte de interes

Mijloace transport
transport
Statia "Podu de Piatra", linia 2,5
Mijloace transport aprox. 487 m
transport
Statia "Podu de Piatra", linia 19
Mijloace transport aprox. 490 m
transport
Statia "Subpasaj ACB", linia 2,6
Mijloace transport aprox. 516 m
transport
Statia "Subpasaj ACB", linia 6b
Mijloace transport aprox. 520 m
Școală
education
Grup scolar "VIRGIL MADGEARU"
Învățământ aprox. 183 m
education
Scoala de Soferi ProDrive
Învățământ aprox. 209 m
education
Scoala Trei Ierarhi
Învățământ aprox. 387 m
education
Scoala Auto Jordache
Învățământ aprox. 426 m
Recreere
parks
Teren sportiv
Recreere aprox. 51 m
restaurants
Umami
Restaurante aprox. 180 m
shopping
Kaufland (Pavlov)
Supermarket/Mall aprox. 347 m
shopping
Galeriile Ştefan cel Mare
Supermarket/Mall aprox. 367 m

Proprietăți similare

Teren de 451 mp, în Moara de Vânt
135.000 €
Iași, Moara de Vânt
451 mp teren
Teren intravilan de 10000 mp, în Bucium
125.000 €
Iași, Bucium
10.000 mp teren
Teren de 5000 mp, în Central
140.000 €
Iași, Central
5.000 mp teren
Teren extravilan de 4500 mp, în Miroslava
126.000 €
Iași, Miroslava
4.500 mp teren
Pășune
Teren de 3400 mp, în Central
140.000 €
Iași, Central
3.400 mp teren
Teren de 451 mp, în Sărărie
135.000 €
Iași, Sărărie
451 mp teren
Teren de 4680 mp, în Bârnova
141.000 €
Județul Iași, Bârnova
4.680 mp teren
Teren de 3500 mp, în Cornești
140.000 €
Județul Iași, Cornești
3.500 mp teren
Teren de 3500 mp, în Păun
140.000 €
Județul Iași, Păun
3.500 mp teren

Abonează-te la newsletter să fii primul care primește cele mai noi recomandări de proprietăți și sfaturi de la experți.