Oportunitate PUD Aprobat Acces Imediat Centura Bucuresti

440.510 €
145 € / mp

Chitila, Judeţul Ilfov

Suprafață teren:
3.038 mp

Descriere teren

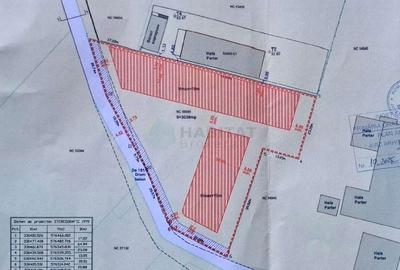
Va propunem spre vanzare un teren intravilan in suprafata de 3.038 mp, situat strategic in zona Rudeni Chitila, unul dintre cele mai dinamice hub-uri logistice din nord-vestul Bucurestiului. Marele avantaj al acestei proprietati este PUD-ul (Plan Urbanistic de Detaliu) deja aprobat, ceea ce elimina timpii de asteptare birocratici si permite demararea rapida a proiectului. Localizare Strategica: Amplasat in imediata vecinatate a Soselei de Centura, terenul ofera acces facil catre A1 (Bucuresti-Pitesti), DN7 si viitoarea autostrada A0. Este ideal pentru afaceri care depind de logistica si transport rapid. Ready-to-Build: Existenta PUD-ului aprobat reprezinta o economie majora de timp (aproximativ 6-12 luni) si bani pentru viitorul proprietar. Accesibilitate: Accesul la sosea se face din imediata vecinatate, facilitand intrarea camioanelor sau a utilajelor de mare tonaj. Suprafata Generoasa: Cei 3.038 mp ofera o amprenta la sol suficienta pentru o hala de dimensiuni medii, platforma betonata sau spatiu mixt (birouri + depozitare). Proiectul prevede construirea a doua hale. Pentru mai multe informatii va recomandam sa ne contactati telefonic. _ iBuget insuficient? La HABITAT Brokers ai serviciu de finantare inclus: Identificam tipul de credit ideal. Simulam rata. Comparam ofertele actuale din piata. Depunem dosarul si stam in legatura cu banca pana la aprobare. Totul cu ZERO costuri suplimentare. Contacteaza-ne azi pentru o analiza gratuita!
Citește mai mult Citește mai puțin

Detalii teren

ID anunț: 4043026 Actualizat în: 01 Aprilie 2026
Suprafață teren: 3.038 mp

Istoric preț

Puncte de interes

Mijloace transport
transport
Gara Chiajna
Mijloace transport aprox. 1604 m
transport
Statia Depou Legume Chiajna, linia 405,421
Mijloace transport aprox. 1634 m
Școală
education
Rudeni School (en)
Învățământ aprox. 1044 m
education
Scoala "ALEXANDRU ODOBESCU" Chiajna (en)
Învățământ aprox. 1895 m
education
Cladirea scolii nr 1 (en)
Învățământ aprox. 1908 m
Recreere
parks
Stadionul Concordia Chiajna
Recreere aprox. 1439 m
parks
Parc
Recreere aprox. 1540 m

Proprietăți similare

Teren de 3038 mp, în Nord
440.510 €
Județul Ilfov, Chitila
3.038 mp teren
Teren intravilan de 24890 mp, în Sud-Vest
425.000 €
Județul Ilfov, Chitila
24.890 mp teren
Construcții
Teren de 19914 mp, în Chitila
458.000 €
Județul Ilfov, Chitila
19.914 mp teren
Teren de 3971 mp, în Vidra
450.000 €
Județul Ilfov, Vidra
3.971 mp teren
Teren de 1474 mp, în Tunari
458.000 €
Județul Ilfov, Tunari
1.474 mp teren
Teren de 27000 mp, în Chiajna
432.000 €
Județul Ilfov, Chiajna
27.000 mp teren
Teren de 3500 mp, în Central
420.000 €
Județul Ilfov, Bragadiru
3.500 mp teren
Teren intravilan de 10000 mp, în Snagov
400.000 €
Județul Ilfov, Snagov
Construcții
Teren de 1733 mp, în Central
407.255 €
Județul Ilfov, Voluntari
1.733 mp teren

Abonează-te la newsletter să fii primul care primește cele mai noi recomandări de proprietăți și sfaturi de la experți.