Teren 830 mp Sector 5 | Autorizație hală P+1 | Curent trifazic | Investiție

132.000 €
159.04 € / mp

Măgurele, Bucureşti

Suprafață teren:
830 mp
Tip teren:
Construcții

Descriere teren

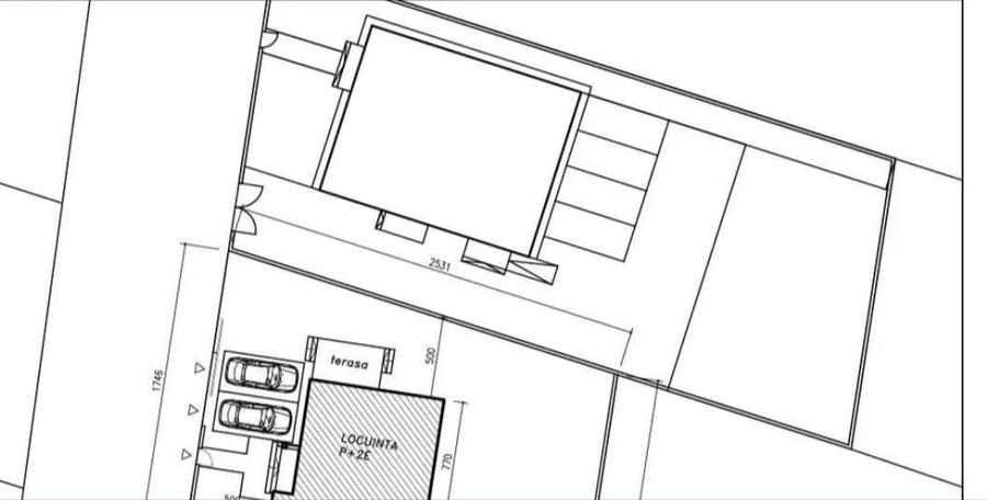
ID 247833 Art Consul Imob vă propune spre vânzare un teren intravilan cu suprafața de 830 mp, situat în București – Sector 5, într-o zonă liniștită și în plină dezvoltare, cu acces rapid către Șoseaua de Centură. 📍 Caracteristici principale: Suprafață teren: 830 mp Drum de acces 10 m lățime Curent electric trifazic la proprietate Restul utilităților în imediata apropiere Teren împrejmuit cu gard metalic Zonă curată, cu case și blocuri construite în apropiere 🏗 Avantaj major: Pe teren există autorizație de construire în vigoare pentru hală metalică P+1E, cu destinația spații comerciale, depozitare și birouri, cu proiect de rezistență și toate avizele obținute. ✔ Suprafața utilă totală a halei: aprox. 290 mp ✔ Viitorul proprietar poate începe imediat lucrările sau poate opta pentru un alt tip de construcție (casă, duplex sau alt proiect). 📑 Situație juridică clară: Toate actele sunt în regulă, terenul fiind curat din punct de vedere juridic, fără probleme sau complicații. Comisionul perceput de Art Consul Imob este de 3% din valoarea tranzacționată. Agent : Adela Lupu
Citește mai mult Citește mai puțin
Electricitate

Detalii teren

ID anunț: 3765266 Actualizat în: 02 Aprilie 2026
Suprafață teren: 830 mp
Tip teren: Construcții
Clasificare teren: Intravilan

Istoric preț

Facilități

Utilități
Curent
Amenajare străzi
Iluminat stradal
Alte caracteristici
Acces auto Teren împrejmuit

Puncte de interes

Mijloace transport
transport
Statia Pecinisca, linia 303
Mijloace transport aprox. 524 m
transport
Statia Curtea de Arges, linia 303
Mijloace transport aprox. 861 m
transport
Statia Slatina, linia 303
Mijloace transport aprox. 1141 m
transport
Statia Soseaua Vartejului, linia 303
Mijloace transport aprox. 1674 m
Școală
education
Scoala Generala Nr. 125
Învățământ aprox. 1596 m
Recreere
parks
Parc
Recreere aprox. 1934 m
restaurants
pizzeria
Restaurante aprox. 1944 m
parks
Parc
Recreere aprox. 1973 m
shopping
Coral Market 5
Supermarket/Mall aprox. 1999 m

Proprietăți similare

Teren Construcții intravilan de 231 mp, în Bucureștii Noi
120.000 €
București, Bucureștii Noi
231 mp teren
Construcții
Teren Construcții intravilan de 469 mp, în Prelungirea Ghencea
145.000 €
București, Prelungirea Ghencea
469 mp teren
Construcții
Teren Construcții intravilan de 500 mp, în Apusului
139.800 €
București, Apusului
500 mp teren
Construcții
Teren Construcții intravilan de 1000 mp, în Băneasa
145.000 €
București, Băneasa
1.000 mp teren
Construcții
Teren Construcții intravilan de 1000 mp, în Băneasa
130.000 €
București, Băneasa
1.000 mp teren
Construcții
Teren Construcții intravilan de 203 mp, în Bucureștii Noi
145.000 €
București, Bucureștii Noi
203 mp teren
Construcții
Teren Construcții intravilan de 510 mp, în Colentina
125.000 €
București, Colentina
510 mp teren
Construcții
Teren Construcții intravilan de 1246 mp, în Progresul
120.000 €
București, Progresul
1.246 mp teren
Construcții
Teren Construcții intravilan de 250 mp, în Bucureștii Noi
135.000 €
București, Bucureștii Noi
250 mp teren
Construcții

Abonează-te la newsletter să fii primul care primește cele mai noi recomandări de proprietăți și sfaturi de la experți.