
3 luni în urmă
18
- Agenție
- Comision 0%
Alexandru Bothaza
119.500 €
Actualizat pe: 11 Sep 2025
-
Parcare pentru clienti
aprox. 699 m
-
Parc
aprox. 1103 m
Teren de Vanzare in Salicea - Autorizatie de Construire comision 0%
119.500 €
Sălicea, Județul Cluj
Descriere
Raportează anunț
Sesizează o problemă
Teren de Vanzare in Salicea - Autorizatie de Construire comision 0%
Teren de Vanzare in Salicea - Autorizatie de Construire comision 0%
Teren Intravilan de Vanzare in Salicea - Autorizatie de Construire & Proiect Aprobat
Locatie deosebita - Salicea, zona linistita, inconjurata de natura, perfecta pentru constructia unei case moderne.
COMISION 0%!
Detalii Teren:
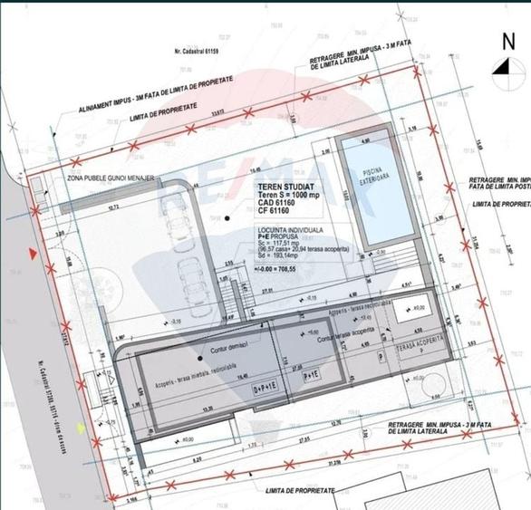
Suprafata: 1000 mp - ideal pentru o locuinta spatioasa
Autorizatie de construire emisa
Proiect aprobat pentru casa moderna + piscina
Regim de inaltime: D+P+1E
Front stradal: ~30 m
Caracteristici Proiect Casa:
Suprafata utila: 269 mp
Piscina proiectata: 49 mp
Garaj subteran pentru 2 masini + 2 locuri de parcare in curte
Compartimentare Ideala:
Demisol:
Garaj: 47.29 mp
Spatiu tehnic: 16.63 mp
Hol: 2.41 mp
Parter:
Living + Bucatarie + Loc de luat masa: 64.72 mp
Chicineta: 5 mp
Baie: 3 mp
Casa scarii: 7.69 mp
Dormitor 1: 29 mp + Baie proprie 4.83 mp
Hol intrare: 28 mp
Etaj:
Hol: 9 mp
Spalatorie: 8 mp
Dormitor 2: 14 mp + Baie proprie 4.5 mp
Dormitor 3: 22 mp + Baie proprie 12 mp
Avantaje Majore:
Teren intravilan cu toate actele in regula
Proiect modern, spatios, ideal pentru familie
Zona verde si linistita, perfecta pentru un stil de viata relaxant
Posibilitate de schimb cu apartament in Floresti sau Baciu
Contacteaza-ne acum pentru mai multe detalii!
Citește mai mult
Citește mai puțin
ID anunț: 3209
Actualizat în: 11 Septembrie 2025
Suprafață teren:
1.000 mp
Clasificare teren:
Intravilan
Front stradal:
27.89999961853 m
Istoric preț
Proprietăți similare
Abonează-te la newsletter să fii primul care primește cele mai noi recomandări de proprietăți și sfaturi de la experți.
Căutări similare
- Terenuri construcții de vânzare în Sălicea
- Terenuri construcții de vânzare în Cluj-Napoca
- Terenuri construcții de vânzare în Chinteni
- Terenuri construcții de vânzare în Florești
- Terenuri construcții de vânzare în Feleacu
- Terenuri construcții de vânzare în Dezmir
- Terenuri construcții de vânzare în Popești
- Terenuri construcții de vânzare în Gilău
- Terenuri construcții de vânzare în Apahida
- Terenuri construcții de vânzare în Baciu
- Terenuri construcții de vânzare în Mărișel
- Terenuri construcții de vânzare în Gheorghieni