Teren Rediu - Gradinita KIKI - Proiect TRIPLEX P+1

95.000 €
158.33 € / mp

Rediu, Judeţul Iaşi

Suprafață teren:
600 mp
Tip teren:
Construcții

Descriere teren

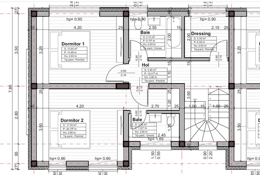
Se vinde teren intravilan in suprafata de 600 mp, amplasat în Rediu, chiar vis-a-vis de Grădinița KIKI. Proprietatea se află într-o zonă de case noi, liniștită și aproape de oraș, ceea ce o face ideală pentru construcția unei locuințe sau pentru investiție. Terenul dispune de un proiect pentru TRIPLEX P+1, cu suprafață utilă de 114 m.p./unitate locativă. Zona este foarte bine poziționată, cu acces facil și cu vecini de calitate, ceea ce garantează un mediu plăcut și sigur. Prețul solicitat este de 95.000 €, negociabil. Este o oportunitate unică pentru cei care caută un teren cu proiect gata de implementat, într-o zonă aflată în continuă dezvoltare. Pentru mai multe detalii, contactati-ne!
Citește mai mult Citește mai puțin

Detalii teren

ID anunț: 2997214 Actualizat în: 12 Ianuarie 2026
Suprafață teren: 600 mp
Tip teren: Construcții
Clasificare teren: Intravilan

Istoric preț

Puncte de interes

Mijloace transport
transport
Statia "I.V.V Copou", linia 6b
Mijloace transport aprox. 1464 m
transport
Breazu
Mijloace transport aprox. 1723 m
transport
Statia "Breazu", linia 6b
Mijloace transport aprox. 1929 m
transport
Liceul Agricol
Mijloace transport aprox. 1933 m
Școală
education
Scoala Normala 'Vasile Lupu'
Învățământ aprox. 1651 m
education
Colegiul Agricol si de industrie alimentara Vasile Adamachi
Învățământ aprox. 1819 m
Recreere
restaurants
Casablanca (for events only)
Restaurante aprox. 525 m
parks
Teren sportiv
Recreere aprox. 1051 m
restaurants
EOS CLUB (en)
Restaurante aprox. 1320 m
parks
Teren sportiv
Recreere aprox. 1662 m

Proprietăți similare

Teren Construcții intravilan de 766 mp, în Păcurari
95.000 €
Iași, Păcurari
766 mp teren
Construcții
Teren Construcții intravilan de 979 mp, în Miroslava
91.900 €
Iași, Miroslava
979 mp teren
Construcții
Teren Construcții intravilan de 1003 mp, în Bucium
90.270 €
Iași, Bucium
1.003 mp teren
Construcții
Teren Construcții intravilan de 2000 mp, în Bucium
100.000 €
Iași, Bucium
2.000 mp teren
Construcții
Teren Construcții intravilan de 800 mp, în Valea Ursului
95.000 €
Județul Iași, Valea Ursului
800 mp teren
Construcții
Teren Construcții intravilan de 688 mp, în Bucium
98.000 €
Iași, Bucium
688 mp teren
Construcții
Teren Construcții intravilan de 615 mp, în Cug
100.000 €
Iași, Cug
615 mp teren
Construcții
Teren Construcții intravilan de 1000 mp, în Nord
87.000 €
Iași, Nord
1.000 mp teren
Construcții
Teren Construcții intravilan de 950 mp, în Dorobanți
89.000 €
Iași, Dorobanți
950 mp teren
Construcții

Abonează-te la newsletter să fii primul care primește cele mai noi recomandări de proprietăți și sfaturi de la experți.