Teren Duplex/Casa individuala cu autorizatie, in Popesti

89.990 € + TVA
163.62 € + TVA / mp

Popeşti, Judeţul Cluj

Suprafață teren:
550 mp
Tip teren:
Construcții

Descriere teren

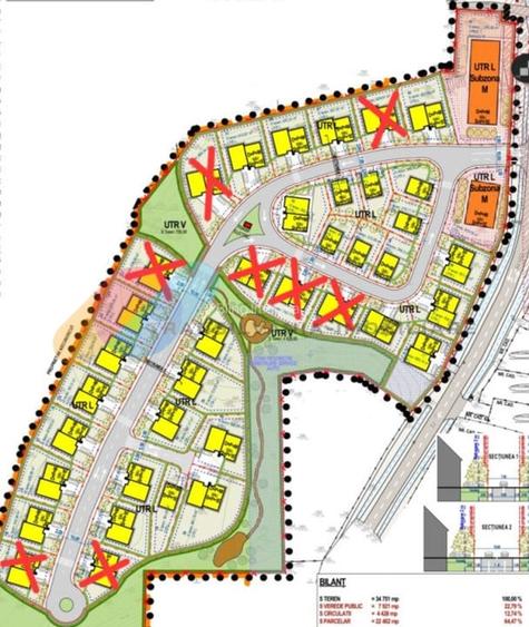
Vă propunem spre vânzare terenuri destinate construcției de unități duplex și case individuale, situate la intrarea în Popești, într-un viitor ansamblu rezidențial. Detalii teren: Suprafață totală: 34.700 mp PUZ aprobat și parcelare realizată Parcelele disponibile: De la 350 mp utili pentru case individuale Minimum 550 mp pentru duplexuri Ansamblul rezidențial va cuprinde: 68 de unități locative, dintre care: 60 de duplexuri 8 case individuale Avantaje: Asistență pentru autorizarea parcelelor Zonă în plină dezvoltare, cu potențial ridicat de investiție Acces facil și infrastructură în curs de amenajare Pentru detalii suplimentare și vizionări, vă stăm la dispoziție! Id extern: P806
Citește mai mult Citește mai puțin
Electricitate Apă Gaz Canalizare

Detalii teren

ID anunț: 4016130 Actualizat în: 30 Martie 2026
Suprafață teren: 550 mp
Tip teren: Construcții
Clasificare teren: Intravilan

Istoric preț

Facilități

Utilități
Curent Apă Canalizare Gaze
Amenajare străzi
Pietruite
Alte caracteristici
Acces auto

Puncte de interes

Mijloace transport
transport
Statia Complex Baciu, Linia 31B
Mijloace transport aprox. 1519 m
transport
Capela Ortodoxa
Mijloace transport aprox. 1573 m
transport
Parohia Ortodoxa
Mijloace transport aprox. 1580 m
transport
Statia Primarie II, linia 31B
Mijloace transport aprox. 1602 m
Școală
education
Scoala cu Clasele I-VIII Baciu
Învățământ aprox. 1396 m
education
Scoala Gimnaziala Speciala Transilvania
Învățământ aprox. 1472 m
education
Gradinita Baciu
Învățământ aprox. 1540 m
Recreere
parks
Teren sportiv
Recreere aprox. 1465 m
parks
Parc copii
Recreere aprox. 1592 m
restaurants
Baciu
Restaurante aprox. 1971 m

Proprietăți similare

Teren Construcții intravilan de 680 mp, în Popești
87.900 €
Județul Cluj, Popești
680 mp teren
Construcții
Teren Construcții intravilan de 614 mp, în Popești
82.000 €
Județul Cluj, Popești
614 mp teren
Construcții
Teren Construcții intravilan de 1000 mp, în Popești
82.000 €
Județul Cluj, Popești
1.000 mp teren
Construcții
Teren Construcții intravilan de 620 mp, în Popești
85.000 €
Județul Cluj, Popești
620 mp teren
Construcții
Teren Construcții intravilan de 1400 mp, în Popești
90.000 €
Județul Cluj, Popești
1.400 mp teren
Construcții
Teren Construcții intravilan de 700 mp, în Popești
85.000 €
Județul Cluj, Popești
700 mp teren
Construcții
Teren Construcții intravilan de 848 mp, în Popești
98.500 €
Județul Cluj, Popești
848 mp teren
Construcții
Teren Construcții intravilan de 447 mp, în Iris
89.990 €
Cluj-Napoca, Iris
447 mp teren
Construcții
Teren Construcții de 2290 mp, în Muntele Băișorii
89.800 €
Județul Cluj, Muntele Băișorii
2.290 mp teren
Construcții

Abonează-te la newsletter să fii primul care primește cele mai noi recomandări de proprietăți și sfaturi de la experți.