Teren cu Autorizatie de vanzare zona Manastur 598mp

330.000 €
551.84 € / mp

Mănăştur, Cluj-Napoca

Suprafață teren:
598 mp
Tip teren:
Construcții

Descriere teren

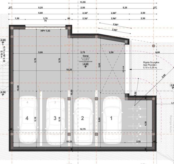
Bling Imobiliare propune spre vanzare un teren situat in cartierul Manastur, intr-o zona accesibila si bine pozitionata, ideal pentru dezvoltare rezidentiala sau mixta. Proprietatea are o suprafata de 598 mp si dispune de toate utilitatile necesare: apa, gaz, canalizare si curent electric. Terenul beneficiaza de autorizatie de constructie pentru o cladire cu regim de inaltime S+P+E+Pod, conceputa modern si functional: Subsolul este prevazut cu 4 garaje auto. Parterul ofera un spatiu pentru servicii sau activitati comerciale, cu acces public si o suprafata utila de 90 mp. Etajul si podul sunt proiectate pentru doua apartamente spatioase, fiecare cu o suprafata utila de 90 mp. Proiectul este ideal pentru investitori sau dezvoltatori care doresc sa valorifice potentialul unei zone dinamice si bine conectate din Cluj-Napoca. Documentatia este completa, iar autorizatia de construire este emisa si valabila. Pentru mai multe detalii si vizionare, nu ezitati sa ne contactati. ID Extern P11725
Citește mai mult Citește mai puțin
Electricitate Apă Gaz Canalizare

Detalii teren

ID anunț: 2066518 Actualizat în: 02 Martie 2026
Suprafață teren: 598 mp
Tip teren: Construcții
Clasificare teren: Intravilan
Front stradal: 19 m

Istoric preț

Facilități

Utilități
Curent Apă Canalizare Gaze
Amenajare străzi
Asfaltate
Alte caracteristici
Oportunitate de investiție La șosea Acces auto

Puncte de interes

Mijloace transport
transport
Frunzisului Vest
Mijloace transport aprox. 202 m
transport
Frunzisului
Mijloace transport aprox. 209 m
transport
Balea Est
Mijloace transport aprox. 217 m
transport
Balea Vest
Mijloace transport aprox. 230 m
Școală
education
Colegiul Tehnic Edmond Nicolau
Învățământ aprox. 190 m
education
Şcoala Liviu Rebreanu / Liceul Liviu Rebreanu
Învățământ aprox. 296 m
education
Scoala Liviu Rebreanu
Învățământ aprox. 296 m
education
Gradinita Buburuza
Învățământ aprox. 306 m
Recreere
restaurants
Vila Rosa
Restaurante aprox. 258 m
parks
Parc
Recreere aprox. 318 m
shopping
NONstop
Supermarket/Mall aprox. 406 m
shopping
Carrefour Market
Supermarket/Mall aprox. 422 m

Proprietăți similare

Teren Construcții intravilan de 977 mp, în Mănăștur
349.000 €
Cluj-Napoca, Mănăștur
977 mp teren
Construcții
Teren Construcții intravilan de 977 mp, în Mănăștur
348.000 €
Cluj-Napoca, Mănăștur
977 mp teren
Construcții
Teren Construcții intravilan de 800 mp, în Mănăștur
320.000 €
Cluj-Napoca, Mănăștur
800 mp teren
Construcții
Teren Construcții intravilan de 598 mp, în Mănăștur
305.000 €
Cluj-Napoca, Mănăștur
598 mp teren
Construcții
Teren Construcții intravilan de 1544 mp, în Mănăștur
298.000 €
Cluj-Napoca, Mănăștur
1.544 mp teren
Construcții
Teren Construcții intravilan de 863 mp, în Mănăștur
350.000 €
Cluj-Napoca, Mănăștur
863 mp teren
Construcții
Teren Construcții de 800 mp, în Grigorescu
299.000 €
Cluj-Napoca, Grigorescu
800 mp teren
Construcții
Teren Construcții intravilan de 2250 mp, în Sopor
337.500 €
Cluj-Napoca, Sopor
2.250 mp teren
Construcții
Teren Construcții de 740 mp, în Dâmbul Rotund
360.000 €
Cluj-Napoca, Dâmbul Rotund
740 mp teren
Construcții

Abonează-te la newsletter să fii primul care primește cele mai noi recomandări de proprietăți și sfaturi de la experți.