1

Pantelimon DN3 hala 600 mp

€ 690.000

Pantelimon, Judeţul Ilfov

Descriere

Raportează anunț

Pantelimon DN3 hala 600 mp

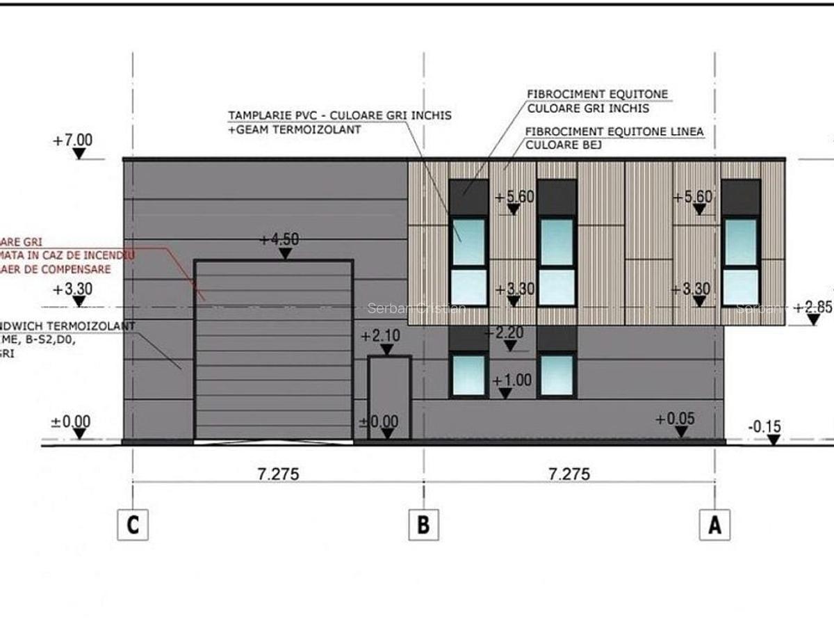
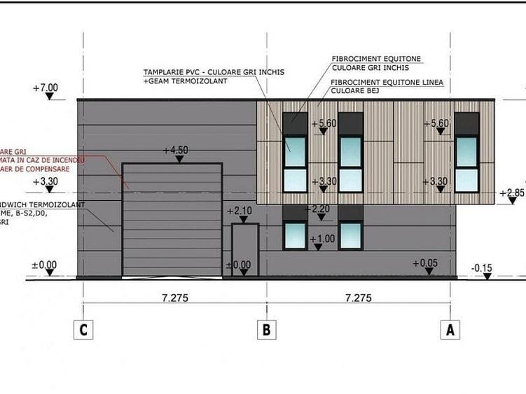
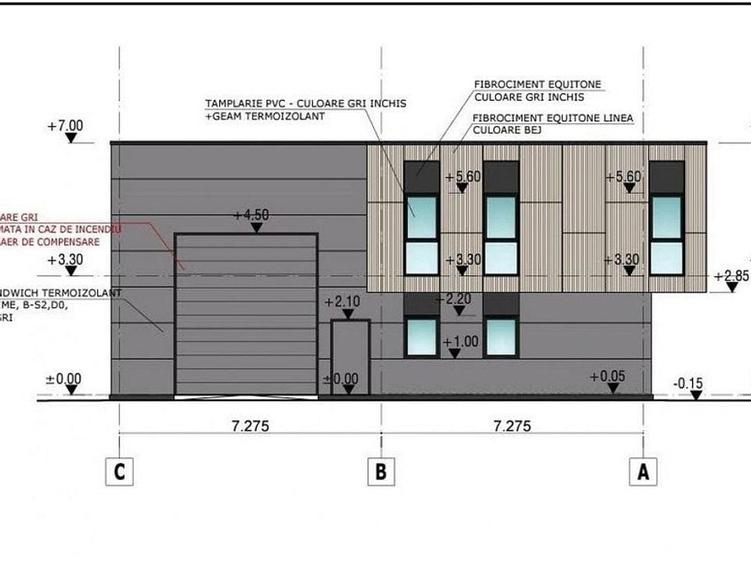
K Imobiliare propune hala construita pe un lot de teren cu adancime ade aproximativ 42-43 m si o latime la drumul de servitude de 37 m Halele au deschiderea catre drumul de servitute de 30ml iar in adancime aprox 20 ml ( 593mp) Structura de rezistenta este de beton ( fundatii prefabricate, centura si stalpi) iar grinzile din otel ( profile IPE) Inchiderile se realizeaza cu panouri de spuma de 80mm la pereti si 100mm la acoperis. Hala va fi dotata cu trape de fum, usa sectionala industriala de 4 m latime /4.5m inaltime , o usa pietonala de 1 m cu 2,05 m h; platforma betonata interioara se realizeaza cu o grosime de 18-20cm si va fi armata cu fibre metalice iar Platforma exterioara va avea o suprafata de aprox 300-350mp , o grosime de 18-20 cm si va fi realizata cu beton rutier. Portile de acces pe proprietate au o deschidere de 9 m si sunt automatizate ( marca WISNIOWSKI ) . Gardul este realizat din beton partea de fundatie si soclu + plasa bordurata de otel de 1.7m ( galvanizata si vopsita in camp electrostatic ca si portile ) Iluminatul interior se va realiza cu lampi led, iar la exterior o lampa de 75 w stardala. Curentul electric se va asigura prin bransament individual de 35kw care se poate modifica in baza unei cereri cu 50% Retea de gaze vom asigura la limita de proprietate . Canalizare exista trasa pe teren. pretvanzare: 690000 monedavanzare: EUR pretvanzaremp: 0 monedavanzaremp: EUR pretinchiriere: 0 monedainchiriere: EUR monedainchiriereunitar: EUR Suprafata construita: 600 mp Nr incaperi: 1 Alte detalii zona - Amenajare strazi (Asfaltate) Utilitati - Utilitati generale (Curent,Curent trifazic,Apa,Canalizare,Gaz) Alte caracteristici - Acces (TIR) pret vanzare: 690000 moneda vanzare: EUR Disponibilitate proprietate: Imediat
Citește mai mult Citește mai puțin
ID anunț: 13384 Actualizat în: 29 Decembrie 2025
Suprafață utilă: 595 mp
Suprafață utilă totală: 595 mp
Etaj: Parter
An construcție: 2022
Suprafață teren: 1.590 mp

Istoric preț

Utilități

Utilități
Apă Canalizare Curent Gaze

Proprietăți similare

Spațiu industrial, de 1,600 mp, în Central
€ 650.000
Județul Ilfov, Pantelimon
1.600 mp utili
800 mp teren
1985
Spațiu comercial, de 1,060 mp, în Central
€ 750.000
Județul Ilfov, Pantelimon
1.060 mp utili
Spațiu industrial, de 1,058 mp, în Exterior Est
€ 750.000
Județul Ilfov, Pantelimon
1.058 mp utili
2.639 mp teren
2020
Spațiu comercial, de 520 mp, în Central
€ 750.000
Județul Ilfov, Popești-Leordeni
520 mp utili
2024
Spațiu industrial, de 735 mp, în Mogoșoaia
€ 668.115
Județul Ilfov, Mogoșoaia
735 mp utili
1.031 mp teren
2024
Spațiu comercial, de 281 mp, în Vest
€ 700.000
Județul Ilfov, Popești-Leordeni
281 mp utili
7E
2025
Spațiu industrial, în Central
€ 680.000
Județul Ilfov, Popești-Leordeni
2025
Proprietate specială, de 331 mp, în Central
€ 675.000
Județul Ilfov, Otopeni
331 mp utili
1E
2022
Spațiu industrial, de 1,080 mp, în Est
€ 750.000
Județul Ilfov, Voluntari
1.080 mp utili
3.000 mp teren
2025

Abonează-te la newsletter să fii primul care primește cele mai noi recomandări de proprietăți și sfaturi de la experți.