7 luni în urmă
5
- Agenție
- Comision 0%
Spatiu productie/ depozitare FRIG/ birouri/ 584mp/ CATERING, carmangerie,
3.276 €
/ lună
6.50 €
/ mp
/ lună
Joiţa, Judeţul Giurgiu
Descriere spațiu comercial
Sesizează o problemă
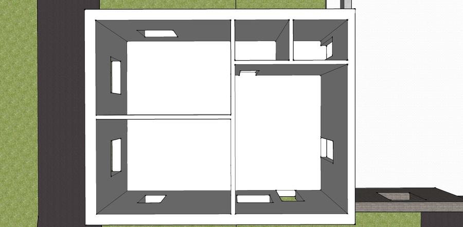
Spatiu de productie pentru INDUSTRIE ALIMENTARA (carmangerie, legume-fructe, panificatie), suprafata interioara totala 504mp + optional 80mp anexa birouri, in cadrul unei incinte industriale compacte (45000mp curte cu 7500mp cladiri si 3000mp platforme betonate) in care functioneaza mai multe spatii de procesare independente. Compartimentare conform normative in vigoare, utilitati (curent, gaze, apa, canal) contorizate separat, spatii REFRIGERARE, spatii CONGELARE, locuri de parcare, acces TIR, paza incinta.
...
SUPRAFATA si inaltime:
- 504mp spatiu productie+depozitare, + optional 80mp birouri;
- 4m inaltime minima utila;
...
COMPARTIMENTARE si accesorii:
- vestiare + dusuri;
- grupuri sanitare;
- sala de mese;
- depozit ambalaje;
- depozite materii prime (partial 4grC);
- sala de lucru;
- depozite produs finit (clima 4grC sau -20grC);
- intrari iesiri separate pt personal, materii prime, ambalaje, produs finit;
- variante UTILAJE industrie alimentara (utilaje SH din stoc sau la comanda, ..);
- utilitati (curent, gaz, apa, canal) contorizate separat, contracte (subcontracte) active;
- spatiu rezerva pentru dezvoltare;
- acces TIR;
- locuri parcare pentru TIR si personal, din care o parte rezervabile pentru folosinta exclusiva;
...
PRET si conditii INCHIRIERE:
- pret de referinta (include birouri, igienizare si mici retusuri cerute la reautorizare) 6.5euro mpX584mp=3796euro luna;
- pret "asa cu e" (fara pregatire pentru reautorizare si fara birouri) 6euro mp X 504mp =3024euro mp;
- mentenanta (participare la cheltuieli comune, ex.: iluminat si curatenie curte) max 200euro luna;
- perioada de gratie pentru instalare 30zile;
- anumite categorii de cheltuieli de (re)amenajare decontabile din chirie;
...
DISPONIBIL:
- imediat;
...
ISTORIC folosinta si variante:
- sectie catering;
- carmangerie;
...
VECINI curte:
- alte sectii industrie alimentara 2 x (C4A 600mp +C4B 144mp), in activitate 12, respectiv 6luni an;
- service auto (3 x 72mp), in activitate 11luni an;
- ateliere confecti metalice;
- atelier tamplarie;
- farmacie veterinara;
- boxe depozitare;
...
ARGUMENTE:
- acces usor (2km din A1 km 17, 3km din Sosea Centura, 1km de nod A1 A0Centura)
- spatii parcare pentru personal si vizitatori, inclusiv parcare TIR;
- spatiu modular, variante recompartimentare;
- suport mutare amenajare;
- suport optimizare cheltuieli exploatare;
- suport fonduri europene;
- direct PROPRIETAR Publi24_17
Citește mai mult
Citește mai puțin
Apă
Acces TIR
Detalii spațiu comercial
ID anunț: 1076168
Actualizat în: 28 Ianuarie 2026
Suprafață utilă:
504 mp
Suprafață utilă totală:
504 mp
An construcție:
1980
Regim înălțime:
P+1E
Nr. niveluri:
1
Istoric preț
Facilități
Acces
Acces TIR
Cale rutieră
Utilități
Apă
Dotări
Rampă
Instalație încălzire
Climatizare
Ferestre/luminatoare
Iluminat
Proprietăți similare
Abonează-te la newsletter să fii primul care primește cele mai noi recomandări de proprietăți și sfaturi de la experți.
Căutări similare
- Spații comerciale de închiriat în Joița
- Spații comerciale de închiriat în Giurgiu
- Spații comerciale de închiriat în Bâcu
- Spații comerciale de închiriat în Bolintin-Vale
- Spații comerciale de închiriat în Remuș
- Spații comerciale de închiriat în Bălanu
- Spații comerciale de închiriat în Bolintin-Deal
- Spații comerciale de închiriat în Brăniștari
- Spații comerciale de închiriat în Daia
- Spații comerciale de închiriat în Florești
- Spații comerciale de închiriat în Palanca
- Spații comerciale de închiriat în Plopșoru