Vanzare cladire de birouri Ultracentral-Universitate

3.200.000 €
914.29 € / mp

Universitate, Bucureşti

Suprafață utilă totală:
3.500 mp
An construcție:
1963

Descriere spațiu comercial

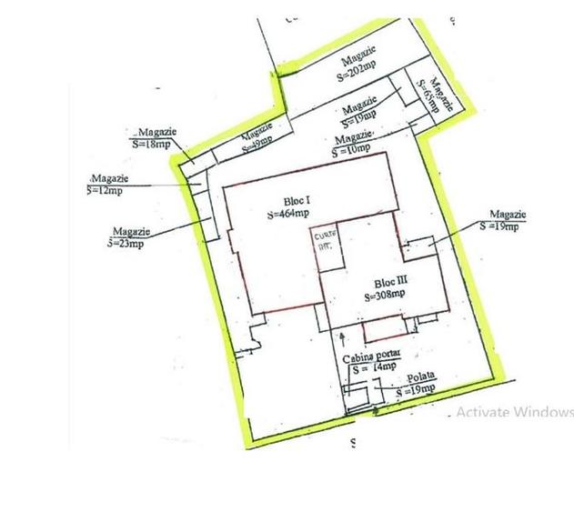
ID intern: 364614 Spații de birouri amplasate în două corpuri de clădiri de birouri: bloc I, cu regim de înălțime S+P+6E+7Eteh, cu suprafață utilă de 2.702,65 mp și bloc III, cu regim de înălțime S+P+2E, cu suprafață utilă de 955,74 mp Anul construcției: 1963 Regim de înălțime: S+P+6E +7Etehn Lift: 1 Structura: cadre din beton armat, planșee din beton armat Acoperiș: terasă Aspect interior: bun Aspect exterior: mediu Funcțiunile clădirii: etaje – birouri, ateliere de proiectare, recepții, spații pentru întâlniri, subsol: spații depozitare, centrala termică, hidrofor Tipul construcției: clădire de birouri Anul construcției: 1940 modernizată și întreținută succesiv Regim de înălțime: S+P+2E Lift: - Structura: cadre din beton armat, planșee din beton armat Acoperiș: șarpantă cu învelitoare din tablă Spatiu de birouri in de vanzare in zona Universitate - Bucuresti, este construit in anul 1963, renovat , Vizionarea acestui imobil se face doar în baza semnării unui acord de vizionare conform codului civil, art 2.096-2.102 . Se percepe comision 3%. Politica agentiei este de a optimiza negocierea pretului in raport cu comisionul.
Citește mai mult Citește mai puțin

Detalii spațiu comercial

ID anunț: 3413768 Actualizat în: 05 Februarie 2026
Suprafață utilă: 3.500 mp
Suprafață utilă totală: 3.500 mp
An construcție: 1963

Istoric preț

Puncte de interes

Mijloace transport
transport
Sf. Vineri, terminal linii:40, 55, 56, 385
Mijloace transport aprox. 176 m
transport
Statia Piata Sf. Vineri; Liniile: 14, 40, 55, 56
Mijloace transport aprox. 198 m
transport
Piata Corneliu Coposu
Mijloace transport aprox. 358 m
transport
Statia Piata Corneliu Coposu; Liniile: 14, 40, 55, 56
Mijloace transport aprox. 373 m
Școală
education
Lauder Reut School Complex (en)
Învățământ aprox. 160 m
education
Institutul Bancar Român
Învățământ aprox. 164 m
education
Liceul Lauder-Reut
Învățământ aprox. 166 m
education
Scoala cu clasele I-VIII, Nr. 73 Barbu Stefanescu Delavrancea
Învățământ aprox. 266 m
Recreere
restaurants
noul Barfly
Restaurante aprox. 41 m
parks
Parc
Recreere aprox. 63 m
shopping
Km 0
Supermarket/Mall aprox. 239 m
shopping
Carrefour Unirii
Supermarket/Mall aprox. 269 m

Proprietăți similare

Birou, de 3,560 mp, în Universitate
3.200.000 €
București, Universitate
3.560 mp utili
6E
1940
Birou, de 2,930 mp, în Victoriei
3.180.000 €
București, Victoriei
2.930 mp utili
7E
2001
Spațiu comercial, de 2,180 mp, în Centrul Istoric
2.900.000 €
București, Centrul Istoric
2.180 mp utili
3E
1884
Spațiu comercial, de 2,200 mp, în Central
3.200.000 €
București, Central
2.200 mp utili
Birou, de 2,530 mp, în P-ța Victoriei
3.190.000 €
București, P-ța Victoriei
2.530 mp utili
7E
2001
Birou, de 3,700 mp, în Central
3.200.000 €
București, Central
3.700 mp utili
6E
1963
Birou, de 750 mp, în Romană
3.000.000 €
București, Romană
750 mp utili
2000
Spațiu comercial, de 2,700 mp, în Centrul Istoric
3.000.000 €
București, Centrul Istoric
2.700 mp utili
1890
Birou, de 1,700 mp, în Central
2.900.000 €
București, Central
1.700 mp utili
2018

Abonează-te la newsletter să fii primul care primește cele mai noi recomandări de proprietăți și sfaturi de la experți.