Spatiu Comercial | Universitate - Pretabil Clinica | Vad Excelent

570.000 €
3,081.08 € / mp

Universitate, Bucureşti

Suprafață utilă totală:
185 mp
Nr. niveluri:
4

Descriere spațiu comercial

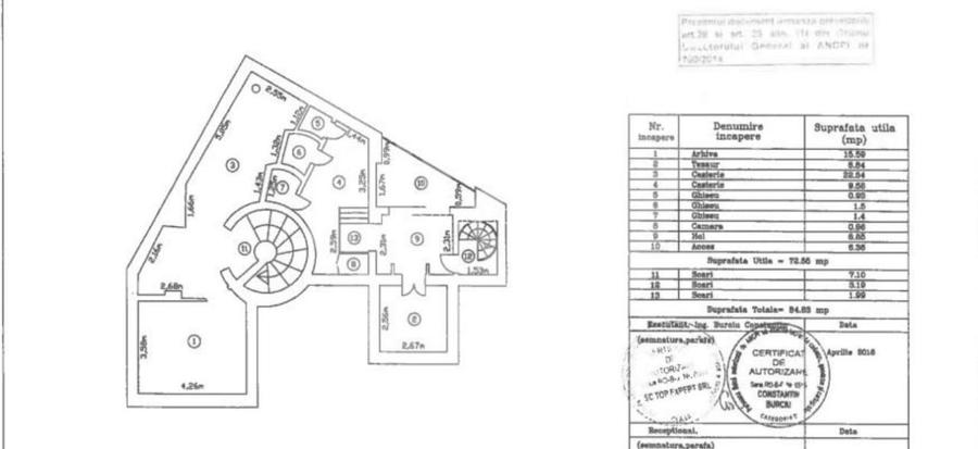
Agentia Imobiliara Settlers ofera spre vanzare un spatiu comercial modern, ideal pentru clinici, laboratoare, showroom-uri sau birouri, amplasat intr-o zona cu vizibilitate excelenta si acces facil. Spatiul are o suprafata utila de 200 mp (185 mp in prezent, cu posibilitate de extindere dupa demolarea ghiseelor de la demisol) si beneficiaza de o vitrina generoasa de 15 metri liniari, perfecta pentru expunere si branding. Compartimentarea este flexibila, putand fi adaptata in functie de specificul activitatii – de la clinici medicale pana la birouri corporate sau servicii comerciale. Detalii tehnice: Suprafata utila: 200 mp Etaj: demisol + parter Intrari: 2 (acces separat pentru clienti si personal) Bai: 2 Incalzire: centrala proprie Curent trifazic: nu este instalat, dar se poate obtine Fara ipoteca, fara TVA An constructie: 1995 Disponibilitate: imediata Spatiul poate fi inchiriat si catre persoane juridice straine Pret de vanzare: 570.000 € Comision agentie: 2% din pretul final de vanzare Acest spatiu ofera o combinatie excelenta intre pozitionare, vizibilitate si functionalitate – o oportunitate ideala pentru investitii sau dezvoltarea propriei afaceri! Nr grupuri sanitare: 2 Nr incaperi: 10 Utilitati - Sistem incalzire (Centrala proprie,Calorifere); Climatizare (Aer conditionat,Ventiloconvectoare); Utilitati generale (Curent,Apa,Canalizare,CATV) Finisaje - Podele (Gresie,Parchet); Stare interior (Necesita renovare); Ferestre cu geam termopan (PVC) Dotari - Contorizare (Apometre,Contor caldura,Contor gaz) pret vanzare: 570000 moneda vanzare: EUR Disponibilitate proprietate: imediat
Citește mai mult Citește mai puțin

Detalii spațiu comercial

ID anunț: 702288 Actualizat în: 13 Martie 2026
Suprafață utilă: 185 mp
Suprafață utilă totală: 185 mp
Regim înălțime: P+4E

Istoric preț

Facilități

Contorizare
Apometre Contor căldură Contor gaz
Mobilat
Nemobilat
Utilități
Curent Apă Canalizare
Sistem încălzire
Centrală proprie Calorifere
Climatizare
Aer condiționat Ventiloconvectoare
Podele
Parchet Gresie
Stare interior
Necesită renovare
Ferestre cu geam termopan
PVC

Puncte de interes

Mijloace transport
transport
Statia Nicolae Balcescu; Liniile:168, 300, 368, 226, 126
Mijloace transport aprox. 155 m
transport
Metrorex. Staţia Universitate (M2)(1987)
Mijloace transport aprox. 294 m
transport
Statia Piata Universitatii linii : 122,137,138,268,381,783.
Mijloace transport aprox. 328 m
transport
Statia Metrou Piata Universitatii(M2)Metrorex
Mijloace transport aprox. 406 m
Școală
education
Facultatea de Farmacie/Pharmacy Faculty
Învățământ aprox. 105 m
education
Facultatea de Farmacie
Învățământ aprox. 108 m
education
Scoala Nr. 19 Tudor Arghezi
Învățământ aprox. 141 m
education
Schiller Institut
Învățământ aprox. 183 m
Recreere
parks
Parc
Recreere aprox. 119 m
restaurants
Jerry's Pizza - Magheru
Restaurante aprox. 134 m
shopping
Pravalia Maestrului
Supermarket/Mall aprox. 141 m
shopping
Mega Image Rosetti Non-Stop
Supermarket/Mall aprox. 197 m

Proprietăți similare

Birou, de 126 mp, în Universitate
620.000 €
București, Universitate
126 mp utili
6E
2017
Spațiu comercial, de 181.36000061035 mp, în Rosetti
520.000 €
București, Rosetti
181,36 mp utili
6E
2013
Spațiu comercial, de 130 mp, în P-ța Romană
600.000 €
București, P-ța Romană
130 mp utili
Spațiu comercial, de 169.33999633789 mp, în Victoriei
530.000 €
București, Victoriei
169,34 mp utili
6E
Spațiu comercial, de 169 mp, în Victoriei
530.000 €
București, Victoriei
169 mp utili
Spațiu comercial, de 550 mp, în Central
550.000 €
București, Central
550 mp utili
Spațiu comercial, de 169 mp, în Calea Victoriei
530.000 €
București, Calea Victoriei
169 mp utili
Spațiu comercial, de 343.42999267578 mp, în Magheru
529.000 €
București, Magheru
343,43 mp utili
5E
2007
Spațiu comercial, în Central
550.000 €
București, Central

Abonează-te la newsletter să fii primul care primește cele mai noi recomandări de proprietăți și sfaturi de la experți.