Spatiu comercial Zona Centrala | Central

297.000 € + TVA
3,228.26 € + TVA / mp

Ştefan cel Mare, Bucureşti

Suprafață utilă totală:
92,2 mp
Nr. niveluri:
8

Descriere spațiu comercial

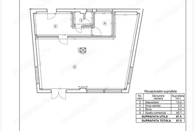
Va propunem spre achizitie un spatiu comercial cu suprafata de 92 mp, situat intr-un complex rezidential si comercial, amplasat in zona centrala ale Bucurestiului – Strada Vasile Lascar, in cadrul complexului „Central”. Proprietatea beneficiaza de o pozitionare strategica, intr-un ansamblu modern cu paza permanenta. Complexul gazduieste branduri precum Pepco, Mega Image, cafenele si cabinete medicale, generand un flux constant si diversificat de clienti. Caracteristici si avantaje principale: Suprafata utila de 92 mp Locatie centrala, cu vizibilitate foarte buna si trafic pietonal sustinut Acces facil prin mijloace de transport in comun si autoturism Mediu comercial, potrivit pentru activitati de retail, servicii, clinica medicala, showroom sau cafenea Ambianta moderna, cu spatii verzi si elemente peisagistice integrate in interiorul complexului In prezent, spatiul este compartimentat functional, insa compartimentarea este realizata usor si permite revenirea rapida la configuratia initiala de tip open space, oferind astfel flexibilitate maxima in amenajare si adaptare la specificul activitatii viitorului proprietar sau chirias. Nr grupuri sanitare: 1 Nr incaperi: 1 Utilitati - Climatizare (Aer conditionat); Utilitati generale (Curent,Apa,Canalizare,Telefon) Finisaje - Izolatii termice (Exterior); Podele (Gresie); Iluminat (Spoturi); Ferestre cu geam termopan (Aluminiu) pret vanzare: 297000 moneda vanzare: EUR Disponibilitate proprietate: imediat
Citește mai mult Citește mai puțin

Detalii spațiu comercial

ID anunț: 3489234 Actualizat în: 13 Februarie 2026
Suprafață utilă: 92,2 mp
Suprafață utilă totală: 92,2 mp
Regim înălțime: P+8E

Istoric preț

Facilități

Utilități
Curent Apă Canalizare
Climatizare
Aer condiționat
Podele
Gresie
Izolații termice
Exterior
Ferestre cu geam termopan
Aluminiu
Mobilat
Nemobilat

Puncte de interes

Mijloace transport
transport
Vasile Lascar
Mijloace transport aprox. 120 m
transport
Statia Vasile Lascar, linia 330, 335, 1, 46
Mijloace transport aprox. 129 m
transport
Vasile Lascar
Mijloace transport aprox. 172 m
transport
Dr. Grozovici
Mijloace transport aprox. 332 m
Școală
education
Scoala Generala nr.28
Învățământ aprox. 271 m
education
Scoala Generala nr. 28
Învățământ aprox. 271 m
education
Liceul Tehnologic Special nr. 3
Învățământ aprox. 284 m
education
Scoala Pentru Hipoacuzici
Învățământ aprox. 289 m
Recreere
restaurants
Restaurant chinezesc "Templul soarelui"
Restaurante aprox. 67 m
parks
Parcul Circului(1961)
Recreere aprox. 504 m
shopping
Stock Market
Supermarket/Mall aprox. 707 m
shopping
Mega Image Lizeanu Non-Stop
Supermarket/Mall aprox. 764 m

Proprietăți similare

Spațiu comercial, de 92 mp, în Ștefan cel Mare
297.000 €
București, Ștefan cel Mare
92 mp utili
8E
2020
Spațiu comercial, de 85 mp, în Ștefan cel Mare
295.000 €
București, Ștefan cel Mare
85 mp utili
10E
2000
Spațiu comercial, de 9 mp, în Colentina
310.000 €
București, Colentina
9 mp utili
Spațiu comercial, de 9 mp, în Colentina
310.000 €
București, Colentina
9 mp utili
Spațiu comercial, de 200 mp, în Teiul Doamnei
300.000 €
București, Teiul Doamnei
200 mp utili
1990
Spațiu industrial, de 306 mp, în Doamna Ghica
269.000 €
București, Doamna Ghica
306 mp utili
1E
Spațiu comercial, de 60 mp, în Bucur Obor
325.000 €
București, Bucur Obor
60 mp utili
Spațiu comercial, de 114 mp, în Pantelimon
310.000 €
București, Pantelimon
114 mp utili
Spațiu comercial, de 210 mp, în Foișorul de Foc
325.000 €
București, Foișorul de Foc
210 mp utili
1E

Abonează-te la newsletter să fii primul care primește cele mai noi recomandări de proprietăți și sfaturi de la experți.