De vanzare spatiu comercial si de productie

750.000 €
1,250.00 € / mp

Gheorgheni, Cluj-Napoca

Suprafață utilă totală:
600 mp
Suprafață teren:
687 mp
Nr. niveluri:
1
An construcție:
1991

Descriere spațiu comercial

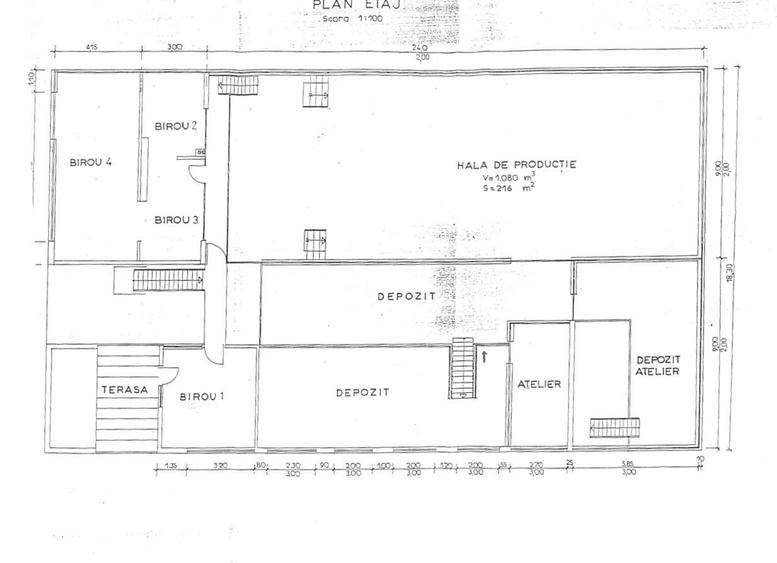
Va propunem spre vanzare o proprietate versatila, compusa din spatiu comercial, spatiu de productie (hala) si zona de birouri, potrivita pentru o gama variata de activitati economice. Imobilul este amplasat pe un teren cu suprafata de 687 mp si are o suprafata construita de aproximativ 600 mp. In partea din fata se afla un spatiu comercial cu vitrina, ideal pentru activitati de vanzare sau prezentare produse. La etaj regasim o zona de birouri, potrivita pentru activitati administrative, management sau intalniri cu clientii. Partea de hala poate fi utilizata pentru productie, depozitare sau alte activitati comerciale. Proprietatea beneficiaza de utilitati complete: apa, curent electric trifazic si gaz. De asemenea, dispune de 3 locuri de parcare, oferind acces facil pentru angajati si clienti. Datorita compartimentarii functionale si a posibilitatilor multiple de utilizare, aceasta proprietate reprezinta o oportunitate potrivita atat pentru dezvoltarea unei afaceri, cat si pentru investitie. Pentru mai multe informatii sau pentru programarea unei vizionari, va stam cu drag la dispozitie.
Citește mai mult Citește mai puțin

Detalii spațiu comercial

ID anunț: 3812522 Actualizat în: 12 Martie 2026
Suprafață utilă: 600 mp
Suprafață utilă totală: 600 mp
Regim înălțime: P+1E
An construcție: 1991

Istoric preț

Facilități

Utilități
Curent Apă Canalizare

Puncte de interes

Mijloace transport
transport
Statia Fagului, Linia 21
Mijloace transport aprox. 698 m
transport
Statia Becas, Linia 21
Mijloace transport aprox. 720 m
transport
Antim Ivireanul
Mijloace transport aprox. 736 m
transport
Borhanciului
Mijloace transport aprox. 754 m
Școală
education
Casa Agronomului (en)
Învățământ aprox. 462 m
education
Gradinita Poenita
Învățământ aprox. 722 m
education
Grădinita "Poenita"
Învățământ aprox. 726 m
education
Gradiniţa Bethania
Învățământ aprox. 1052 m
Recreere
parks
Parc
Recreere aprox. 501 m
restaurants
Da Vinci
Restaurante aprox. 835 m
shopping
Carrefour
Supermarket/Mall aprox. 979 m
shopping
Lidl
Supermarket/Mall aprox. 1037 m

Proprietăți similare

Birou, de 500 mp, în Gheorgheni
700.000 €
Cluj-Napoca, Gheorgheni
500 mp utili
10E
Spațiu comercial, de 373 mp, în Gheorgheni
820.600 €
Cluj-Napoca, Gheorgheni
373 mp utili
10E
2008
Birou, de 394 mp, în Central
825.000 €
Cluj-Napoca, Central
394 mp utili
2E
2000
Spațiu comercial, de 130 mp, în Andrei Mureșanu
715.000 €
Cluj-Napoca, Andrei Mureșanu
130 mp utili
2019
Spațiu comercial, de 283 mp, în Central
750.000 €
Cluj-Napoca, Central
283 mp utili
Spațiu comercial, de 330 mp, în Dâmbul Rotund
792.000 €
Cluj-Napoca, Dâmbul Rotund
330 mp utili
Spațiu comercial, de 170 mp, în Zorilor
700.000 €
Cluj-Napoca, Zorilor
170 mp utili
4E
2005
Spațiu comercial, de 176.64999389648 mp, în Grigorescu
700.000 €
Cluj-Napoca, Grigorescu
176,65 mp utili
2024
Spațiu comercial, de 132 mp, în Mărăști
753.000 €
Cluj-Napoca, Mărăști
132 mp utili
61 mp teren
2E

Abonează-te la newsletter să fii primul care primește cele mai noi recomandări de proprietăți și sfaturi de la experți.