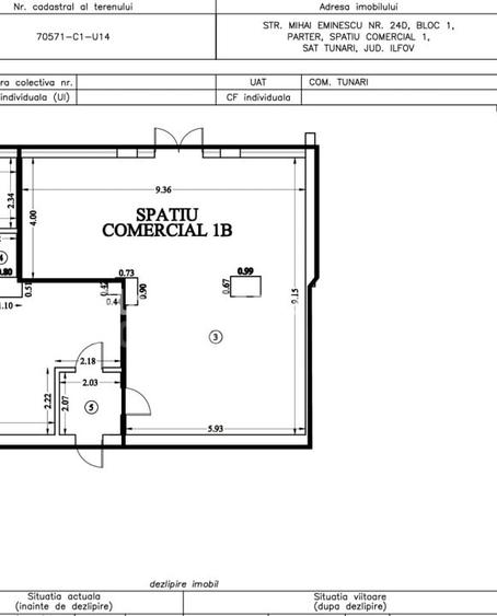
Spatiu Comercial 67 MP | City Nord Tunari | Front stradal 9,36M

1.340 € / lună
20 € / mp / lună

Tunari, Judeţul Ilfov

Suprafață utilă totală:
67 mp
Nr. niveluri:
2

Descriere

Spatiu Comercial 67 MP | City Nord Tunari | Front stradal 9,36M

Silviu Birsan ^ Global Home Romania ^ Imobiliare Spatiu comercial cu o suprafata utila de 67 MP, situat la parterul unui imobil finalizat in anul 2025, in cadrul complexului City Nord Tunari, amplasat in zona de nord a comunei Tunari. Complexul City Nord Tunari este un proiect rezidential modern si elegant, aflat intr-o zona linistita si bine dezvoltata, cu acces facil catre principalele puncte de interes din nordul capitalei, precum si catre autostrazile A3 si A0, oferind un cadru ideal pentru desfasurarea activitatilor comerciale. Spatiul comercial se remarca prin vizibilitate excelenta, avand un front stradal de 9,36 ml, cu suprafata vitrata pe intreaga deschidere, realizata din geam termopan, ceea ce asigura lumina naturala din abundenta si expunere optima pentru orice tip de business. Imobilul dispune de doua cai de acces, una principala din fata si una secundara din spate, ideala pentru aprovizionare. In zona sunt disponibile locuri de parcare, facilitand accesul atat pentru clienti, cat si pentru personal. Spatiul este potrivit pentru diverse activitati comerciale, birouri, showroom, servicii sau alte functiuni similare. Pentru mai multe detalii, ma puteti contacta telefonic.___ Global Home Romania, este o firma in schimbare de jocuri pe piata imobiliara din Romania ce se afla intr-o expansiune rapida. Modelul personalizat avand la baza tehnologia digitala, inteligenta artificala si interactiune umana alaturi de colaboratorii firmei, inspira constant incredere. Avand o abordare de marketing profesionala si indrazneta a ridicat atentia asupra modului in care oamenii se gandesc la imobiliare in Romania. Global Home Romania, companie imobiliara infiintata in 2020 ce continua sa se dezvolte cu succes in domeniu, reusind sa atraga constant parteneri si colaboratori de incredere. Cu sediul in Bucuresti, Global Home Romania, a aparut ca o firma imobiliara de incredere ce isi propune constant sa livreze servicii de calitate. Misiunea Global Home Romania in piata imobiliara, este aceea de a stabili un raport solid bazat pe incredere si profesionalism intre reprezentantii nostri imobiliari bine informati impreuna cu toti clientii si colaboratorii companiei. Suprafata construita: 79 mp Nr incaperi: 1 Utilitati - Sistem incalzire (Centrala proprie); Utilitati generale (Curent,Apa,Canalizare) Finisaje - Izolatii termice (Exterior); Podele (Gresie); Iluminat (Spoturi) Dotari - Contorizare (Apometre,Contor gaz) pret inchiriere: 1340 moneda inchiriere: EUR Disponibilitate proprietate: imediat
Citește mai mult Citește mai puțin
ID anunț: 3278273 Actualizat în: 04 Februarie 2026
Suprafață utilă: 67 mp
Suprafață utilă totală: 67 mp
Regim înălțime: P+2E

Istoric preț

Utilități

Utilități
Curent Apă Canalizare

Proprietăți similare

Spațiu comercial, de 70 mp, în Tunari
1.400 € / lună
Județul Ilfov, Tunari
70 mp utili
2E
2019
Spațiu comercial, de 67 mp, în Tunari
1.340 € / lună
Județul Ilfov, Tunari
67 mp utili
Spațiu comercial, de 400 mp, în Otopeni
1.300 € / lună
Județul Ilfov, Otopeni
400 mp utili
Spațiu industrial, de 900 mp, în Mogoșoaia
1.365 € / lună
Județul Ilfov, Mogoșoaia
900 mp utili
1E
2023
Spațiu comercial, de 350 mp, în Ghermănești
1.298 € / lună
Județul Ilfov, Ghermănești
350 mp utili
2019
Spațiu comercial, de 96.599998474121 mp, în Bragadiru
1.385 € / lună
Județul Ilfov, Bragadiru
96,6 mp utili
4E
2021
Spațiu comercial, de 450 mp, în Popești-Leordeni
1.350 € / lună
Județul Ilfov, Popești-Leordeni
450 mp utili
Spațiu comercial, de 280 mp, în Periș
1.300 € / lună
Județul Ilfov, Periș
280 mp utili
1E
Spațiu comercial, de 700 mp, în Moara Vlăsiei
1.302 € / lună
Județul Ilfov, Moara Vlăsiei
700 mp utili
1E
2000

Abonează-te la newsletter să fii primul care primește cele mai noi recomandări de proprietăți și sfaturi de la experți.