Spatiu Comercial -- 350-700 mp- Metrou Gorjului- Sector 6

5.600 € / lună
8 € / mp / lună

Militari, Bucureşti

Suprafață utilă totală:
700 mp
Nr. niveluri:
2
An construcție:
1996

Descriere spațiu comercial

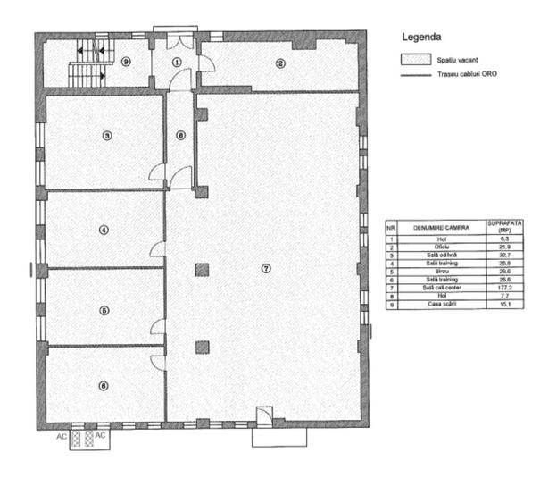
Se oferă spre închiriere spațiu comercial generos, situat în zona Militari – Gorjului, la doar 3 minute de stația de metrou Gorjului, într-o locație cu acces facil către principalele artere ale orașului și mijloace de transport în comun. Detalii spațiu: Suprafață totală: 700 mp Înălțime: 4 m Spațiu luminos Grupuri sanitare existente Posibilitate de a se inchiria si un singur etaj ( 350 mp) Acces facil pentru aprovizionare și activități comerciale + parcari asigurate . Spațiul este potrivit pentru multiple activități, precum: -Sală fitness / studio sportiv -Sală de dans -Sală antrenamente karate sau arte marțiale - Depozitare - Clinica medicala Activități de producție ușoară Centru de activități recreative sau training 📍 Localizare excelentă, aproape de metrou, într-o zonă bine conectată la transportul public și la principalele zone comerciale din cartierul Militari. 📞 Pentru detalii suplimentare și programarea unei vizionări, vă rugăm să ne contactați.
Citește mai mult Citește mai puțin

Detalii spațiu comercial

ID anunț: 3782869 Actualizat în: 13 Martie 2026
Suprafață utilă: 700 mp
Suprafață utilă totală: 700 mp
Regim înălțime: P+2E
An construcție: 1996

Istoric preț

Facilități

Utilități
Curent Canalizare Apă

Puncte de interes

Mijloace transport
transport
Statia Piata Gorjului: 137, 138
Mijloace transport aprox. 158 m
transport
Gorjului
Mijloace transport aprox. 188 m
transport
statia Piaţa Gorjului: 61, 62, 106, 136*, 236, 336
Mijloace transport aprox. 198 m
transport
Metrorex. Statia Gorjului (M3).
Mijloace transport aprox. 215 m
Școală
education
Gradinita Blue Fairy
Învățământ aprox. 217 m
education
Şcoala Generală nr. 174 "Constantin Brâncuşi"
Învățământ aprox. 297 m
education
Dumbrava Minunilor
Învățământ aprox. 393 m
education
Gradinita 198 Dumbrava Minunilor
Învățământ aprox. 402 m
Recreere
restaurants
Grasele
Restaurante aprox. 58 m
shopping
Carrefour Market - Piata Gorjului
Supermarket/Mall aprox. 135 m
parks
Loc de joaca
Recreere aprox. 246 m
shopping
Carrefour
Supermarket/Mall aprox. 250 m

Proprietăți similare

Spațiu comercial, 480 mp în Militari
6.000 € / lună
București, Militari
480 mp utili
2000
Spațiu comercial, de 1,050 mp, în Drumul Taberei
5.996 € / lună
București, Drumul Taberei
1.050 mp utili
2E
1974
Spațiu comercial, de 1,050 mp, în Drumul Taberei
6.000 € / lună
București, Drumul Taberei
1.050 mp utili
2E
Spațiu comercial, de 3,292 mp, în Grozăvești
5.460 € / lună
București, Grozăvești
3.292 mp utili
1E
Spațiu comercial, de 313 mp, în Regie
5.321 € / lună
București, Regie
313 mp utili
5E
2022
Spațiu comercial, de 46,959 mp, în Grozăvești
5.735 € / lună
București, Grozăvești
46.959 mp utili
14E
2009
Spațiu comercial, de 508 mp, în Brâncoveanu
5.080 € / lună
București, Brâncoveanu
508 mp utili
3E
2000
Spațiu comercial, de 145 mp, în Dorobanți
5.500 € / lună
București, Dorobanți
145 mp utili
Spațiu comercial, de 80 mp, în P-ța Unirii
5.040 € / lună
București, P-ța Unirii
80 mp utili

Abonează-te la newsletter să fii primul care primește cele mai noi recomandări de proprietăți și sfaturi de la experți.