Teren intravilan 871 mp in Tocile pretabil casa de vacanta

41.800 € / lună
47.99 € / mp / lună

Sadu, Judeţul Sibiu

Suprafață teren:
871 mp

Descriere spațiu comercial

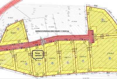
Va propun spre vanzare un teren intravilan cu o suprafata generoasa de 871 mp, situat in localitatea Tocile, una dintre cele mai cautate locatii pentru dezvoltarea de case de vacanta si pensiuni turistice. Proprietatea este parte dintr-un ansamblu de 9 parcele, toate avand deschidere la acelasi drum de acces privat cu latimea de 8 metri, drum prevazut in documentatia PUZ aferenta zonei. Zona se remarca prin liniste, peisaje naturale si un cadru ideal pentru cei care isi doresc o locuinta intr-un mediu curat, aerisit si neaglomerat, dar totodata aflat la doar cateva minute de municipiul Sibiu. Conform Regulamentului Local de Urbanism aferent PUZ-ului se pot realiza constructii cu functiuni turistice si de recreere, precum case de vacanta, pensiuni, bungalow-uri si anexe aferente acestora, cu respectarea urmatorilor indici urbanistici si conditii tehnice: Regim de inaltime admis: P+E (inaltime maxima la coama 11 m, streasina 7 m) POT maxim: 35% CUT maxim: 0.7 Retrageri fata de limite: minim 57 m la strada, minim 3 m lateral spate Suprafata minima a unei parcele construibile: 350 mp Utilizari admise: case de vacanta, pensiuni turistice, bungalow-uri, servicii turistice, anexe Obligativitatea amenajarii de spatii verzi minime: 30% din teren Toate locurile de parcare trebuie realizate pe parcela proprie Drumul de acces este inclus in proiectul de dezmembrare, are 8 metri latime si urmeaza sa fie notat in cartea funciara ca drum cu servitute de trecere pentru toate parcelele din ansamblu, conform cerintelor urbanistice. Utilitatile se afla la aproximativ 200 de metri de teren, putand fi extinse in mod organizat si eficient, fie individual, fie prin asociere cu ceilalti proprietari din zona. Documentatia urbanistica mentioneaza racordarea la reteaua electrica si de apa-canal existenta. Terenul are o forma regulata, este bine proportionat si ofera posibilitatea configurarii optime a unei constructii, beneficiind de o deschidere generoasa si de o pozitionare excelenta fata de drum. Zona este in plina dezvoltare, cu potential mare atat pentru investitii turistice, cat si pentru constructia unei locuinte permanente intr-o zona retrasa si ferita de trafic. Valoarea terenului est de 41.800 euro, negociabil.
Citește mai mult Citește mai puțin
Zonă rurală
ID anunț: 3464606 Actualizat în: 20 Aprilie 2026

Istoric preț

Puncte de interes

Recreere
parks
Teren sportiv
Recreere aprox. 757 m
parks
Teren sportiv
Recreere aprox. 763 m
parks
Teren sportiv
Recreere aprox. 1672 m

Proprietăți similare

Spațiu comercial, în Sadu
42.900 € / lună
Județul Sibiu, Sadu
660 mp teren
Spațiu comercial, în Sadu
42.000 € / lună
Județul Sibiu, Sadu
875 mp teren
Spațiu comercial, în Sadu
41.500 € / lună
Județul Sibiu, Sadu
865 mp teren
Spațiu comercial, în Porumbacu de Jos
45.000 € / lună
Județul Sibiu, Porumbacu de Jos
1.800 mp teren
Spațiu comercial, în Rășinari
45.000 € / lună
Județul Sibiu, Rășinari
600 mp teren
Spațiu comercial, în Cristian
42.000 € / lună
Județul Sibiu, Cristian
1.400 mp teren
Spațiu comercial, în Central
43.200 € / lună
Județul Sibiu, Mediaș
1.600 mp teren
Spațiu comercial, în Central
42.500 € / lună
Județul Sibiu, Tălmaciu
470 mp teren
Spațiu comercial, în Șelimbăr
42.500 € / lună
Județul Sibiu, Șelimbăr
500 mp teren
2E

Abonează-te la newsletter să fii primul care primește cele mai noi recomandări de proprietăți și sfaturi de la experți.