Resita CHIRIE Central, 146 mp. Parter, Etaj 1

1.401 € / lună
9.60 € / mp / lună

Central, Reşiţa

Suprafață utilă totală:
146 mp
Nr. niveluri:
1
An construcție:
2000

Descriere spațiu comercial

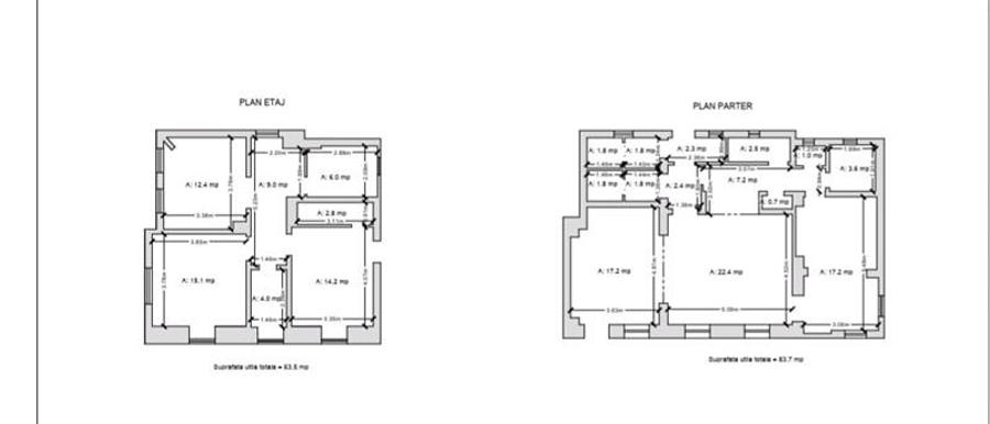
BENEFICII PENTRU CLIENTII ACESTEI OFERTE:Onorariu ZERO pentru chirias!!! Pret 9,5 euro mp.Vezi 6 poze pe site-ul oficial de imobiliare al orasului resita.activ ofertele Brokerului Imobiliar Daniel Serban. Agentia Imobiliara Activ Imob Caras Severin va ofera spre inchiriere cladire, constructie separata din caramida si beton armat, pe 2 nivele amplasata pe teren privat, localizata central in Loc.Resita langa Magazinul Penny, avand urmatoarele caracteristici: - parter 83 mp, conform foto RLV Plan Parter. - etajul 1, 63 mp. conform foto RLV Plan Etaj. - teren liber, drept, cca 120 mp. format din alee, zona de recreere si zona de parcare auto, cca 5 de autoturisme. PARTICULARITATI: - constructie pe fundatie si structura cu placa intre nivele din beton armat, caldura asigurata de centrala industriala pe gaz, alte utilari specifice acestui gen de constructie, toate functionale. - Cladirea se inchiriaza toata la pretul de 9,5 euro usoare negocieri daca perioada de contract depaseste 3 ani si perioada de gratie de o luna de zile pentru instalare dupa semnarea contractului iar functie de nevoia chiriasului, proprietarul poate amenaja spatiul daca perioada de contract depaseste 5 ani. - Transportul public este bine deservit, in imediata apropierea aflandu-se statiile de autobuz cu rute interne, precum si inter-judetene. Oferta de inchiriere se adreseaza investitorilor care doresc spatii pe mai multe nivele concentrate intr-un singur corp de cladire separat, pentru diverse activitati de servicii,birouri, etc. pe termen lung, chiriasul avand garantia unei colaborari de calitate, datorita transparentei in afaceri a proprietarului. Toata cladirea detine ferestre cu larga deschidere la lumina naturala, este uscata, nu sunt urme de infiltratii sau miros neplacut si este racordate la reteaua de apa, canalizare, curent 220w si gaz. Se inchiriaza insotita de documentatie, Extras de Carte Funciara, RLV,Plan de Amplasament in Zona, liber de sarcini, Certificat Fiscal fara datorii, documente ce pot fi puse la dispozitie. Daca si dumneavoastra aveti o proprietate in Resita sau in Judetul Caras-Severin si doriti sa o vindeti sau inchiriati va rugam sa sunati la numerele de telefon- Petre Culcea,Broker Imobiliar: si vom crea un profil personalizat pentru vanzarea sau inchirierea acesteia, vizibil pe site-ul oficial de imobiliare al orasului: Situatia juridica: Aceasta proprietate detine informatii reale, fiind verificata si evaluata in prealabil de Compartimentul Suport Back-Office. Recomandare: Pentru a vizualiza toate ofertele cu mai multe fotografii si a primi notificari cu noile oferte, va rugam sa solicitati cerere de prietenie pe facebook Petre Culcea ActivImob Resita sau sa accesati site-ul oficial de imobiliare al orasului: Compania ACTIV IMOB ROMANIA este singura care detine dreptul exclusiv de mediatizare a acestei proprietati, astfel intermedierea pentru inchiriere se va realiza doar prin si cu sprijinul acesteia, atat proprietarul cat si chiriasul, avand garantia ca tranzactia se va finaliza in siguranta si legal. Va multumim si va felicitam ca ati ales SIGURANTA TRANZACTIEI. ID Activ Imob 229326,pentru mai multe informatii.
Citește mai mult Citește mai puțin

Detalii spațiu comercial

ID anunț: 2487575 Actualizat în: 20 Februarie 2026
Suprafață utilă: 146 mp
Suprafață utilă totală: 146 mp
Regim înălțime: P+1E
An construcție: 2000

Istoric preț

Facilități

Utilități
Apă Curent Gaze Canalizare

Puncte de interes

Mijloace transport
transport
Resita Sud
Mijloace transport aprox. 317 m
transport
Autogara
Mijloace transport aprox. 870 m
Școală
education
Universitatea Eftimie Murgu
Învățământ aprox. 190 m
education
Universitatea Eftimie Murgu
Învățământ aprox. 214 m
education
Colegiul National Traian Lalescu
Învățământ aprox. 465 m
education
Scoala Gimnaziala nr. 6
Învățământ aprox. 828 m
Recreere
parks
Piata Traian Vuia
Recreere aprox. 298 m
restaurants
Racing
Restaurante aprox. 470 m
shopping
Centrul Comercial Nera
Supermarket/Mall aprox. 675 m
shopping
Lidl
Supermarket/Mall aprox. 953 m

Proprietăți similare

Spațiu comercial, de 800 mp, în Nord
1.500 € / lună
Reșița, Nord
800 mp utili
2.600 mp teren
2E
Spațiu comercial, de 580 mp, în Calea Timișoarei
1.392 € / lună
Reșița, Calea Timișoarei
580 mp utili
Spațiu industrial, de 600 mp, în Calea Timișoarei
1.500 € / lună
Reșița, Calea Timișoarei
600 mp utili
1E

Abonează-te la newsletter să fii primul care primește cele mai noi recomandări de proprietăți și sfaturi de la experți.