Sp.com-160,4mp+terasa-5,5mp+3parcari/8min pe jos metrou D...

2.200 € / lună
13.25 € / mp / lună

Popeşti-Leordeni, Judeţul Ilfov

Suprafață utilă totală:
166 mp

Descriere spațiu comercial

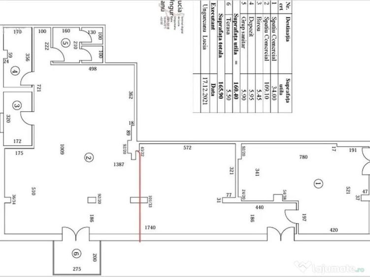
Proprietar, inchiriez prin agentie(tel: - pentru detalii si vizionari), spatiu comercial cu o suprafata de 160,4mp utili + terasa de 5,5mp + 3 locuri de parcare dispuse in fata spatiului(aceasta fiind si una din cele trei zone de acces - a se vedea releveul atasat). Dispune de centrala termica pe gaz, apa curenta, internet si cablu TV, grup sanitar. Spatiu se inchiriaza pe termen mediu(1-2 ani) si lung(peste 2 ani). Spatiul se preda liber, sau, se poate discuta pe marginea a ceea ce se doreste. Spatiul se poate folosi pentru activitati diverse, fiind situat la parterul unui bloc de locuinte dintr-o zona rezidentiala, foarte aproape de supermarketul Penny si Parcul Dr. Fermei de pe str. Dr. Fermei, cat si de statia autobuzului 480, oferind acces foarte usor atat cu masina personala, cat si pietonal sau cu mijloacele de transport in comun(8 minute pe jos pana la statia de metrou D.Leonida sau 10 minute pe jos pana la statia de metrou Berceni), zona beneficiind de infrastructura completa. Se vor discuta la fata locului, in functie de interesul manifestat, toate detaliile. Pretul poate fi negociabil in functie de avans, daca se ofera plata in avans pe un an de zile sau in alti termeni si conditii agreate de parti. Avans standard: (1+1+0,5), din valoarea unei luni de chirie; 0,5 din valoarea chiriei lunare reprezinta comisionul datorat de chirias catre agentie, o singura data, in momentul semnarii contractului de inchiriere. Suprafata totala: 193 m2 An finalizare constructie: 2021 Vitrina: 5.0 m Stadiu constructie: Finalizat Inaltime spatiu: 3.0 m Numar incaperi: 1 Numar Grupuri Sanitare: 1 Posibilitate parcare: Da Nr. locuri parcare: 3 Tip imobil: Bloc de apartamente
Citește mai mult Citește mai puțin

Detalii spațiu comercial

ID anunț: 4072229 Actualizat în: 03 Aprilie 2026
Suprafață utilă: 166 mp
Suprafață utilă totală: 166 mp

Istoric preț

Puncte de interes

Mijloace transport
transport
Viilor
Mijloace transport aprox. 504 m
transport
Facului
Mijloace transport aprox. 819 m
transport
Viscofil
Mijloace transport aprox. 1128 m
transport
Prestige
Mijloace transport aprox. 1162 m
Școală
education
Scoala nr. 2
Învățământ aprox. 209 m
education
Scoala cu clasele I-VIII nr. 2
Învățământ aprox. 209 m
education
Scoala nr. 1
Învățământ aprox. 303 m
education
Liceul Teoretic Radu Popescu
Învățământ aprox. 352 m
Recreere
restaurants
Casa Teca
Restaurante aprox. 55 m
shopping
Mega Image
Supermarket/Mall aprox. 139 m
parks
Parc
Recreere aprox. 165 m
shopping
Lidl Popesti-Leordeni
Supermarket/Mall aprox. 1338 m

Proprietăți similare

Spațiu industrial, de 300 mp, în Central
2.049 € / lună
Județul Ilfov, Popești-Leordeni
300 mp utili
2000
Spațiu industrial, 300 mp în Central
2.100 € / lună
Județul Ilfov, Popești-Leordeni
2000
Spațiu comercial, de 102 mp, în Central
2.200 € / lună
Județul Ilfov, Popești-Leordeni
102 mp utili
7E
2025
Spațiu comercial, în Central
2.000 € / lună
Județul Ilfov, Popești-Leordeni
Spațiu industrial, de 725 mp, în Exterior Est
2.175 € / lună
Județul Ilfov, Popești-Leordeni
725 mp utili
800 mp teren
1980
Spațiu industrial, de 732 mp, în Popești-Leordeni
2.196 € / lună
Județul Ilfov, Popești-Leordeni
732 mp utili
Spațiu industrial, de 295 mp, în Sud-Est
2.050 € / lună
Județul Ilfov, Popești-Leordeni
295 mp utili
700 mp teren
2010
Spațiu comercial, de 582 mp, în Popești-Leordeni
2.350 € / lună
Județul Ilfov, Popești-Leordeni
582 mp utili
2000
Spațiu industrial, de 350 mp, în Est
2.200 € / lună
Județul Ilfov, Popești-Leordeni
350 mp utili
100 mp teren
2023

Abonează-te la newsletter să fii primul care primește cele mai noi recomandări de proprietăți și sfaturi de la experți.