Inchiriem spatiu comercial/birou, Str. Mestesugarilor ,Locatie premium

1.600 € / lună
10 € / mp / lună

Lotus, Oradea

Suprafață utilă totală:
160 mp

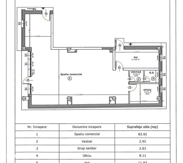
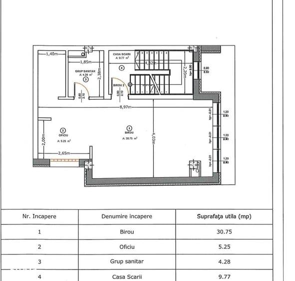
Descriere spațiu comercial

Va propunem spre inchiriere un spatiu comercial modern, situat la parterul unui bloc nou, pe strada Mestesugarilor artera larga, cu doua benzi pe sens, ce ofera vizibilitate excelenta si acces facil.Proprietatea beneficiaza de o pozitionare strategica, in imediata apropiere de Lotus Retail Park si de ansamblul rezidential Prima Onestilor zona in plina dezvoltare, cu densitate mare de locuitori si trafic constant.Configuratie functionala ideala pentru activitati mixteParter Spatiu comercial110 mp suprafata utilaIdeal pentru showroom, retail, servicii, clinica, salon sau activitate comerciala cu interactiune directa cu publiculExpunere stradala foarte bunaEtaj Birou (acces prin scara interioara proprie)50 mp suprafata utilaPerfect pentru birou administrativ, management, contabilitate sau spatiu operationalSepararea clara intre zona comerciala si cea administrativa ofera un plus de profesionalism si eficienta in organizarea activitatii.Avantaje cheie: 2 locuri de parcare dedicate Racordat la reteaua de gaz Zona cu trafic auto si pietonal intens Vizibilitate excelenta pentru brand Acces rapid catre centrul orasului si principalele puncte de interesUn spatiu potrivit pentru antreprenorii care isi doresc o locatie reprezentativa, bine pozitionata si pregatita sa sustina dezvoltarea unui business solid.Pentru informatii suplimentare si programarea unei vizionari, va stam la dispozitie.
Citește mai mult Citește mai puțin

Detalii spațiu comercial

ID anunț: 3588783 Actualizat în: 22 Martie 2026
Suprafață utilă: 160 mp
Suprafață utilă totală: 160 mp

Istoric preț

Puncte de interes

Mijloace transport
transport
Piata Ghioceilor
Mijloace transport aprox. 634 m
transport
Abatorului
Mijloace transport aprox. 665 m
transport
Hategului
Mijloace transport aprox. 667 m
transport
Lipovei
Mijloace transport aprox. 693 m
Școală
education
Liceul Teologic Baptist Emanuel
Învățământ aprox. 780 m
education
Don Orione
Învățământ aprox. 946 m
education
GS Transilvania
Învățământ aprox. 999 m
education
Universitatea Crestina Partium - Cladirea Partium
Învățământ aprox. 1234 m
Recreere
shopping
Kaufland
Supermarket/Mall aprox. 476 m
parks
Parc
Recreere aprox. 608 m
shopping
Penny Market
Supermarket/Mall aprox. 648 m
restaurants
bar
Restaurante aprox. 1060 m

Proprietăți similare

Spațiu comercial, de 100 mp, în Lotus
1.700 € / lună
Oradea, Lotus
100 mp utili
Spațiu industrial, în Aeroport
1.600 € / lună
Oradea, Aeroport
Spațiu comercial, de 589 mp, în Ultracentral
1.500 € / lună
Oradea, Ultracentral
589 mp utili
2E
Spațiu comercial, de 250 mp, în Ultracentral
1.550 € / lună
Oradea, Ultracentral
250 mp utili
2003
Spațiu industrial, de 500 mp, în Vest
1.750 € / lună
Oradea, Vest
500 mp utili
1E
1975
Spațiu comercial, de 222 mp, în Ultracentral
1.700 € / lună
Oradea, Ultracentral
222 mp utili
Spațiu industrial, de 360 mp, în Nufărul
1.620 € / lună
Oradea, Nufărul
360 mp utili
Spațiu industrial, de 500 mp, în Central
1.750 € / lună
Oradea, Central
500 mp utili
3.000 mp teren
Spațiu comercial, de 120 mp, în Central
1.600 € / lună
Oradea, Central
120 mp utili

Abonează-te la newsletter să fii primul care primește cele mai noi recomandări de proprietăți și sfaturi de la experți.