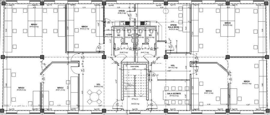
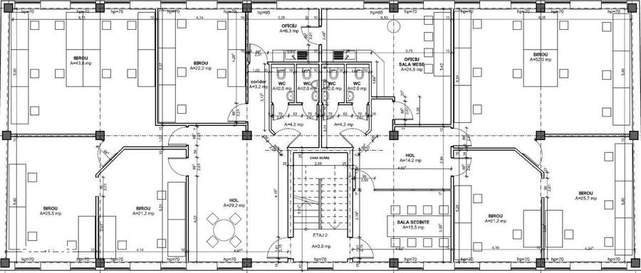
Etaj 2 integral birouri 293,5 mp, Calea Dumbravii Sibiu, 12 /mp

3.396 € / lună
12 € / mp / lună

Ludoş, Judeţul Sibiu

Suprafață utilă totală:
283 mp

Descriere spațiu comercial

Se inchiriaza intregul etaj dintr-o cladire de birouri situata pe Calea Dumbravii, una dintre cele mai cautate si ultracentrale zone din Sibiu. Suprafata utila totala: 293,5 mp Pret chirie: 12 / mp / luna (chiria + service charge + cafea asigurata gratuit pentru chiriasi) Compartimentare si facilitati: - 7 birouri spatioase cu suprafete cuprinse intre 21 mp si 52 mp - 2 sali de sedinte / meeting (una de 15,5 mp si una de 24,8 mp) - Holuri generoase - Grupuri sanitare moderne (4 WC-uri) - Oficiu / bucatarie complet utilat - Spatii de depozitare si coridoare de acces - Lumina naturala excelenta in majoritatea incaperilor - Acces facil prin casa scarii centrala Spatiul este ideal pentru companii medii sau mari, sediu de firma, birouri administrative, IT, servicii profesionale, agentii sau centre de training. Poate fi folosit atat compartimentat, cat si in regim open-space partial. Avantaje principale: Locatie ultracentrala pe Calea Dumbravii acces excelent cu masina si transportul public Cafea gratuita inclusa in chirie (un beneficiu rar si foarte apreciat de angajati) Toate service charge-urile (intretinere, curatenie comuna etc.) incluse in pretul de 12 /mp Flexibilitate la amenajare Mediu profesional si linistit Disponibil: incepand cu data de 15 mai Contract pe teremn lung Pentru vizionare, detalii suplimentare sau negociere, contactati-ne.
Citește mai mult Citește mai puțin

Detalii spațiu comercial

ID anunț: 4031925 Actualizat în: 31 Martie 2026
Suprafață utilă: 283 mp
Suprafață utilă totală: 283 mp

Istoric preț

Puncte de interes

Mijloace transport
transport
Cimitir 2
Mijloace transport aprox. 26 m
transport
Cimitir 1
Mijloace transport aprox. 58 m
transport
Siretului
Mijloace transport aprox. 214 m
transport
Siretului 2
Mijloace transport aprox. 220 m
Școală
education
Gradinita Nr. 5
Învățământ aprox. 322 m
education
FasTracKids
Învățământ aprox. 617 m
education
Scoala Gimnaziala nr. 16
Învățământ aprox. 701 m
education
Scoala Genenerala Nr. 25
Învățământ aprox. 831 m
Recreere
restaurants
Bar Cesar
Restaurante aprox. 34 m
parks
Piata Crisan
Recreere aprox. 131 m
shopping
Transagape
Supermarket/Mall aprox. 805 m
shopping
Profi
Supermarket/Mall aprox. 824 m

Proprietăți similare

Spațiu comercial, de 600 mp, în Central
3.100 € / lună
Sibiu, Central
600 mp utili
Spațiu comercial, de 82 mp, în Mihai Viteazul
3.690 € / lună
Sibiu, Mihai Viteazul
82 mp utili
Spațiu comercial, de 266 mp, în Șelimbăr
3.200 € / lună
Județul Sibiu, Șelimbăr
266 mp utili
2E
Spațiu comercial, de 283 mp, în Calea Dumbrăvii
3.396 € / lună
Sibiu, Calea Dumbrăvii
283 mp utili
Spațiu industrial, de 600 mp, în Cristian
3.500 € / lună
Județul Sibiu, Cristian
600 mp utili
Spațiu comercial, de 300 mp, în Turnișor
3.501 € / lună
Sibiu, Turnișor
300 mp utili
100 mp teren
Spațiu comercial, de 70 mp, în Mihai Viteazul
3.300 € / lună
Sibiu, Mihai Viteazul
70 mp utili
Spațiu comercial, de 370 mp, în Central
3.200 € / lună
Sibiu, Central
370 mp utili
Spațiu industrial, în Șelimbăr
3.500 € / lună
Județul Sibiu, Șelimbăr
1E
2021

Abonează-te la newsletter să fii primul care primește cele mai noi recomandări de proprietăți și sfaturi de la experți.