Etaj 2 integral birouri 293,5 mp, Calea Dumbravii Sibiu, 12 /mp

3.396 € / lună
12 € / mp / lună

Calea Dumbrăvii, Sibiu

Suprafață utilă totală:
283 mp

Descriere spațiu comercial

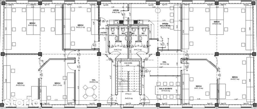
Se inchiriaza intregul etaj dintr-o cladire de birouri situata pe Calea Dumbravii, una dintre cele mai cautate si ultracentrale zone din Sibiu.Suprafata utila totala: 293,5 mpPret chirie: 12 / mp / luna (chiria + service charge + cafea asigurata gratuit pentru chiriasi)Compartimentare si facilitati: - 7 birouri spatioase cu suprafete cuprinse intre 21 mp si 52 mp - 2 sali de sedinte / meeting (una de 15,5 mp si una de 24,8 mp) - Holuri generoase - Grupuri sanitare moderne (4 WC-uri) - Oficiu / bucatarie complet utilat - Spatii de depozitare si coridoare de acces - Lumina naturala excelenta in majoritatea incaperilor - Acces facil prin casa scarii centralaSpatiul este ideal pentru companii medii sau mari, sediu de firma, birouri administrative, IT, servicii profesionale, agentii sau centre de training. Poate fi folosit atat compartimentat, cat si in regim open-space partial.Avantaje principale:Locatie ultracentrala pe Calea Dumbravii acces excelent cu masina si transportul publicCafea gratuita inclusa in chirie (un beneficiu rar si foarte apreciat de angajati)Toate service charge-urile (intretinere, curatenie comuna etc.) incluse in pretul de 12 /mpFlexibilitate la amenajareMediu profesional si linistitDisponibil: incepand cu data de 15 maiContract pe teremn lungPentru vizionare, detalii suplimentare sau negociere, contactati-ne.
Citește mai mult Citește mai puțin

Detalii spațiu comercial

ID anunț: 4031863 Actualizat în: 02 Aprilie 2026
Suprafață utilă: 283 mp
Suprafață utilă totală: 283 mp

Istoric preț

Puncte de interes

Mijloace transport
transport
Cimitir 2
Mijloace transport aprox. 26 m
transport
Cimitir 1
Mijloace transport aprox. 58 m
transport
Siretului
Mijloace transport aprox. 214 m
transport
Siretului 2
Mijloace transport aprox. 220 m
Școală
education
Gradinita Nr. 5
Învățământ aprox. 322 m
education
FasTracKids
Învățământ aprox. 617 m
education
Scoala Gimnaziala nr. 16
Învățământ aprox. 701 m
education
Scoala Genenerala Nr. 25
Învățământ aprox. 831 m
Recreere
restaurants
Bar Cesar
Restaurante aprox. 34 m
parks
Piata Crisan
Recreere aprox. 131 m
shopping
Transagape
Supermarket/Mall aprox. 805 m
shopping
Profi
Supermarket/Mall aprox. 824 m

Proprietăți similare

Spațiu comercial, de 300 mp, în Calea Dumbrăvii
3.500 € / lună
Sibiu, Calea Dumbrăvii
300 mp utili
Spațiu comercial, de 300 mp, în Central
3.500 € / lună
Sibiu, Central
300 mp utili
2000
Spațiu comercial, de 490 mp, în Central
3.499 € / lună
Sibiu, Central
490 mp utili
1E
1995
Spațiu industrial, de 502 mp, în Țiglari
3.250 € / lună
Sibiu, Țiglari
502 mp utili
2.000 mp teren
Spațiu comercial, de 252 mp, în Vasile Aaron
3.700 € / lună
Sibiu, Vasile Aaron
252 mp utili
Spațiu comercial, de 82 mp, în Mihai Viteazul
3.690 € / lună
Sibiu, Mihai Viteazul
82 mp utili
Spațiu comercial, de 1,191 mp, în Central
3.500 € / lună
Sibiu, Central
1.191 mp utili
2E
1950
Spațiu comercial, de 300 mp, în Turnișor
3.501 € / lună
Sibiu, Turnișor
300 mp utili
100 mp teren
Spațiu comercial, de 237.30000305176 mp, în Turnișor
3.203 € / lună
Sibiu, Turnișor
237,3 mp utili

Abonează-te la newsletter să fii primul care primește cele mai noi recomandări de proprietăți și sfaturi de la experți.