
Mai mult de un an
12
- Agenție
Spatiu pretabil showroom, birouri, clinica medicala, etc
1.200 €
/ lună
Jilava, Județul Ilfov
Descriere
Raportează anunț
Sesizează o problemă
Spatiu pretabil showroom, birouri, clinica medicala, etc
Spatiu pretabil showroom, birouri, clinica medicala, etc
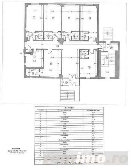
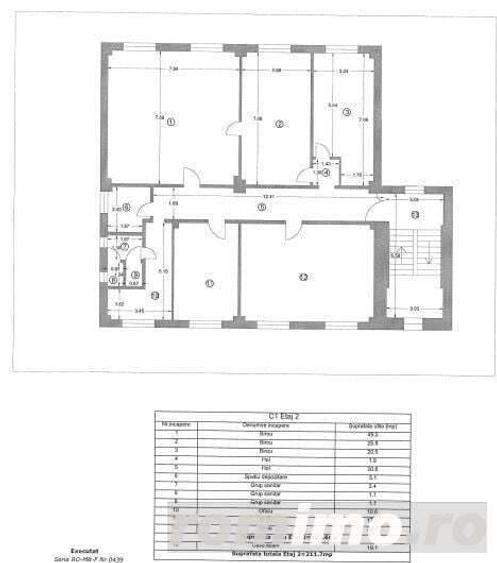
Va prezentam spre inchiriere un spatiu de birouri, situat in zona Berceni, Progresul, in suprafata de 200 mp, situat la parter. Spatiul este pretabil pentru diverse activitati: showroom si birouri, clinica medicala, gradinita, after school, cabinet veterinar, etc. Exista centrala termica, contorizare individuala la curent electric si apa. Este asigurata si caldura, care se factureaza la pausal. Spatiul este compartimentat si dispune de multiple grupuri sanitare precum si de o chicineta. In aceeasi cladire, la etajul 2, va putem oferi un alt spatiu de birouri in suprafata tot de 200 mp. ID anun?
Citește mai mult
Citește mai puțin
ID anunț: 226329
Actualizat în: 19 Octombrie 2025
Suprafață utilă:
200 mp
Suprafață utilă totală:
200 mp
Istoric preț
Proprietăți similare
Abonează-te la newsletter să fii primul care primește cele mai noi recomandări de proprietăți și sfaturi de la experți.
Căutări similare
- Spații comerciale de închiriat în Jilava
- Spații comerciale de închiriat în Popești-Leordeni
- Spații comerciale de închiriat în Bragadiru
- Spații comerciale de închiriat în Chitila
- Spații comerciale de închiriat în Voluntari
- Spații comerciale de închiriat în Chiajna
- Spații comerciale de închiriat în Otopeni
- Spații comerciale de închiriat în Ștefăneștii de Jos
- Spații comerciale de închiriat în Pantelimon
- Spații comerciale de închiriat în Buftea
- Spații comerciale de închiriat în Afumați
- Spații comerciale de închiriat în Mogoșoaia