Inchiriez spatiu comercial ultracentral, Galati, str. Brailei nr. 210

1.200 € / lună
24 € / mp / lună

Ultracentral, Galaţi

Suprafață utilă totală:
50 mp

Descriere spațiu comercial

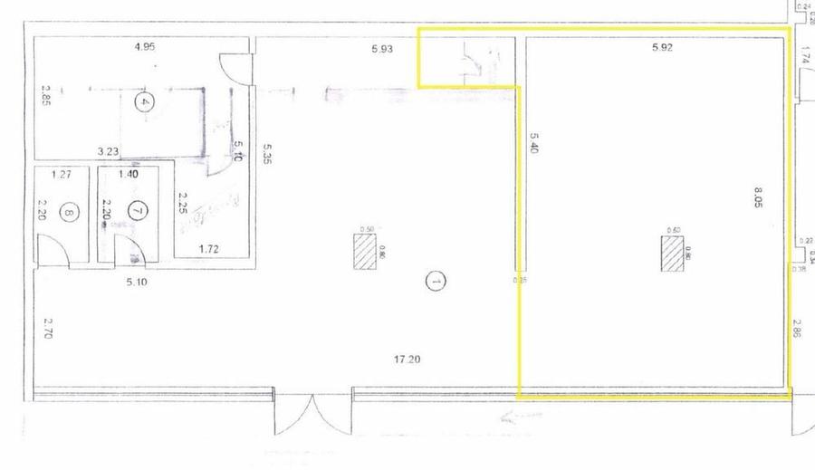
Inchiriez spatiu comercial ultracentral in Galati, pe str. Brailei nr. 210, zona Spitalul Judetean Suprafata totala: 50 mp sala principala 47 mp + magazie 3 mp. Vitrina: 5 m Spatiul face parte dintr-un spatiu mai mare ce urmeaza a fi compartimentat. Chiriasul va realiza pe cont propriu usa de acces, reteaua electrica individuala si amenajarea grupului sanitar, in functie de necesitati.
Citește mai mult Citește mai puțin

Detalii spațiu comercial

ID anunț: 3588169 Actualizat în: 28 Martie 2026
Suprafață utilă: 50 mp
Suprafață utilă totală: 50 mp

Istoric preț

Puncte de interes

Mijloace transport
transport
Oraselul Copiilor
Mijloace transport aprox. 142 m
transport
Tiglina 1
Mijloace transport aprox. 310 m
transport
Tiglina 2
Mijloace transport aprox. 339 m
transport
CEC Tiglina 2
Mijloace transport aprox. 477 m
Școală
education
Scoala Generala nr. 2
Învățământ aprox. 334 m
education
Liceul Alexandru Ioan Cuza
Învățământ aprox. 443 m
education
Liceul Alexandru Ioan Cuza
Învățământ aprox. 464 m
education
Gradinita nr. 9 Sf. Nicolae
Învățământ aprox. 642 m
Recreere
parks
Oraselul Copiilor
Recreere aprox. 78 m
restaurants
Interplaza
Restaurante aprox. 81 m
shopping
Profi
Supermarket/Mall aprox. 519 m
shopping
Kaufland
Supermarket/Mall aprox. 638 m

Proprietăți similare

Spațiu comercial, de 76 mp, în Siderurgiștilor
1.300 € / lună
Galați, Siderurgiștilor
76 mp utili
Spațiu comercial, de 82.300003051758 mp, în Mazepa 1
1.300 € / lună
Galați, Mazepa 1
82,3 mp utili
1E
Spațiu comercial, de 148.22999572754 mp, în Faleză
1.186 € / lună
Galați, Faleză
148,23 mp utili
1E
1970
Spațiu comercial, de 125.5 mp, în Siderurgiștilor
1.100 € / lună
Galați, Siderurgiștilor
125,5 mp utili
4E
Spațiu industrial, de 291.41000366211 mp, în Port
1.099 € / lună
Galați, Port
291,41 mp utili
1975
Spațiu comercial, de 100 mp, în Mazepa 2
1.100 € / lună
Galați, Mazepa 2
100 mp utili
Spațiu comercial, de 140 mp, în Bd. Coșbuc
1.200 € / lună
Galați, Bd. Coșbuc
140 mp utili
Spațiu comercial, de 76 mp, în Micro 18
1.300 € / lună
Galați, Micro 18
76 mp utili
Spațiu comercial, de 130 mp, în Central
1.300 € / lună
Galați, Central
130 mp utili

Abonează-te la newsletter să fii primul care primește cele mai noi recomandări de proprietăți și sfaturi de la experți.