Spatiu comercial de inchiriat pe Strada Dunarii, Alexandria

147 € / lună
1 € / mp / lună

Ultracentral, Alexandria

Suprafață utilă totală:
147 mp

Descriere spațiu comercial

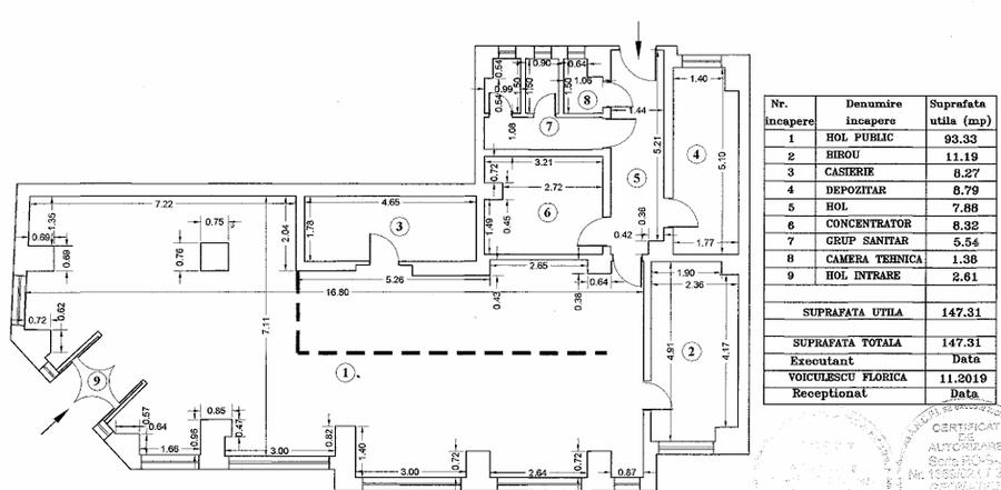
Spațiul comercial propus spre închiriere este situat într-o zonă centrală din Alexandria, pe strada Dunării, bloc F3, într-un punct strategic, cu vizibilitate excelentă și acces facil. Zona imobilului este destinată în principal pentru retail, fiind în apropierea unor afaceri importante, precum: Supermarketul Profi Standard, Farmaciile CrisFarm și Dona, magazine de fashion, Cazinoul Admiral, clinici medicale private. Spațiul se află la parterul unui bloc de locuințe și dispune de o suprafață de 147 m2. Printre beneficiile spatiului se numara traficul pietonal si auto intens, vizibilitate maxima si vitrina generoasa. Parcarea este disponibilă în spatele imobilului sau în zonele special amenajate din apropiere. Spatiul este disponibil imediat si se poate viziona la cerere.
Citește mai mult Citește mai puțin

Detalii spațiu comercial

ID anunț: 1063729 Actualizat în: 12 Februarie 2026
Suprafață utilă: 147 mp
Suprafață utilă totală: 147 mp

Istoric preț

Puncte de interes

Mijloace transport
transport
Gara Alexandria Nord
Mijloace transport aprox. 1116 m
transport
Gara Alexandria Sud
Mijloace transport aprox. 1398 m
Școală
education
Colegiul National Alexandru Dimitrie Ghica
Învățământ aprox. 264 m
education
Grup Scolar Alexandria
Învățământ aprox. 524 m
education
Scoala Generala Mihai Viteazul
Învățământ aprox. 780 m
Recreere
parks
Parc
Recreere aprox. 119 m
shopping
Profi
Supermarket/Mall aprox. 385 m
restaurants
Conciato
Restaurante aprox. 716 m
shopping
PROINVEST
Supermarket/Mall aprox. 917 m

Proprietăți similare

Spațiu comercial, de 50 mp, în Bragadiru
150 € / lună
Județul Teleorman, Bragadiru
50 mp utili

Abonează-te la newsletter să fii primul care primește cele mai noi recomandări de proprietăți și sfaturi de la experți.