Proprietar - Duplex 4 camere de vânzare - Bucurestii Noi - Straulesti

299.999 €

Străuleşti, Bucureşti

Nr. camere:
4
Suprafață utilă:
98 mp
Suprafață teren:
104 mp

Descriere casă

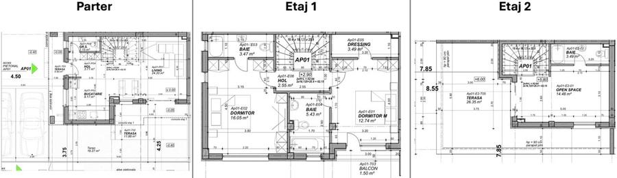
Caracteristici: Suprafață utilă: 98,5 mp Suprafață teren: 104 mp Suprafață construită: 137,90 mp Terase + grădină: ~65 mp (inclusiv terasă rooftop generoasă) Camere: 4 | Băi: 4 Spatiu de parcare pentru 2 masini An construcție: 2021 Orientare: Sud–Vest (lumina naturală după ora 10 pana la apus) Descriere: Duplex situat în zona Bucureștii Noi – Doi Cocoși / Străulești, la aproximativ 10–15 minute de mers pe jos până la metrou Străulești. Locuința e gândită pentru confortul de zi cu zi: open-space la parter (living + dining + bucătărie), ieșire directă către terasă și grădină, iar la etajele superioare fiecare cameră are baie proprie. Astfel se asigura intimitate pentru fiecare membru al familiei, plus un ultim nivel perfect ca birou / cameră de oaspeți, cu baie și terasă rooftop. Compartimentare Parter: – Living + dining (open-space) – Bucătărie open-space – Baie – Terasă + grădină amenajată (spațiu de relaxare, verdeață, umbrire) Etaj 1: – Dormitor matrimonial cu dressing și baie – Dormitor secundar cu baie Etaj 2: – Birou / open-space (poate funcționa și ca dormitor) cu baie – Terasă rooftop (ideală pentru lounge, dining, apusuri) Finisaje & confort – Tâmplărie profil Salamander – Termoizolație exterioară (polistiren 10 cm) – Centrală termică proprie – Suprafețe vitrate mari și camere luminoase (orientare S–V) – Costuri de încălzire: iarna, consum mediu de 200–300 mc gaz/lună la temperatură constantă ~23°C (pot fi puse la dispoziție istorice de index; consumul variază în funcție de utilizare) Curte & exterior – Grădină amenajată complet – Gazon + sistem automat de irigare/aspersoare – Spațiu de depozitare exterior (magazie) – Copaci pentru umbrire vara Localizare (repere) Acces rapid către cumpărături și servicii: Colosseum, Kaufland, Mega Image, Lidl în proximitate (timp estimat de 5 min cu mașina), iar Băneasa Shopping City la ~15 minute. Pentru ieșiri in parc: Mogosoaia și zona de lac/parc, respectiv Herăstrău sunt ușor accesibile (Mogosoaia 7 min, Herastrau 15 min, Bazilescu 7 min). Opțional cumpărătorul poate beneficia de: – Pachet smart home (Apple Home / HomeKit) cu control individual al încălzirii pe camere si geofencing (ajustare automată a temperaturii in funcție de locație) Tado, camere supraveghere (Netatmo), yală smart (August) – Sistem de aer condiționat Daikin (4 unități) – Programator irigații – Electrocasnice bucătărie: Franke / AEG / Samsung – Corpuri de iluminat Mențiuni: Se pot oferi poze si filmări complete cu fiecare etapa din timpul construcției.
Citește mai mult Citește mai puțin
Parțial mobilat Aer condiționat Centrală proprie Bine întreținut (Bună)

Detalii casă

ID anunț: 3707617 Actualizat în: 07 Martie 2026
Nr. camere: 4
Suprafață utilă: 98 mp
Suprafață utilă totală: 98 mp
Nr. băi: 4
Suprafață teren: 104 mp
An construcție: 2021
Regim înălțime: P+2E

Istoric preț

Facilități

Utilități
Gaze Apă Canalizare Internet Supraveghere video
Sistem încălzire
Centrală proprie
Climatizare
Aer condiționat
Mobilat
Parțial mobilat
Stare interior
Stare bună
Servicii imobil
Supraveghere video

Puncte de interes

Mijloace transport
transport
Statia Doi Cocosi linia 304
Mijloace transport aprox. 465 m
transport
Straulesti
Mijloace transport aprox. 773 m
transport
Statia Cimitirul Straulesti, linia N117, 304,97
Mijloace transport aprox. 951 m
transport
statia Piscul Scoartei, linia 205
Mijloace transport aprox. 1353 m
Școală
education
Scoala Generala Nr. 13
Învățământ aprox. 488 m
education
Scoala 13
Învățământ aprox. 493 m
education
Camin Scoala Generala Nr. 181
Învățământ aprox. 1569 m
education
Scoala 181
Învățământ aprox. 1592 m
Recreere
shopping
Mega Image
Supermarket/Mall aprox. 378 m
parks
Strandul Straulesti
Recreere aprox. 481 m
restaurants
Doi Cocosi
Restaurante aprox. 525 m
shopping
Profi
Supermarket/Mall aprox. 1056 m

Proprietăți similare

Duplex cu 6 camere cu Canalizare în Străulești
319.900 € + TVA
București, Străulești
6 camere
151 mp
Duplex cu 4 camere cu Canalizare în Străulești
300.000 €
București, Străulești
4 camere
98 mp
104 mp teren
Duplex cu 4 camere cu Teren 160 Mp în Pipera
309.900 €
București, Pipera
4 camere
140 mp
160 mp teren
Duplex cu 5 camere cu Canalizare în Pipera
304.000 €
București, Pipera
5 camere
120 mp
158 mp teren
Duplex cu 3 camere cu Canalizare în Iancu Nicolae
309.500 €
București, Iancu Nicolae
3 camere
120 mp
217,81 mp teren
Duplex cu 6 camere cu Canalizare în Sisești
290.000 €
București, Sisești
6 camere
210,1 mp
172 mp teren
Duplex cu 4 camere cu Canalizare în Pipera
300.000 €
București, Pipera
4 camere
125 mp
235 mp teren
Duplex cu 5 camere cu Garaj în Pipera
299.000 € + TVA
București, Pipera
5 camere
126 mp
85 mp teren
Duplex cu 5 camere cu Canalizare în Pipera
270.000 € + TVA
București, Pipera
5 camere
146 mp
200 mp teren

Abonează-te la newsletter să fii primul care primește cele mai noi recomandări de proprietăți și sfaturi de la experți.