Casă/Duplex/Sânpetru/Curte

168.000 €

Sânpetru, Judeţul Braşov

Nr. camere:
4
Suprafață utilă:
110 mp
Suprafață teren:
400 mp

Descriere casă

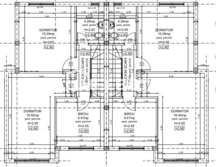
Oferim spre vânzare o casă tip duplex situată în Sânpetru, Brașov, într-o zonă liniștită, predominant rezidențială, cu acces rapid către centura Brașovului și oraș. Amplasarea este strategică, iar dezvoltarea continuă a zonei – inclusiv deschiderea viitoare a unui Street Mall în proximitate. Cu o suprafață utilă de 110 mp și un teren de 300 mp, proprietatea oferă echilibrul ideal între spațiu interior generos și curte proprie suficientă pentru relaxare, zonă verde sau loc de joacă. Construcția este realizată din cărămidă, cu izolație exterioară de 10 cm, asigurând eficiență termică și costuri optimizate de întreținere. Încălzirea prin pardoseală PURMO oferă confort termic uniform și un plus estetic prin eliminarea radiatoarelor clasice. Detalii principale: - 4 camere - 2 băi - Suprafață utilă: 110 mp - Suprafață teren: 300 mp - Birou - Curte pavată - Încălzire în pardoseală PURMO - Structură din cărămidă - Izolație exterioară cu polistiren de 10 cm Proprietatea se predă la cheie, nemobilată, oferind libertatea de amenajare după propriul gust și buget. Imaginile sunt cu titlu de prezentare, însă structura și compartimentarea proprietății sunt identice. Preț: 168 000 EUR Contact: Veaceslav Ghelbet - HELBET ESTATE
Citește mai mult Citește mai puțin

Detalii casă

ID anunț: 3630175 Actualizat în: 01 Aprilie 2026
Nr. camere: 4
Suprafață utilă: 110 mp
Suprafață utilă totală: 110 mp
Nr. băi: 2
Suprafață teren: 400 mp
An construcție: 2024
Regim înălțime: P+1E

Istoric preț

Facilități

Utilități
Curent Apă Canalizare Gaze Cablu
Internet
Cablu
Amenajare străzi
Iluminat stradal Mijloace de transport în comun Asfaltate

Puncte de interes

Mijloace transport
transport
Aerodromul Sanpetru-Brasov
Mijloace transport aprox. 987 m
Recreere
parks
Loc de joaca
Recreere aprox. 276 m
restaurants
Hotel Bielmann
Restaurante aprox. 571 m
parks
Teren sportiv
Recreere aprox. 577 m
parks
Pădure
Recreere aprox. 1929 m

Proprietăți similare

Duplex cu 4 camere cu Canalizare în Sânpetru
169.500 €
Județul Brașov, Sânpetru
4 camere
105 mp
300 mp teren
Duplex cu 4 camere cu Canalizare în Sânpetru
168.000 €
Județul Brașov, Sânpetru
4 camere
102 mp
300 mp teren
Duplex cu 4 camere cu Canalizare în Sânpetru
169.000 €
Județul Brașov, Sânpetru
4 camere
102 mp
250 mp teren
Duplex cu 3 camere cu Canalizare în Sânpetru
164.500 €
Județul Brașov, Sânpetru
3 camere
91,31 mp
206,7 mp teren
Duplex cu 3 camere cu Canalizare în Sânpetru
179.000 €
Județul Brașov, Sânpetru
3 camere
91,31 mp
206 mp teren
Duplex cu 3 camere cu Teren 200 Mp în Sânpetru
168.995 €
Județul Brașov, Sânpetru
3 camere
92 mp
200 mp teren
Duplex cu 4 camere cu Canalizare în Tărlungeni
159.000 €
Județul Brașov, Tărlungeni
4 camere
110 mp
210 mp teren
Duplex cu 3 camere cu Teren 250 Mp în Exterior Est
158.000 €
Brașov, Exterior Est
3 camere
110 mp
250 mp teren
Duplex cu 4 camere cu Teren 350 Mp în Tărlungeni
176.000 €
Județul Brașov, Tărlungeni
4 camere
97 mp
350 mp teren

Abonează-te la newsletter să fii primul care primește cele mai noi recomandări de proprietăți și sfaturi de la experți.