1015 MP Teren I S+P+2E I Curte Interioara I Spatii Comerciale I Front 73 ML I

3.000.000 €

Universitate, Bucureşti

Nr. camere:
5
Suprafață utilă:
2.723 mp
Suprafață teren:
1.015 mp
Nr. niveluri:
2

Descriere casă

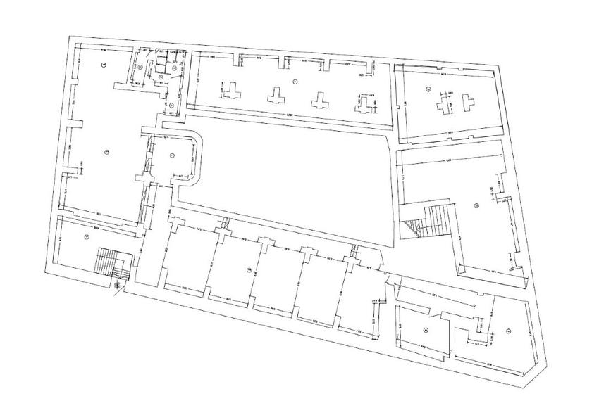
Suprafață teren: 1015 mp Suprafață construită sol : 883 mp Regim de înălțime: S+P+2E Front Stradal : 73 ml Pret: 3 mil euro + TVA - Necesita Consolidare / Posibilitate Mansardare / peste 4000 mpc -Ocuparea și utilizarea terenului POT existent = 88,12% POTmax. = 80% CUT existent = 2,72 CUTmax. = 3,5 Imobil Comercial, ApartHotel - este un monument istoric grupa B, datat sf. sec. XIX, construit în forma actuală în anii 1882-1884. -Înălțimile etajelor sunt: 3,60 m la subsol, 3,93 m la parter, 3,50 m la etajul 1 si 3,30m la etajul 2 -Imobilul se află în perimetrul zonei construite protejate nr. 26 a - zona Lipscani, respectiv face parte din ansamblul urban protejat care cuprinde nucleul comercial tradițional, zona definită de strada Doamnei, bdul ătianu, Splaiul Independenței și Calea Victoriei
Citește mai mult Citește mai puțin

Detalii casă

ID anunț: 2629079 Actualizat în: 06 Ianuarie 2026
Nr. camere: 5
Suprafață utilă: 2.723 mp
Suprafață utilă totală: 2.723 mp
Suprafață teren: 1.015 mp
Regim înălțime: P+2E

Istoric preț

Puncte de interes

Mijloace transport
transport
Statia Piata Sf. Gheorghe, linii: 5,16, 21, 381
Mijloace transport aprox. 93 m
transport
Piata Sf. Gheorghe
Mijloace transport aprox. 101 m
transport
Piata Sf. Gheorghe
Mijloace transport aprox. 236 m
transport
Statia Metrou Piata Universitatii(M2)Metrorex
Mijloace transport aprox. 296 m
Școală
education
Centrul Educational IBSEN
Învățământ aprox. 324 m
education
institutul Irecson
Învățământ aprox. 328 m
education
Facultatea de Chimie
Învățământ aprox. 350 m
education
Facultatea de Istorie
Învățământ aprox. 364 m
Recreere
restaurants
DDB caffe
Restaurante aprox. 21 m
parks
Piata Roma
Recreere aprox. 94 m
shopping
Cocor
Supermarket/Mall aprox. 280 m
shopping
BILLA - Cocor
Supermarket/Mall aprox. 294 m

Proprietăți similare

Casă individuală cu 5 camere cu Teren 1015 Mp în Universitate
3.000.000 €
București, Universitate
5 camere
2.650 mp
1.015 mp teren
Casă individuală cu 26 camere cu Canalizare în Universitate
3.000.000 € + TVA
București, Universitate
26 camere
1.300 mp
471 mp teren
Casă individuală cu 24 camere cu Canalizare în Cișmigiu
3.000.000 € + TVA
București, Cișmigiu
24 camere
1.190 mp
1.200 mp teren
Casă individuală cu 26 camere cu Teren 450 Mp în Calea Victoriei
2.800.000 €
București, Calea Victoriei
26 camere
770 mp
450 mp teren
Casă individuală cu 12 camere cu Teren 475 Mp în Romană
3.000.000 €
București, Romană
12 camere
937 mp
475 mp teren
Casă individuală cu 14 camere cu Canalizare în P-ța Victoriei
3.200.000 €
București, P-ța Victoriei
14 camere
631 mp
430 mp teren
Casă individuală cu 20 camere cu Canalizare în Primăverii
3.000.000 €
București, Primăverii
20 camere
718 mp
395 mp teren
Casă individuală cu 10 camere cu Canalizare în Dorobanți
3.200.000 €
București, Dorobanți
10 camere
660 mp
300 mp teren
Casă individuală cu 7 camere cu Piscina în Pipera
2.800.000 € + TVA
București, Pipera
7 camere
578 mp
2.953 mp teren

Abonează-te la newsletter să fii primul care primește cele mai noi recomandări de proprietăți și sfaturi de la experți.