Vila 4camere+mansarda,2 pasi de parc Moghioros/Auchan/Ghencea/Metrou,tva inclus

250.000 €

Ghencea, Bucureşti

Nr. camere:
4
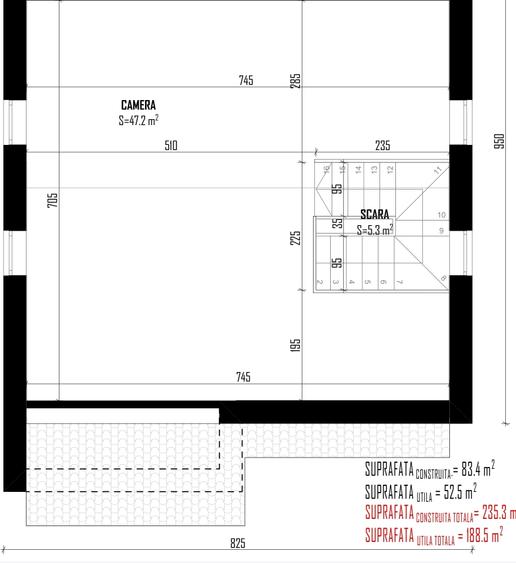
Suprafață utilă:
188 mp
Suprafață teren:
230 mp
Nr. niveluri:
1

Descriere casă

Vila individuală 4camere + mansarda Langa metrou,liceu,parc moghioros,ghencea,auchan drumul taberei Cartier rezidențial acces privat si securizat, cu acces rapid către centrul Bucureștiului și la doar 5 minute de stația de metrou 10 minute de liceul lovinescu/Ghencea (tramvai 41)/auchan/parc moghioros Regim: Parter + Etaj + Mansardă Compartimentare ideala Parter: living mare 26mp + bucătărie închisă 12mp cu ieșire în terasă, baie, hol, spatiu depozitare Etaj: 2 dormitoare luminoase, baie modernă 1 dormitor matrimonial cu baie proprie. Mansardă: 45 mp unde puteti amenaja birou/dormitor matrimonial/2 dormitoare. Este echivalentul unui apartament tip studio Finisaje PREMIUM & Dotări moderne: Construcție 2025, structură solidă Acoperiș Lindab Tâmplărie Rehau – 5 camere Încălzire în pardoseală + centrală proprie Băi complet echipate, design modern Izolație exterioară performantă Complex rezidențial exclusivist: Acces controlat și securizat Drumuri asfaltate & iluminate Vecinătate selectă, mediu liniștit Locație & accesibilitate: 5 minute până la metrou Conexiune rapidă către Centură, A2 și A3 Școli, grădinițe, supermarketuri – la câțiva pași
Citește mai mult Citește mai puțin
Curte Centrală proprie

Detalii casă

ID anunț: 1503466 Actualizat în: 04 Martie 2026
Nr. camere: 4
Suprafață utilă: 188 mp
Suprafață utilă totală: 188 mp
Nr. băi: 3
Suprafață teren: 230 mp
An construcție: 2025
Regim înălțime: P+1E

Istoric preț

Facilități

Pereți
Faianță Vopsea lavabilă
Podele
Parchet Gresie
Ușă intrare
Parchet Metal Lemn PVC
Uși interior
Lemn PVC
Izolații termice
Exterior
Ferestre cu geam termopan
Lemn PVC
Contorizare
Apometre Contor gaz
Diverse
Senzor de fum Sistem de alarmă Telecomandă poartă acces auto
Alte spații utile
Spațiu depozitare WC Serviciu
Facilități imobil
Curte
Utilități
Apă Canalizare Gaze
Sistem încălzire
Centrală proprie
Internet
Fibră optică Wireless Dial-up
Amenajare străzi
Asfaltate Mijloace de transport în comun Iluminat stradal

Puncte de interes

Mijloace transport
transport
Cimitir Ghencea 3
Mijloace transport aprox. 476 m
transport
Statia Valea Oltului, Liniile 368, 385, 268, N122, 668, 105, 122
Mijloace transport aprox. 580 m
transport
Statia Bascov, linia 185
Mijloace transport aprox. 843 m
transport
Ansamblul Primavara
Mijloace transport aprox. 914 m
Școală
education
ŞCOALA CU CLASELE I-VIII NR. 144
Învățământ aprox. 507 m
education
Scoala Generala nr. 144
Învățământ aprox. 518 m
education
Scoala Speciala Nr. 2
Învățământ aprox. 786 m
education
Şcoala Hipoacuzici Nr. 2 Sfanta Maria
Învățământ aprox. 787 m
Recreere
shopping
eMAG Supermarket
Supermarket/Mall aprox. 499 m
restaurants
Domino's Pizza
Restaurante aprox. 545 m
shopping
Mega Image
Supermarket/Mall aprox. 548 m
parks
Parc
Recreere aprox. 889 m

Proprietăți similare

Casă individuală cu 4 camere cu Canalizare în Rahova
250.000 €
București, Rahova
4 camere
136 mp
220 mp teren
Casă individuală cu 8 camere cu Canalizare în Prelungirea Ferentari
230.000 €
București, Prelungirea Ferentari
8 camere
373 mp
162 mp teren
Casă individuală cu 7 camere cu Canalizare în Sălaj
250.000 €
București, Sălaj
7 camere
170 mp
270 mp teren
Casă individuală cu 8 camere cu Teren 81 Mp în Rahova
242.000 €
București, Rahova
8 camere
232 mp
81 mp teren
Casă individuală cu 5 camere cu Canalizare în Panduri
225.000 €
București, Panduri
5 camere
260 mp
160 mp teren
Casă individuală cu 5 camere cu Canalizare în Prelungirea Ghencea
250.000 €
București, Prelungirea Ghencea
5 camere
180 mp
252 mp teren
Casă individuală cu 4 camere cu Canalizare în Drumul Taberei
259.000 €
București, Drumul Taberei
4 camere
100 mp
316 mp teren
Casă individuală cu 4 camere cu Canalizare în Pache Protopopescu
250.000 €
București, Pache Protopopescu
4 camere
140 mp
400 mp teren
Casă individuală cu 4 camere cu Teren 300 Mp în Prelungirea Ghencea
240.000 €
București, Prelungirea Ghencea
4 camere
134 mp
300 mp teren

Abonează-te la newsletter să fii primul care primește cele mai noi recomandări de proprietăți și sfaturi de la experți.