3

Casa individuala S+P+1 –242 mp, potential rezidential/comercial, zona Viilor

395.000 €

Parcul Carol, Bucureşti

Nr. camere:
5
Suprafață utilă:
179 mp
Suprafață teren:
242 mp
Nr. niveluri:
1

Descriere casă

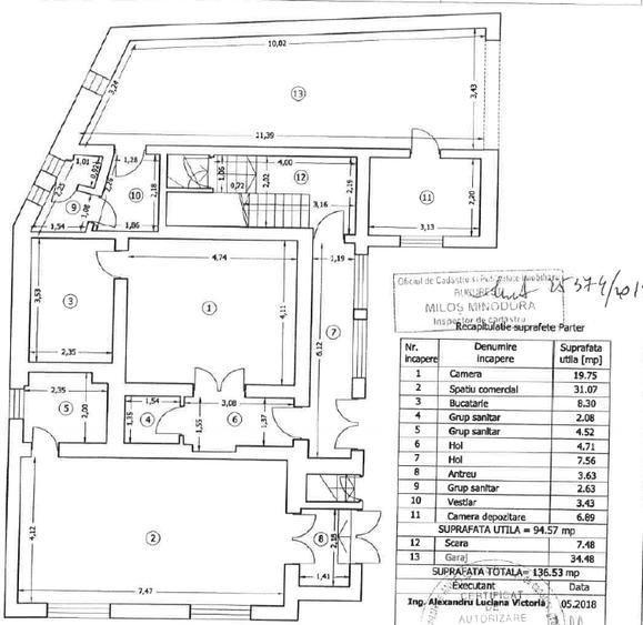
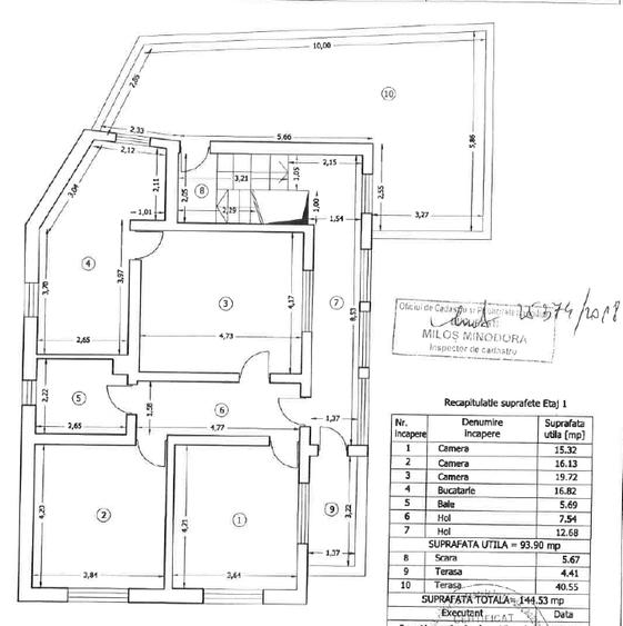
Proprietar ofer spre vanzare casa individuala in zona Viilor, sector 5, Bucuresti, consolidata in 2003, cu acces rapid catre principalele artere ale orasului, la aproximativ 10 minute de Piata Unirii. Imobilul este amplasat pe un teren de 242 mp, cu o suprafata construita de 179 mp. Casa este eficient compartimentata si ofera multiple posibilitati de utilizare: locuinta, activitati comerciale, investitie sau utilizare mixta (residential + comercial) Compartimentare: Subsol: pivnita si spatii depozitare Parter: camere generoase, bucatarie, 2 grupuri sanitare, hol, garaj Etaj: 3 camere, bucatarie, grup sanitar, balcon si terasa spatioasa Imobilul necesita imbunatatiri, oferind insa un potential ridicat de amenajare si recompartimentare in functie de nevoile viitorului proprietar. Parterul casei dispune de 2 intrari, pretabil pentru functionarea a doua spatii comerciale. Zona cu potential de dezvoltare, cu acces facil catre transport, centre comerciale si zona centrala a Bucurestiului. Vecinatati: Parcul Carol, Academia Tehnica Militara, Primaria Sector 5. Toate actele la zi – C.F + cadastru Comision 0% pentru vanzator. Colaborare acceptata cu agentii care isi percep comisionul exclusiv de la cumparator.
Citește mai mult Citește mai puțin

Detalii casă

ID anunț: 3418931 Actualizat în: 06 Februarie 2026
Nr. camere: 5
Suprafață utilă: 179 mp
Suprafață utilă totală: 179 mp
Nr. băi: 3
Suprafață teren: 242 mp
Regim înălțime: P+1E

Istoric preț

Puncte de interes

Mijloace transport
transport
Statia Soseaua Viilor, linia 117
Mijloace transport aprox. 93 m
transport
Statia Spatarul Preda, linia 173
Mijloace transport aprox. 285 m
transport
Piata Chirigiu
Mijloace transport aprox. 288 m
transport
Statie Tramvai 32, 23
Mijloace transport aprox. 294 m
Școală
education
Gradinita nr. 269
Învățământ aprox. 186 m
education
Academia Tehnica Militara
Învățământ aprox. 284 m
education
Colegiul economic "Viilor"
Învățământ aprox. 358 m
education
Colegiul Economic Viilor
Învățământ aprox. 361 m
Recreere
parks
Parc
Recreere aprox. 92 m
restaurants
Bistro Orhideea
Restaurante aprox. 250 m
shopping
Carrefour Market
Supermarket/Mall aprox. 354 m
shopping
Liberty Center Mall
Supermarket/Mall aprox. 372 m

Proprietăți similare

Casă individuală cu 6 camere cu Canalizare în Parcul Carol
374.990 €
București, Parcul Carol
6 camere
272 mp
126 mp teren
Casă individuală cu 4 camere cu Canalizare în Parcul Carol
385.000 €
București, Parcul Carol
4 camere
200 mp
305 mp teren
Casă individuală cu 7 camere cu Canalizare în Parcul Carol
363.000 €
București, Parcul Carol
7 camere
165 mp
416 mp teren
Casă individuală cu 5 camere cu Canalizare în Parcul Carol
408.999 €
București, Parcul Carol
5 camere
207 mp
248 mp teren
Casă individuală cu 9 camere cu Canalizare în Parcul Carol
409.000 € + TVA
București, Parcul Carol
9 camere
275 mp
130 mp teren
Casă individuală cu 8 camere cu Canalizare în Parcul Carol
409.000 €
București, Parcul Carol
8 camere
206,72 mp
248 mp teren
Casă individuală cu 5 camere cu Teren 273 Mp în Parcul Carol
425.000 €
București, Parcul Carol
5 camere
262 mp
273 mp teren
Casă individuală cu 8 camere cu Teren 110 Mp în Parcul Carol
399.936 €
București, Parcul Carol
8 camere
275 mp
110 mp teren
Casă individuală cu 9 camere cu Canalizare în Parcul Carol
409.000 €
București, Parcul Carol
9 camere
207 mp
248 mp teren

Abonează-te la newsletter să fii primul care primește cele mai noi recomandări de proprietăți și sfaturi de la experți.