Brancoveanu-Alunisului,P+E+M.noua,locuita,strada linistita,10min-metrou,parc

449.000 €

Brâncoveanu, Bucureşti

Nr. camere:
6
Suprafață utilă:
200 mp
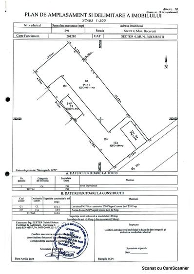
Suprafață teren:
300 mp
Nr. niveluri:
1

Descriere casă

Proprietatea a fost receptionata in 2025, cadastrata si intabulata. Totul este absolut nou. Sunt 4 dormitoare( unul la parter) , dressing,3 bai si o tpaleta de serviciu. Curtea este generoasa,amenajata cu plante decorative, pavele, foisor, loc de parcare in curte si in afara ei.
Citește mai mult Citește mai puțin
Mobilat Parțial mobilat Grădină Curte Aer condiționat Calorifere Centrală proprie Beci

Detalii casă

ID anunț: 2519473 Actualizat în: 26 Februarie 2026
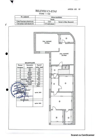
Nr. camere: 6
Suprafață utilă: 200 mp
Suprafață utilă totală: 200 mp
Nr. băi: 4
Suprafață teren: 300 mp
Front stradal: 11 m
Regim înălțime: P+1E

Istoric preț

Facilități

Utilități
Gaze Apă Canalizare
Sistem încălzire
Calorifere Centrală proprie
Climatizare
Aer condiționat
Amenajare străzi
Asfaltate Mijloace de transport în comun Iluminat stradal

Puncte de interes

Mijloace transport
transport
Statia Piata Progresul, linia 323, N107,7,25
Mijloace transport aprox. 450 m
transport
Statia Izvorul Rece / Resita, linia 381, N112, 77
Mijloace transport aprox. 635 m
transport
Resita
Mijloace transport aprox. 639 m
transport
Sos. Giurgiului
Mijloace transport aprox. 646 m
Școală
education
Gradinita nr.262, "Alba ca zapada si piticii"
Învățământ aprox. 142 m
education
Gradinita Alba ca Zapada si Piticii
Învățământ aprox. 153 m
education
EuroKid afterschool
Învățământ aprox. 165 m
education
gradinita
Învățământ aprox. 251 m
Recreere
parks
Playground Livada
Recreere aprox. 257 m
restaurants
Nicman
Restaurante aprox. 321 m
shopping
Complex Agroalimentar Progresul
Supermarket/Mall aprox. 416 m
shopping
Mini market
Supermarket/Mall aprox. 454 m

Proprietăți similare

Casă individuală cu 5 camere cu Teren 152 Mp în Parcul Carol
480.000 €
București, Parcul Carol
5 camere
134,11 mp
152 mp teren
Casă individuală cu 5 camere cu Teren 235 Mp în Apărătorii Patriei
429.000 €
București, Apărătorii Patriei
5 camere
306 mp
235 mp teren
Casă individuală cu 4 camere cu Canalizare în Eroii Revoluției
449.000 €
București, Eroii Revoluției
4 camere
184 mp
281 mp teren
Casă individuală cu 8 camere cu Canalizare în Parcul Carol
409.000 €
București, Parcul Carol
8 camere
206,72 mp
248 mp teren
Casă individuală cu 6 camere cu Canalizare în Eroii Revoluției
450.000 €
București, Eroii Revoluției
6 camere
210 mp
312 mp teren
Casă individuală cu 3 camere cu Canalizare în Tineretului
420.000 €
București, Tineretului
3 camere
75 mp
81 mp teren
Casă individuală cu 8 camere cu Canalizare în Cantemir
450.000 €
București, Cantemir
8 camere
300 mp
Casă individuală cu 7 camere cu Canalizare în Apărătorii Patriei
478.999 €
București, Apărătorii Patriei
7 camere
348 mp
500 mp teren
Casă individuală cu 5 camere cu Canalizare în Apărătorii Patriei
449.000 €
București, Apărătorii Patriei
5 camere
227,9 mp
400 mp teren

Abonează-te la newsletter să fii primul care primește cele mai noi recomandări de proprietăți și sfaturi de la experți.