vila 7camere/(348util,500teren,119ampr.)mp/5min.metrouAp.Patriei

465.000 €

Apărătorii Patriei, Bucureşti

Nr. camere:
7
Suprafață utilă:
348 mp
Suprafață teren:
500 mp
Nr. niveluri:
1

Descriere casă

Proprietar Vand vila(construita in regie proprie) individuala dispusa pe parter, etaj si pod mansardat, situata la 5-7min de mers pe jos pana la statia de metrou Ap. Patriei, avand dubla deschidere, cu posibilitatea parcarii a 5 masini(2 in curte si 3 pe zona de proprietate). Se vinde fie mobilata si utilata, cel putin cum se vede in fotografii, fie goala, dupa cum se doreste. Arata exact ca in fotografii; este certificata energetic casa A. Va rog sa regasiti in informatiile atasate, fotografiile si releveul corespunzator pe fiecare nivel in parte. Mai multe detalii, pentru potentialii clienti interesati de achizitie in mod real, la tel: Toate actele sunt pregatite pentru vanzare. Dispune atat de loc de joaca(amenajat deasupra piscinei exterioare) pentru copii, cat si de piscina. Beneficiaza atat de toate utilitatile publice(apa, energie electrica, gaz, internet-cablu TV) cat si de put propriu cu hidrofor pentru alimentarea cu apa a piscinei si intretinerea spatiului verde.
Citește mai mult Citește mai puțin
Mobilat Grădină Curte Aer condiționat Calorifere Centrală proprie Beci

Detalii casă

ID anunț: 77373 Actualizat în: 03 Aprilie 2026
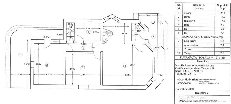
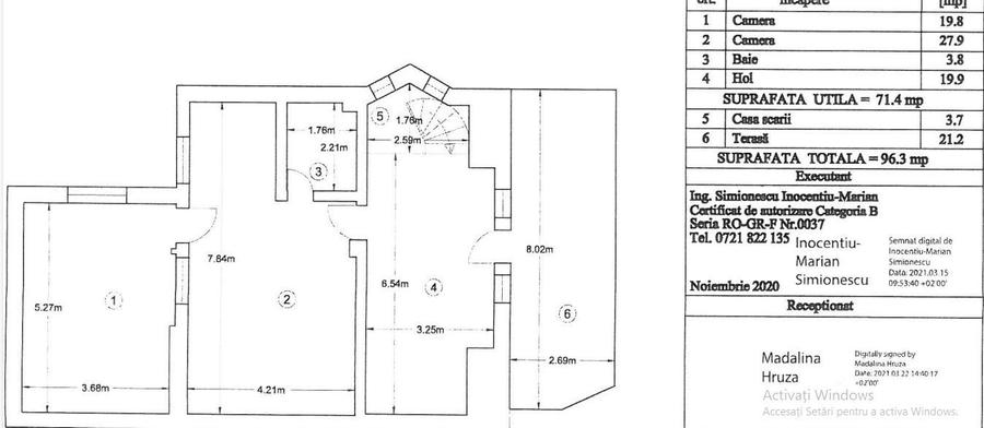
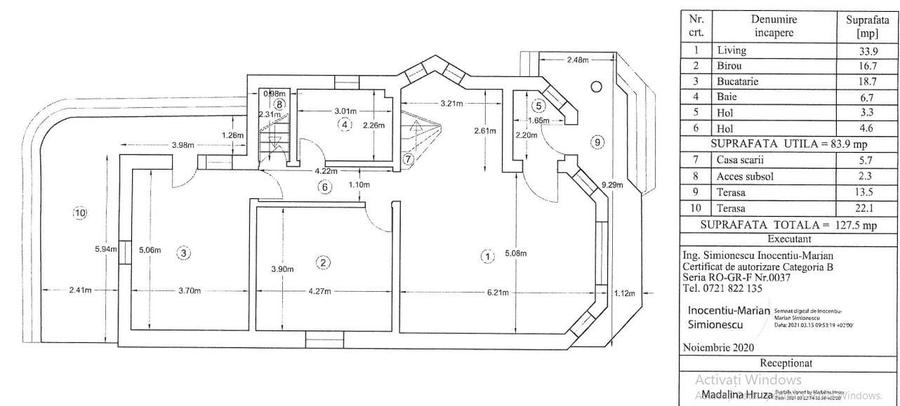
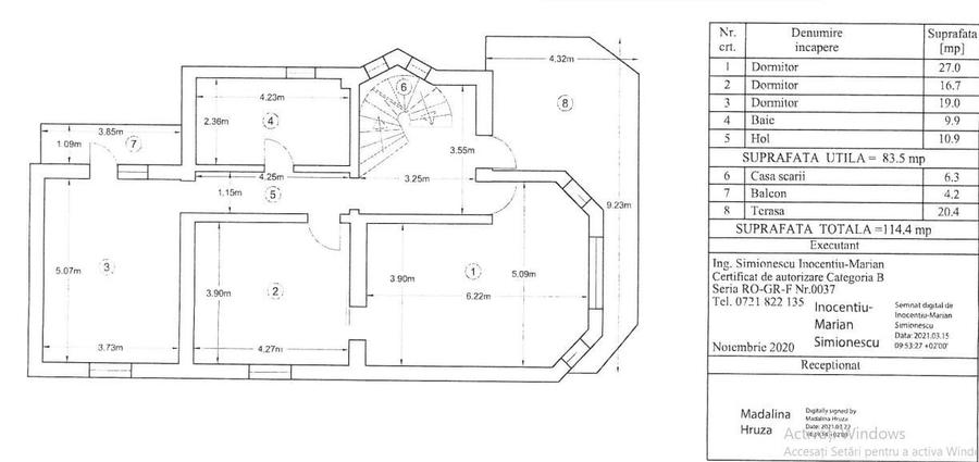
Nr. camere: 7
Suprafață utilă: 348 mp
Suprafață utilă totală: 348 mp
Nr. băi: 3
Suprafață teren: 500 mp
Front stradal: 41 m
An construcție: 2002
Regim înălțime: P+1E

Istoric preț

Facilități

Jaluzele
Orizontale Verticale
Pereți
Faianță Vopsea lavabilă
Podele
Gresie Parchet Marmură
Ușă intrare
PVC Parchet Metal Lemn
Uși interior
PVC Panel Lemn Sticlă
Izolații termice
Exterior
Ferestre cu geam termopan
PVC Lemn
Contorizare
Apometre Contor gaz
Bucătărie
Mobilată Utilată
Mobilat
Mobilat
Electrocasnice
Aragaz Frigider Hotă Mașină de spălat Mașină spălat vase TV
Diverse
Jacuzzi Scară interioară Senzor de fum Sistem de alarmă
Alte spații utile
Dressing Pivniță
Facilități imobil
Acoperiș Curte Grădină
Utilități
Curent Apă Canalizare Gaze Aragaz / Plită Frigider Mașină de spălat rufe Mașină de spălat vase TV Cablu Supraveghere video
Sistem încălzire
Calorifere Centrală proprie
Internet
Cablu Wireless
Climatizare
Aer condiționat
Amenajare străzi
Iluminat stradal Mijloace de transport în comun Asfaltate
Servicii imobil
Supraveghere video

Puncte de interes

Mijloace transport
transport
Metrorex. Staţia Apărătorii Patriei (M2)(1986)
Mijloace transport aprox. 443 m
transport
Aparatorii Patriei (M2)
Mijloace transport aprox. 462 m
transport
Statia Comisani linia 125
Mijloace transport aprox. 505 m
transport
Statia Cartier Aparatorii Patriei, linia 125, 232, N106, 202, metrou M2
Mijloace transport aprox. 520 m
Școală
education
Scoala Gimnaziala Speciala Sfantul Nicolae
Învățământ aprox. 33 m
education
Grupul Industrial "Dacia"
Învățământ aprox. 205 m
education
Scoala Nr. 102 Gen. Eremia Grigorescu
Învățământ aprox. 338 m
education
Scoala nr.102
Învățământ aprox. 353 m
Recreere
parks
Teren sportiv
Recreere aprox. 14 m
shopping
Complex Comercial Aparatorii Patriei
Supermarket/Mall aprox. 421 m
shopping
Profi
Supermarket/Mall aprox. 429 m
restaurants
Maverick
Restaurante aprox. 455 m

Proprietăți similare

Casă individuală cu 8 camere cu Canalizare în Apărătorii Patriei
479.990 €
București, Apărătorii Patriei
8 camere
271 mp
256 mp teren
Casă individuală cu 5 camere cu Canalizare în Apărătorii Patriei
449.000 €
București, Apărătorii Patriei
5 camere
227,9 mp
400 mp teren
Casă individuală cu 5 camere cu Canalizare în Apărătorii Patriei
425.000 €
București, Apărătorii Patriei
5 camere
150 mp
200 mp teren
Casă individuală cu 10 camere cu Canalizare în Berceni
500.000 €
București, Berceni
10 camere
280 mp
200 mp teren
Casă individuală cu 7 camere cu Canalizare în Metalurgiei
420.000 €
București, Metalurgiei
7 camere
185 mp
420 mp teren
Casă individuală cu 5 camere cu Teren 273 Mp în Parcul Carol
425.000 €
București, Parcul Carol
5 camere
262 mp
273 mp teren
Casă individuală cu 6 camere cu Canalizare în Brâncoveanu
500.000 €
București, Brâncoveanu
6 camere
230 mp
411 mp teren
Casă individuală cu 5 camere cu Teren 100 Mp în Berceni
465.000 €
București, Berceni
5 camere
134 mp
100 mp teren
Casă individuală cu 5 camere cu Teren 152 Mp în Parcul Carol
480.000 €
București, Parcul Carol
5 camere
134,11 mp
152 mp teren

Abonează-te la newsletter să fii primul care primește cele mai noi recomandări de proprietăți și sfaturi de la experți.