Casa stil Neoromanesc | S+P+1E+M | BANEASA | SISESTI

1.200.000 €

Siseşti, Bucureşti

Nr. camere:
11
Suprafață utilă:
610 mp
Suprafață teren:
1.000 mp
Nr. niveluri:
1

Descriere casă

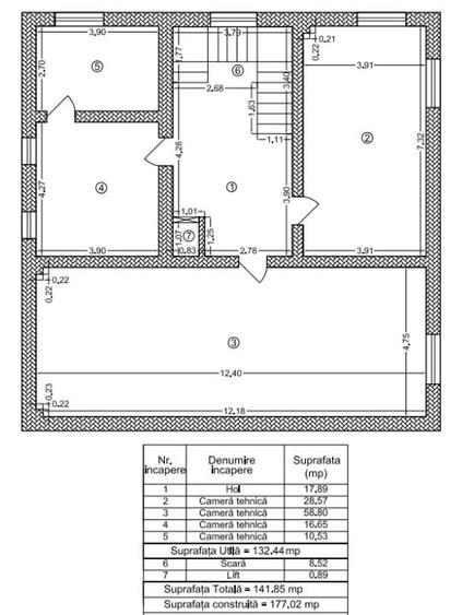
Va propunem spre vanzare o casa in stil NEOROMANESC pozitionata in imediata apropiere a lacului Grivita/Baneasa, in zona strazii Sisesti. Imobilul este construit in anul 2019 si dispune de o amprenta de 200mp, suprafata construita de 737mp, suprafata utila 610mp, teren in supafata de 1000mp, regim de inaltime S+P+1E+M, 11 camere, 5 grupuri sanitare, 2 terase si 3 locuri de parcare. Este racordata la toate utilitatile zonei (apa, canal, curent electric 380V, fibra optica, put forat, etc) Propietatea beneficiaza de materiale si executia a lucrarii de calitate superioara, avand urmatoarele dotari: - LIFT de persoane - Incalzire in pardoseala - Aspirator centralizat - Usi intrare metalice si blindate 10cm - Semineu pe lemne (peleti) - Scafe LED - Caramida Porotherm 30cm folosit inclusive la interior - Glet interior armat cu plasa - Ferestre mansarda Velux - Ferestre TRIPAN 4 Seasons - Rehau Geneo cu 6 camere - Ferestre demisol TRIPAN actionate electric prin telecomanda - Acoperis mansarda - Vata mineral 25cm cu folie aluminiu si anticondens - Izolatii termice cu polistiren Austrotherm AF 80 plus 100mm grafitat - Hidroizolatie Sika - Pervaze interior-exterior din granit Tan Brown - Tevi apa-canal Rehau antizgomot - Tigla Tohndach Mediteran Natur - Scafe LED - Control temperatura individual in camera - Ventilatie - aparataj electric Gewiss Chorus de Luxe *Propietatea se vinde fara finisajele finale pentru a putea fi personalizata dupa preferinte.
Citește mai mult Citește mai puțin
Nemobilat Grădină Curte Aer condiționat Calorifere Centrală proprie Bine întreținut (Bună)

Detalii casă

ID anunț: 270238 Actualizat în: 23 Decembrie 2025
Nr. camere: 11
Suprafață utilă: 610 mp
Suprafață utilă totală: 610 mp
Nr. băi: 5
Suprafață teren: 1.000 mp
Front stradal: 25 m
An construcție: 2019
Regim înălțime: P+1E

Istoric preț

Facilități

Utilități
Curent Apă Canalizare
Sistem încălzire
Centrală proprie Calorifere
Internet
Fibră optică
Climatizare
Aer condiționat
Mobilat
Nemobilat
Diverse
Scară interioară Șemineu
Alte spații utile
Spațiu depozitare Dressing WC Serviciu
Facilități imobil
Acoperiș Curte Grădină Lift
Stare interior
Stare bună
Izolații termice
Exterior
Ferestre cu geam termopan
PVC
Amenajare străzi
Asfaltate Pietruite Mijloace de transport în comun Iluminat stradal

Puncte de interes

Mijloace transport
transport
Statia Piscul Radului, linia 205
Mijloace transport aprox. 21 m
transport
Statia Drumul Regimentului linii : 205
Mijloace transport aprox. 519 m
transport
statia Piscul Scoartei, linia 205
Mijloace transport aprox. 696 m
transport
Statia Darmanesti, linia 205
Mijloace transport aprox. 803 m
Școală
education
International School for Primary Education, Bucharest (en)
Învățământ aprox. 1160 m
education
International School for Primary Education
Învățământ aprox. 1243 m
education
Scoala Generala Nr. 8
Învățământ aprox. 1283 m
education
Universitatea Biotera
Învățământ aprox. 1425 m
Recreere
parks
Parc
Recreere aprox. 611 m
restaurants
Vatra Noua
Restaurante aprox. 1011 m
shopping
CRIS-TIM
Supermarket/Mall aprox. 1521 m
shopping
Lidl
Supermarket/Mall aprox. 1698 m

Proprietăți similare

Casă individuală cu 9 camere cu Canalizare în Sisești
1.199.000 €
București, Sisești
9 camere
516 mp
909 mp teren
Casă individuală cu 6 camere cu Piscina în Iancu Nicolae
1.100.000 €
București, Iancu Nicolae
6 camere
450 mp
288 mp teren
Casă individuală cu 8 camere cu Canalizare în Dorobanți
1.300.000 €
București, Dorobanți
8 camere
180 mp
190 mp teren
Casă individuală cu 7 camere cu Canalizare în Iancu Nicolae
1.100.000 €
București, Iancu Nicolae
7 camere
300 mp
700 mp teren
Casă individuală cu 10 camere cu Piscina în Băneasa
1.080.001 €
București, Băneasa
10 camere
341 mp
1.930 mp teren
Casă individuală cu 6 camere cu Canalizare în Pipera
1.200.000 € + TVA
București, Pipera
6 camere
477,85 mp
513 mp teren
Casă individuală cu 15 camere cu Canalizare în Floreasca
1.175.000 €
București, Floreasca
15 camere
660 mp
200 mp teren
Casă individuală cu 5 camere cu Canalizare în Primăverii
1.299.900 €
București, Primăverii
5 camere
127,03 mp
314 mp teren
Casă individuală cu 8 camere cu Canalizare în Băneasa
1.300.000 € + TVA
București, Băneasa
8 camere
310 mp
413 mp teren

Abonează-te la newsletter să fii primul care primește cele mai noi recomandări de proprietăți și sfaturi de la experți.